查看完整案例


收藏

下载

翻译
Architect:Coorlas Architecture
Location:1016 Waukegan Rd, Northbrook, IL 60062, USA; | ;
Project Year:2023
Category:Restaurants
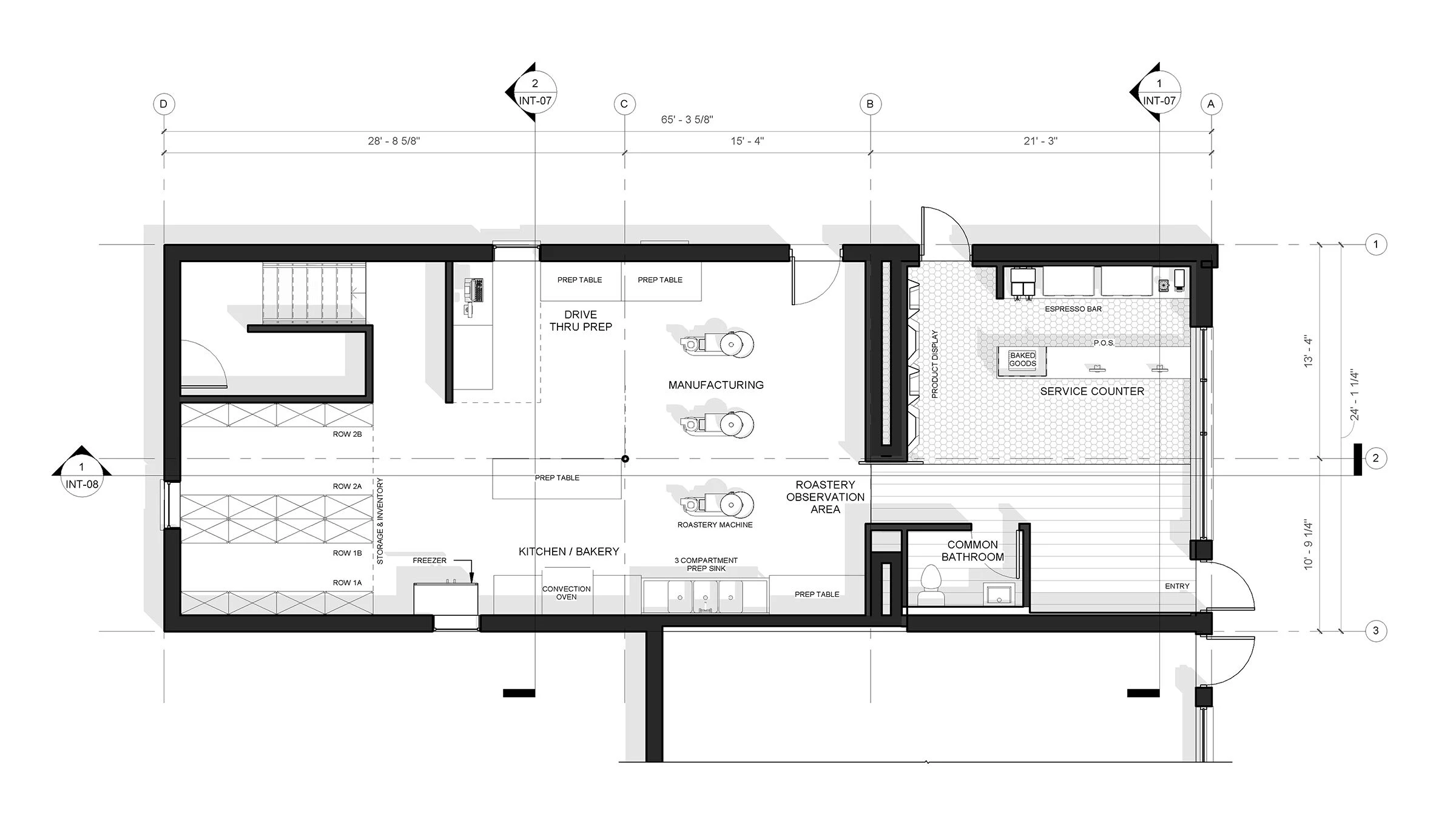
A design proposal for a Wilmette based coffee shop’s new flagship roastery & bakehouse. Coorlas Architecture was commissioned to develop new branding and identity design along with a customer experience that would immerse visitors in the Alchemy philosophy. A hint of earthy tones play off a glossy futuristic palette to evoke an emergent set of feelings balanced between familiarity and otherworldliness.
▼项目更多图片
客服
消息
收藏
下载
最近












