查看完整案例


收藏

下载
说在前面
之所以入住了半年之后我们才选择去他们的家拍摄,一方面屋主二人都是景观设计师,由于工作的需要出差在外地,一直没确定好合适的时间拍摄,便搁置了。
二是趁着这次拍摄时间线比较长的机会,我们索性和设计师商量做一次一反常态的拍摄,做一期入住后真实状态的呈现,没有刻意的摆拍布景,一切以真实为主。再说,设计,不就是要依托于人才可以创造出烟火气的家么。
玄 关
看到现在的玄关,便想起当初施工时的一波三折。
最初屋主为了让室内鞋和室外鞋能够互不影响之外,设计师在入户区域利用收纳柜和不同材质的地面区分开两个空间,还能对室内空间有一点隐私保护作用。
但不同材质的地面收口一旦处理不好 ,便会影响玄关柜体的安装,及整体的美观。所以我们尝试木地板与石材接口采用了石材压地板的处理方式,减少了单独采用收口条处理方式去解决以上问题。
客 厅
电视墙的背后便是主卧,考虑到墙面整体的统一性,于是施工时将门框与墙面基本齐平,同时颜色也保持基本一致,使整个墙面更协调简约。
大致施工流程是先定制门套与卧室门,然后根据卧室门颜色选择墙面乳胶漆颜色。至于门套与墙面齐平,则是在墙面过程中通过厚批石膏腻子来做到的。同时这个墙面使用无踢脚线的方式,施工需对墙面垂直度要求高,保证墙角无曲线型,同时在安装木地板时留出1cm的地板伸缩缝隙,可使用执教收口条处理。
在最初的交流中,我们就发现屋主夫妇其实有一定审美水平,设计中二人也对室内设计提出了个人好的的见解与想法。
二人偏爱高饱和度色系,搭配上黑胡桃与白橡木,希望家里是现代、前卫、自然的状态,于是我们在设计上选择了低调的莫兰迪色系加哑光黑,软装上以黑胡桃等深色家具的组合去中和墙面的温度。
餐 厅
久别这个项目半年,我们在约定的当天对屋主们进行拜访并进行完工后的第一次拍摄。刚走到门口,便听到了屋主女儿奶声奶气的欢迎和两位屋主的热情。
130平的空间里,扑面而来的是真实是生活气息,随处可见的绿植,不经意出现的小凳、玩具、舒适拖鞋、平衡车、儿童椅、儿童餐具。
拍摄途中小屋主正处在长身体的年纪,需要少食多餐。突然家里来了客人一下子就热闹起来,淘气的宝宝只好被妈妈追着吃完了米糊,这个家因为一个新生命的到来,多了一份责任但也多了一份欢乐。
厨 房
书房花园
屋主告诉我们,他们现在最喜欢的区域就是这个书房花园,坐在客厅抬头一望便是江面,不同时刻窗外的江面会有不同的自然美景。
我们合理利用会客厅与书房的每一块砖每一面墙,就为了保留这难得的城市自然风光,所以专门为大人和小孩设计了一个共生的空间——书房花园。
为了使书房花园的休闲区的木作与整体空间在视觉上融为一体,我们的施工执行师和师傅商量将休闲区域墙面木饰面与乳胶漆贴合做了收口(在工艺上将木饰面板压乳胶漆、形成高低落差关系)。
记录孩子的成长是每对为人父母的必经之路,精心挑选后摆放在台面的宝宝照与一旁的绿植相互成长,老枝在主人的照料下长出新芽,宝宝在父母的悉心呵护中长大。
出于对生活的热爱,又或许出于对职业的追求,他们的家无论走到哪转眼便能发现各种生机盎然,而绿植也是一份不可多得的软装好帮手。
把客餐厅、书房花园作为这个家重点生活区域。所以隔而不断的空间,一方面是让幼儿的安全情况能一直处于父母的视线之类,另一方面父母也能在孩子的成长过程中更多参与进来。
在最初的设计时就当初也是特别考虑到,孩子的成长过程应该与父母的陪伴息息相关。
卧 室
主卧改造为了一个大套间,将之前的一个房间改造为衣帽间与主卧连为一体。床头柜为现场木作,为悬空造型,可以简单置放一些小物件。
衣帽间采用了帘子和宜家艾格特收纳系统,不仅可以节约预算,且收纳功能也非常强大。
主卧室的卫生间有一件好物,就是这款半挂式面盆,适合洗漱区台面较窄但又想使用较大面盆需求的业主。面盆主体部分在台面上,少部分为挂式延伸出台面,节约空间的同时也能保证面盆的使用。
儿 童 房
好的空间之所以会被人喜爱,只是因为住在里面的人为规划的美好未来而不断地添置自己喜爱的物件进去,家便慢慢长成了你可爱的模样。
卫 生 间
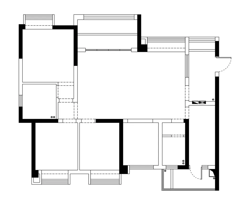
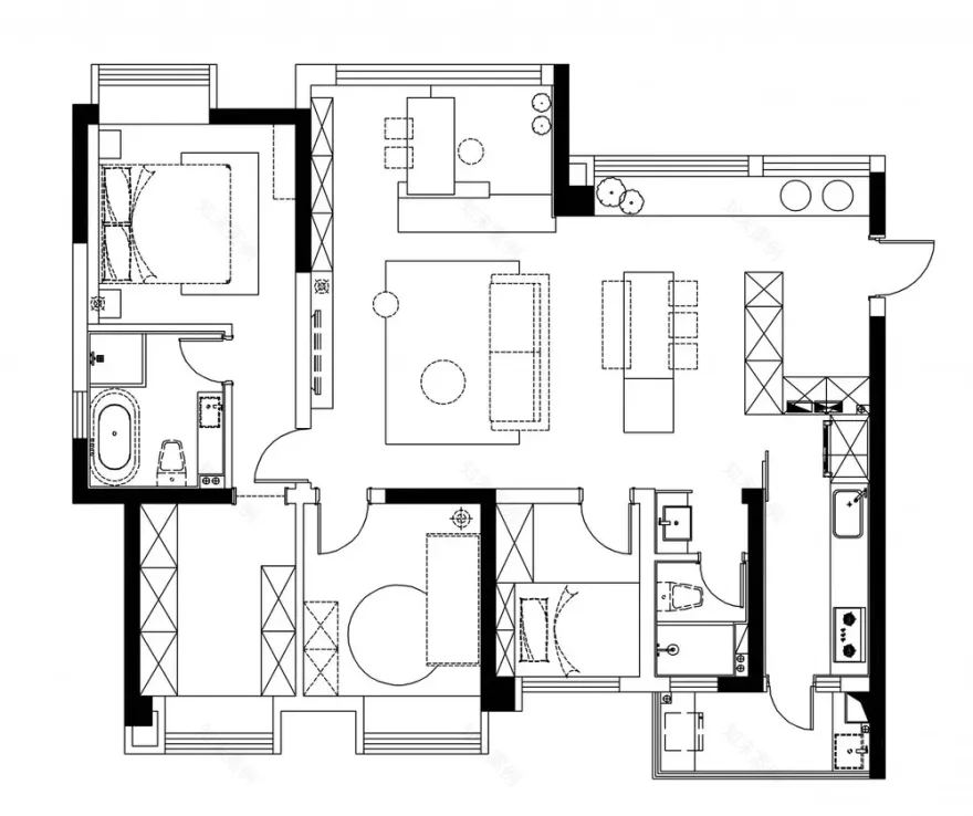
户型图
亮点1、开放式书房,又称为书房花园
全屋位置最好的区域,面对窗户就能看到江河,与会客厅形成了一个隔而不断的整体。会客厅与花园书房的布局可以提高互动性增加亲子间的交流,减少孩子对电子产品的依赖,给孩子一个更温馨的家庭环境。
亮点2、墙面造型简洁,主卧门“隐身”
主卧门所在的一面墙为了保证其简约美观,所以将主卧门进行了弱化。门套与墙体齐平,且颜色大体一致。
亮点3、衣帽间使用宜家艾格特收纳系统
主卧内的衣帽间使用宜家艾格特收纳系统,不仅可以节约预算,且收纳功能也非常强大。
客服
消息
收藏
下载
最近







































