查看完整案例

收藏

下载

翻译
Firm: DIG Architects
Type: Commercial › Office
STATUS: Built
YEAR: 2015
SIZE: 1000 sqft - 3000 sqft
BUDGET: Undisclosed
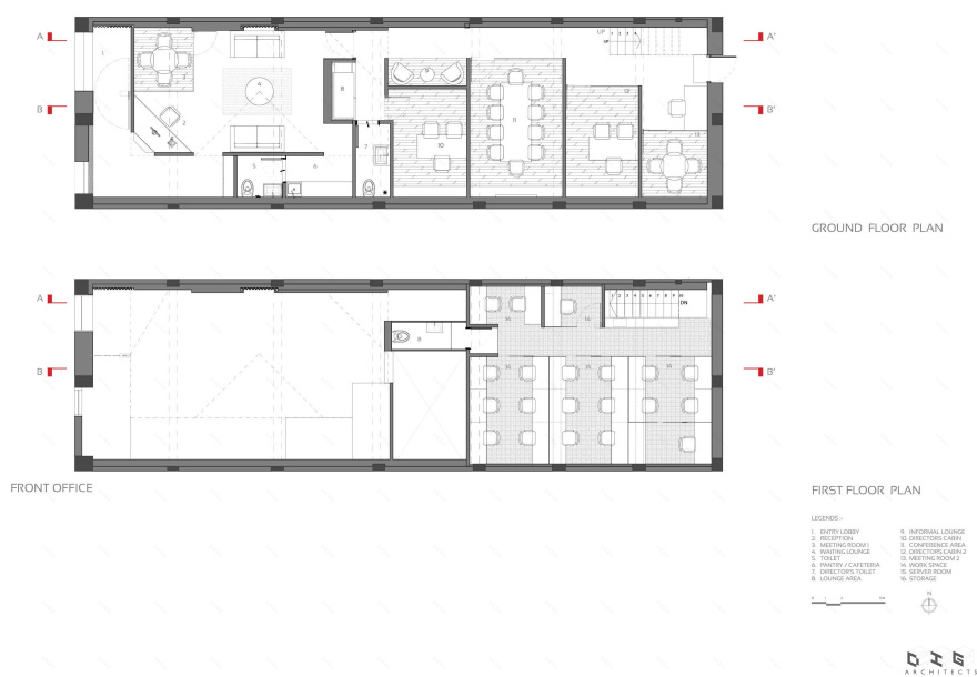
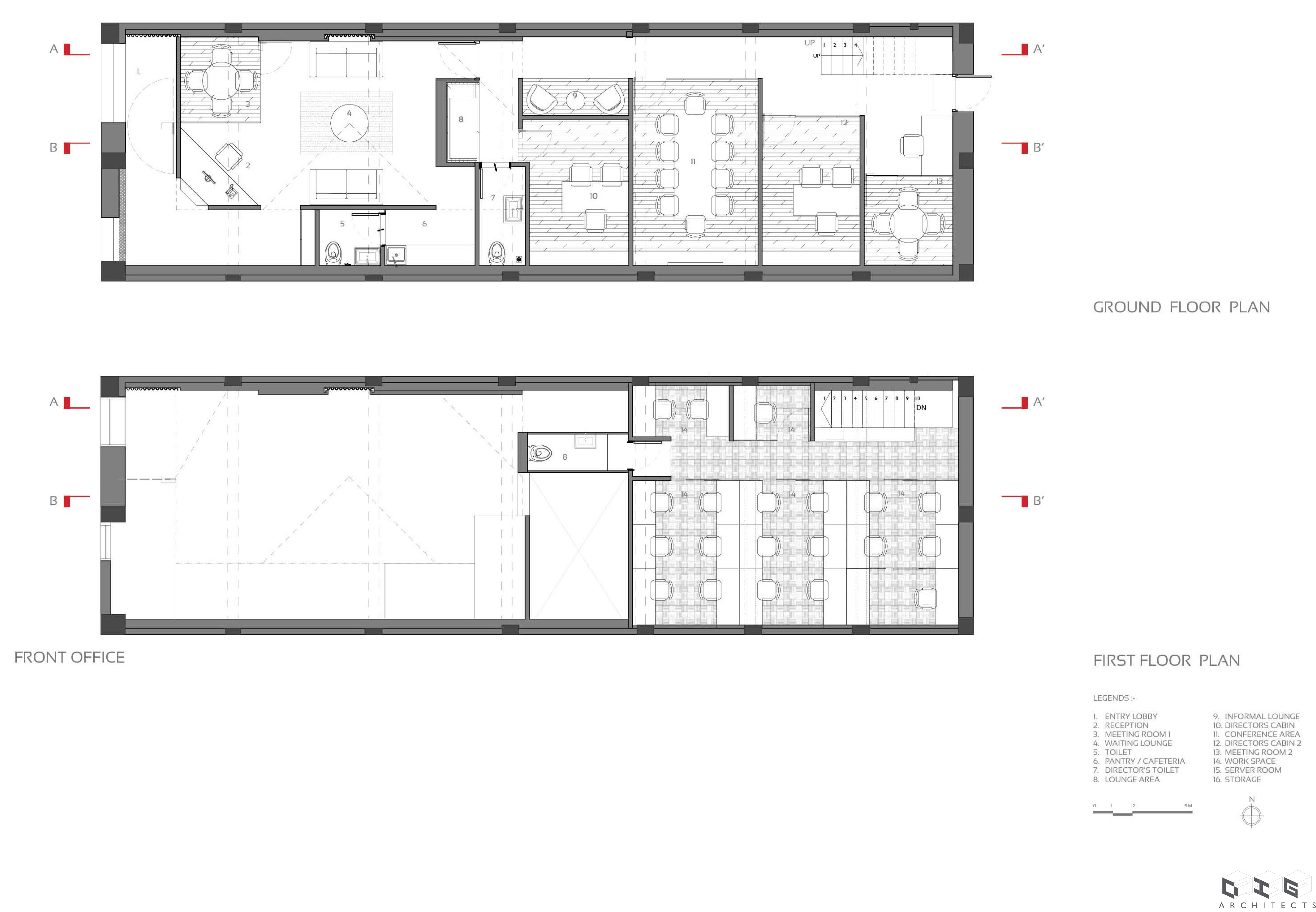
The site enjoyed a unique location in an old heavy industrial estate. Situated on the ground floor the double heighted office space had street presence & front appreciation space. This unique condition was exploited by designing ‘BOX IN BOX’ type of office. The ‘INSIDE BOX’ was separated from the existing ‘OUTER BOX’ by approximately 1.50 MT which creates the movement space. This space becomes the main passage to enter the ‘INSIDE SPACE’ from ‘OUTSIDE SPACE’. This kind of circumambulatory movement slowly & seductively unveils the interior space to the perception of the user. The ‘INSIDE BOX’ around which this movement happens was shaped to create interesting openings at lower levels. The shape also negotiates with existing structural beams at ceiling level. This double height space opens into an interior corridor which connects series of single height cabins & meeting spaces. The corridor terminates into a staircase which leads to mezzanine level & completes the narrative. The projects uses only white & grey as surface colours which separates the two boxes.
客服
消息
收藏
下载
最近






















