查看完整案例


收藏

下载

翻译
Architect:AHA | Aki Hamada Architects
Location:Fujisawa, Japan
Project Year:2014
Category:Shops;Restaurants
The series of activities to choose bread, take it out and eat them in the bakery is similar to the experience enjoying the book in the library.
We thought that we can create the new experience in the bakery by referring the various activities in the library.
There is the experience of the library that searching for the book to be fun in itself.
We created the new shelf system to provide an accidental discovery of the bread as our experience in the library.
The shelves for the bread always change their density of the bread, because the bread is sold and replaced new one.
We wanted to make optimal display of the bread by opening or closing shelves.
It is the flexible and interactive system that clerk and customer can face bread through the shelves every time.
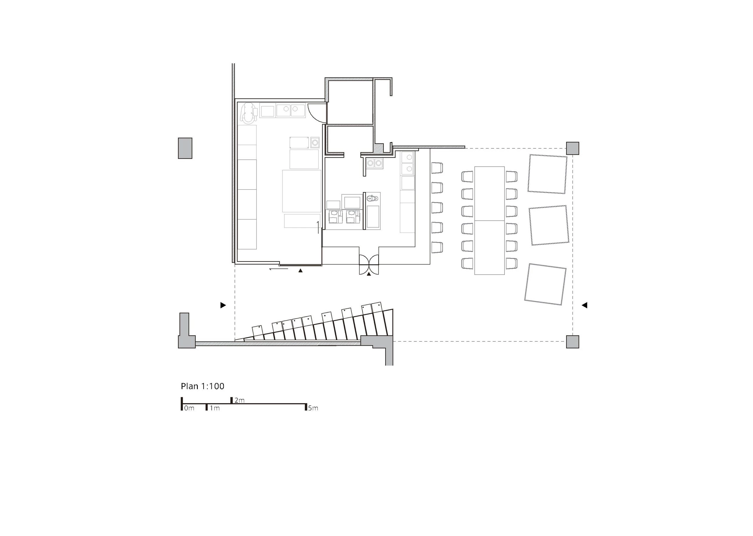
There are three type of the seating, counter seat, table seat, TATAMI seat. Their are enhance the selectivity among the small spaces.
A mobile TATAMI furniture is used by connecting together with 2 or 3 and let out to outside.It is possible to customize in order to use it by the various formation.
▼项目更多图片
客服
消息
收藏
下载
最近



















