查看完整案例


收藏

下载

翻译
Firm: groupDCA
Type: Commercial › Office
STATUS: Built
YEAR: 2018
SIZE: 5000 sqft - 10,000 sqft
BUDGET: Undisclosed
The Communique Marketing Solutions Office, Gurugram, India, creates a modern and egalitarian workspace in an effort to foster creativity, collaboration, and conversation. Its spatial planning emerges as a direct result of this intent: where, an open-plan office format is chosen that is symbolic of transparency. Disregarding traditional notions of professional hierarchy, this configuration instead encourage democratic engagement within the workforce. The architectural design, as a result, reflects the company’s guiding philosophy, which is predicated on establishing parity across the board to enhance employee experience, productivity, and well-being.
The office is designed as a three-storeyed building that crafts a distinctive identity for itself within its immediate urban context. The architectural vocabulary is unmistakably brutalist: the facades are an expanse of exposed concrete punctuated by the measured use of corten steel. Honesty–structural and material–and humanism are central to the idea of Brutalism; its choice, therefore, reflects groupDCA’s strong belief in the movement’s foundational principles of modernism and socialism.
On the ground floor, a short porch–at the end of which stands a custom-designed sculpture, leads the visitors to the entrance foyer. The upper floors house the workspaces within a seamless two-floor volume, accommodating a diverse mix of functions. In order to optimize penetration of glare-free daylight into this volume, its northern and southern edges are designed to be porous; the fenestration scheme was arrived at through a metric-based daylight analysis. To reduce the ingress of heat into the building, the western edge–which forms its primary façade–is completely blocked with a massive wall and an added layer of insulation. The majority of the office space is planned in the bullpen configuration with communal tables in a nod to Communique’s ethos of equality and cooperation; various levels are designed, however, in order to delineate space for different teams–this provides a semblance of privacy, while their placement within the larger, singular volume helps sustain visual connection. Along the southern edge, informal, semi-open meeting areas are conceptualized at both ends of the volume to provide intimate spaces for discussions and conversations. All services are designed at one end of the floor-plate to facilitate maintenance operations and easy circulation.
The highlight of the volume, however, is a mezzanine conference room that floats above an amphitheater-style, multipurpose event area. The fact that the heart of the volume is occupied by collaborative and flexible spaces as opposed to a director’s room reflects groupDCA’s intent to do away with physical metaphors of authoritarianism.
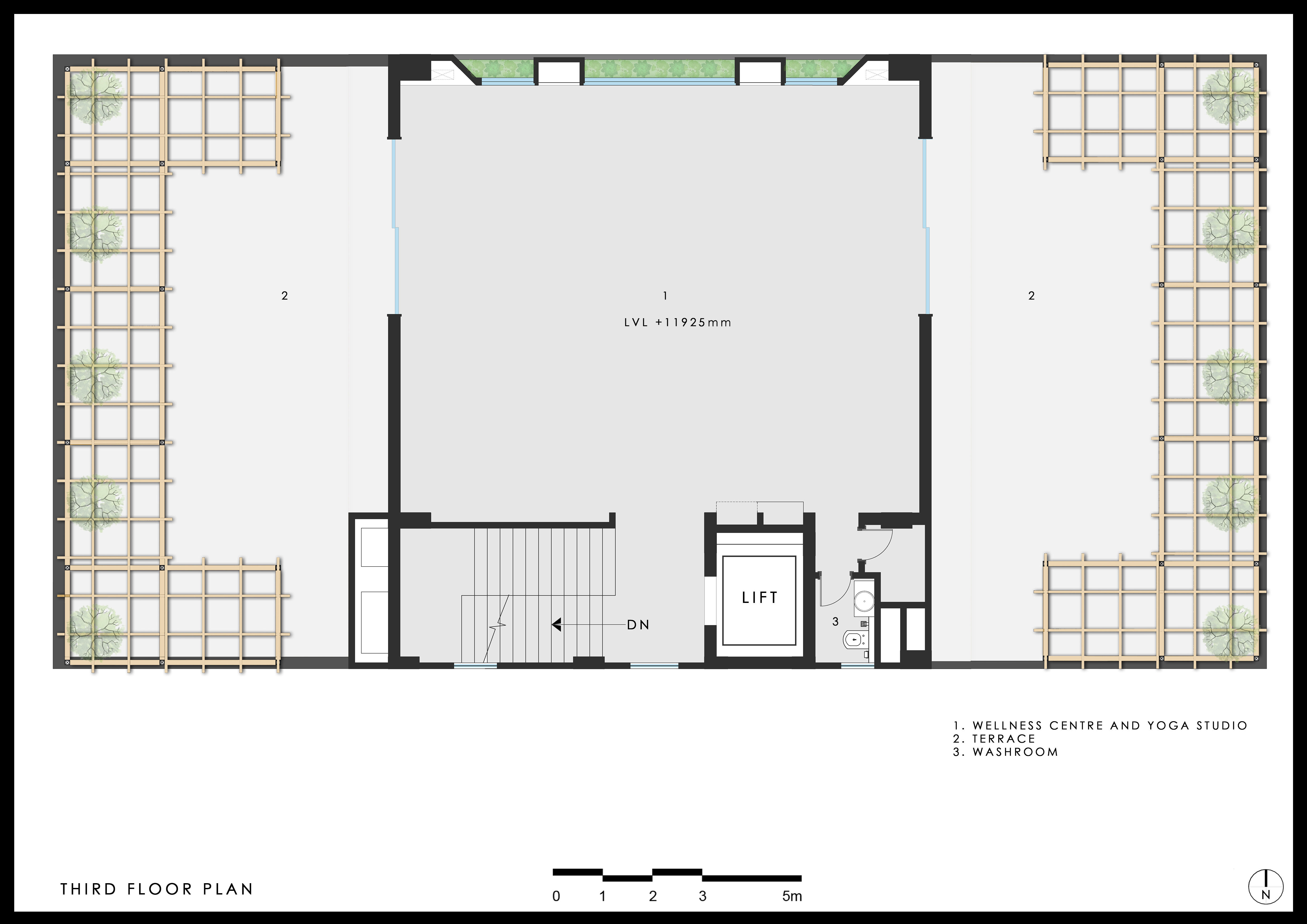
The third floor is conceived as a large unified space; the Wellness Centre stands centrally in the floor-plate, opening to wide terraces on both sides. This provides an uninterrupted space that can host a multitude of communal events such as yoga and prayer meetings, and parties.
The larger design strategy–biophilia–endeavors to enhance human engagement with nature in order to craft working spaces that promote happiness, good health, and well-being: ‘by facilitating the elements of air, of light, and of the greens,’ as expressed in groupDCA’s core values. Large windows, lined with planters, are designed along the northern and southern edges of the floor-plates; they open to beautiful views of the surrounding greens, while their careful placement and sizing ensures adequate daylight ingress. In addition, vertical green walls run along the entire two-floor length of the volume along its eastern and western edges, and treated fresh air is brought in to improve indoor air quality. This strategy ties in with the attempt to optimize the building’s thermal performance as well. In order to ensure reduction in the building’s energy consumption and its use of resources, a thoughtful, scientific approach is adopted. All of the windows are double-glazed, while glass wool is used as an insulating material on the western façade. Acoustical treatments–polyfiber wall and ceiling panels–were integrated within the design from the very beginning of the process to reduce indoor noise levels. The use of modern technology extends to artificial lighting design as well, where a simple yet intelligent system is chosen to augment natural daylight, creating optimal working conditions throughout the day.
The interior spaces are a celebration of brutal materiality. The wall and ceiling surfaces–concrete, brick, and corten steel–are left exposed in their natural, unfinished states. The furniture is carved out of birch plywood, while the flooring is largely done in locally procured, multi-hued limestone. The air-conditioning ducts take on a sculpturesque quality; left unconcealed, they seem to float in mid-air, adding to the raw and industrial look of the space. These material choices help bring down maintenance costs significantly, while simultaneously enhancing user experience of the spaces.
The Communique Marketing Solutions Office, Gurugram, India, provides a workspace that augments the well-being of its users in addition to their professional productivity, by creating architecture that celebrates transparency, free thought, and collaboration–architecture that is inherently socialist at its heart.
客服
消息
收藏
下载
最近



































