查看完整案例


收藏

下载

翻译
Firm: Will Bruder Architects
Type: Commercial › Office
STATUS: Built
YEAR: 2008
SIZE: 300,000 sqft - 500,000 sqft
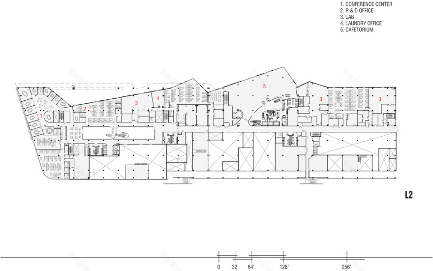
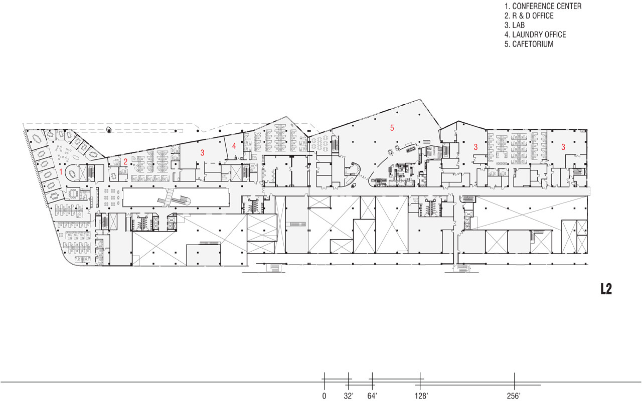
Sited on a compact sub-5 acre parcel in a developing urban area of Scottsdale, Arizona, the new Dial/Henkel headquarters will be an innovative collaborative center, completely integrated into its broader context of the Sonoran desert. The building is conceived as a crystalline cloud floating over a desert mesa, a graceful presence at the prominent intersection of Scottsdale Road and the 101 freeway. The four story structure is comprised of two levels of glass curtain wall, environmentally shaded by a double ceramic frit, above two levels clad in aluminum panels, deeply textured plaster, and native Ashfork sandstone.
From the freeway, its 700 foot south elevation is a 7.5 second experience against the backdrop of the McDowell Mountains. On the north, a casual seven minute walk moves along a folded façade, animated by a porte cochere entry under a 150 foot beam, and the prow of a ‘cafetorium’ ridgeline—where 800 person all-company meetings can be held. Both of these events are focal to the alignments of streets to the north.
This facility allows Dial to fuse their corporate operations with R & D functions under one roof, fostering synergy across departments. The building will also serve as the anchor of Henkel North America operations, offering training and conference suite facilities. Programmed at 348,000 square feet for over 800 employees, and 1000 parking spaces in 3 levels below grade, planning is extremely efficient. The garage is accessed by two ramps and illuminated by suspended lighting and a natural lightwell across the entire south edge. Visitors can arrive via the garage or the front door; always they will be greeted by the central ‘vessel of light’, a 30 x 180 ft chamber linking all levels of the Dial world. A stair of perforated steel will be suspended below an inflated transparent ETFE membrane skylight with 2 layers of silver shade pattern. Visitors, vendors, and employees will enjoy break-out and meeting areas in the atrium on all levels. On levels 3 and 4, break areas will also extend long mountain vistas, past a level 3 roof garden—a great connection space for headquarters and R&D, bordering fitness and cafetorium areas.
The facility has taken environmental responsibility seriously, believing in its corporate citizenship. It has also been a serious charge to make great, productive working environments. Dial/Henkel is pursuing LEED silver rating for the project. The building makes extensive use of thermal and shading technologies, raised floor systems and indirect lighting in office areas, and sensitive use of daylight. In Arizona intense light can be a source of fatigue and heat gain. Here it is filtered and diffused to spread evenly and deeper into floorplates, always maintaining connection to the majestic sky and landscape of this place.
客服
消息
收藏
下载
最近


















