查看完整案例


收藏

下载

翻译
Firm: H2o Architects
Type: Commercial › Office Educational › University Industrial › Research Facility
STATUS: Built
YEAR: 2011
SIZE: 100,000 sqft - 300,000 sqft
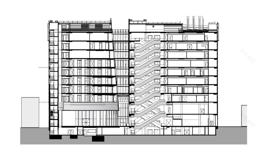
Completed in 2011, the Swinburne University Advanced Technologies Centre was the first education building in Australia to be awarded a 5 Star Green Star rating from the Green Building Council of Australia.
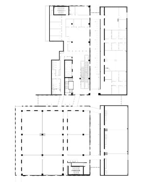
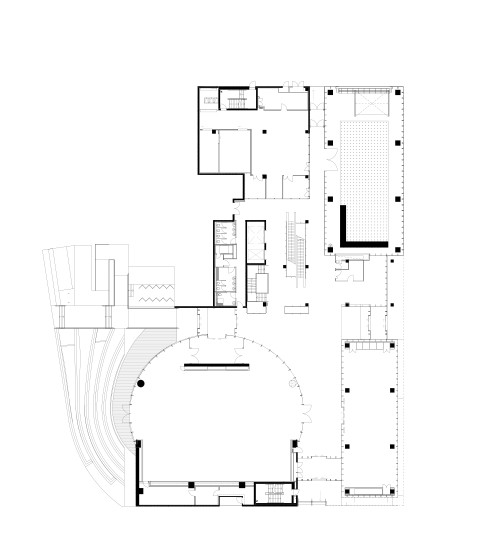
Thriving on new ideas, innovation and knowledge, the education and research facility is a flagship development for the university, and is designed to both showcase and connect the university to the public. A passer-by can look through the open-glazed lecture theatre and into the courtyard space beyond, while foyers, walkways and bridges are open, operating with natural ventilation for approximately 35% of the year.
A key feature, the façade features easy to install precast panels dotted with circular openings, encouraging exploration and connection. Inspired by Japanese design, the facade, salvaged brick-lined pathways and open common spaces combine to create a village feeling.
Photography by Trevor Mein.
客服
消息
收藏
下载
最近
















