查看完整案例


收藏

下载
台州温岭市地处浙江东南沿海,面朝东海的万顷碧波,是一座以渔业为主的海滨城市。中国大陆新千年第一缕曙光照射在这里,因此温岭也被称为阳光圣地。
同时,温岭背靠北雁荡山的余脉,温岭遗存着古老的采石工艺,浸润着浓厚的山石文化。
因此,雲起玖珑售楼处设计立足于温岭深厚的山海文化,将每一种在地文化作为一个个分支融入到空间美学中,赋予每个区域不同的主题,通过现代设计美学语言演绎东方气质的巍峨与浩瀚。
01
重峦叠嶂
甫一进入接待前厅,以超越常规的尺度为空间营造的极度舒适观感扑面而来。对称的空间结构诠释了东方有序之美。深色奢华石材、幽深厚密的烟熏木饰面传递出一种大气恢弘的空间感受。
第一洽谈区以山石为主题,删繁去奢,用色纯粹,表现了山峦利落雄厚的气质。两组半圆的沙发呈自然围合状,这样的平面布置使客户落座会非常惬意,不感拘束。错落有致的半开放格局,于不同角度之间形成多层次的感官视效。
茶几选择了经典的黑白色调,线条简约优雅却不失硬朗之气。其灵感来源于月亮女神阿尔忒弥斯,她穿行于林莽与山川,英勇无畏。
设计师运用自然之物的艺术化表达,或取其之形,或取其之意来书写主题,用最简语法来呈现“灵山多秀色”的画面。
蒲葵有着天然的阴阳褶皱纹路,可内敛紧簇,也可张力四射。用它来表达一些奇山怪石的形体,折叠、翻转、重叠、排布,跟随形体的起伏态势,自由与规则并存,升华饶有东方意趣的空间精神。
▲原创雕塑作品《顺势》
02
海晏河清
在面积最大的洽谈区域我们秉承地源文脉,以海洋文化为切入点,展现其纳百川容万物的浩瀚胸怀。
现代极简家居和当代东方气韵的器物交织,调和东方美学特有的空间氛围,一种静默的力量感油然而生。
大面积落地窗为室内引入大量的自然光,映衬出犹如照耀在海面粼粼波光的空间质感。
石化珊瑚摆件和以天然可可叶与海洋贝母制成的创意桌花,使极简的设计透过细节的创造丰盈而温润。
两个沙发组中间一个玻璃隔断展示柜为空间注入了灵动的气息,我们称它为“大海的礼物”。这个“礼物”是由各种综合材质打造而成,以现代的巧妙手法塑造了一个生机盎然的海底世界微缩景观。
一抹霁青色既是大海深处的颜色,也是中国古代用来描述雨后天空逐渐变晴的颜色,有拨云见日的美好寓意。
富有创造力的艺术语言点缀在厚重深沉的地域文化中,让人在雄浑壮阔的空间体验之中又感受到蓬勃不息的生命力。
03
浮光掠影
第三洽谈区域的空间主旋律则围绕着“光”拉开序幕。
一幅巨大的艺术装饰画奠定了整个空间的明亮恢弘的基调,画作由色彩鲜艳的油画颜料块堆叠构成,还原了阳光照耀时璀璨绚烂的状态,跨越了绘画和雕塑的界限,给人以强烈的视觉冲击力。
光影的明与暗把空间细腻分割,衍生出当代东方特有的意境之美。
艺术装置采用天然的黄梨木和叶材,经过纯手工精心细密制作完成,玻璃制的剔透水珠从枯枝里悄然密布爬出,展现出枯与生两种生命状态,枯荣也可以孕育出另一种新生。
设计师化繁为简,保持视觉的庄重与生动,在创新中探索自然与人文的关系。将山海澎湃交融的意蕴贯穿整个空间设计,形成壮丽与诗意空间,引领人们的观感汇入万象的美学通感之中。
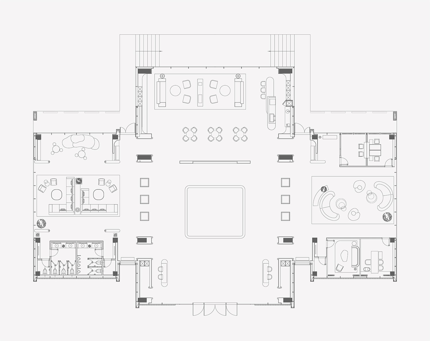
项 目 名 称 | 台州温岭雲起玖珑售楼处
项 目 地 址 | 浙江省温岭市横峰街道中心大道
项 目 面 积 | 850㎡
竣 工 时 间 | 2022年8月
软 装 陈 设 | 宸鹿设计顾问
软 装 团 队 | 陈婕
客服
消息
收藏
下载
最近


























