查看完整案例


收藏

下载

翻译
Firm: Shenzhen Huazhu Architectural & Engineering Design Co., Ltd
Type: Commercial › Shopping Mall Hospitality + Sport › Hotel Residential › Apartment Transport + Infrastructure › Airport
STATUS: Under Construction
SIZE: 300,000 sqft - 500,000 sqft
BUDGET: Unknown
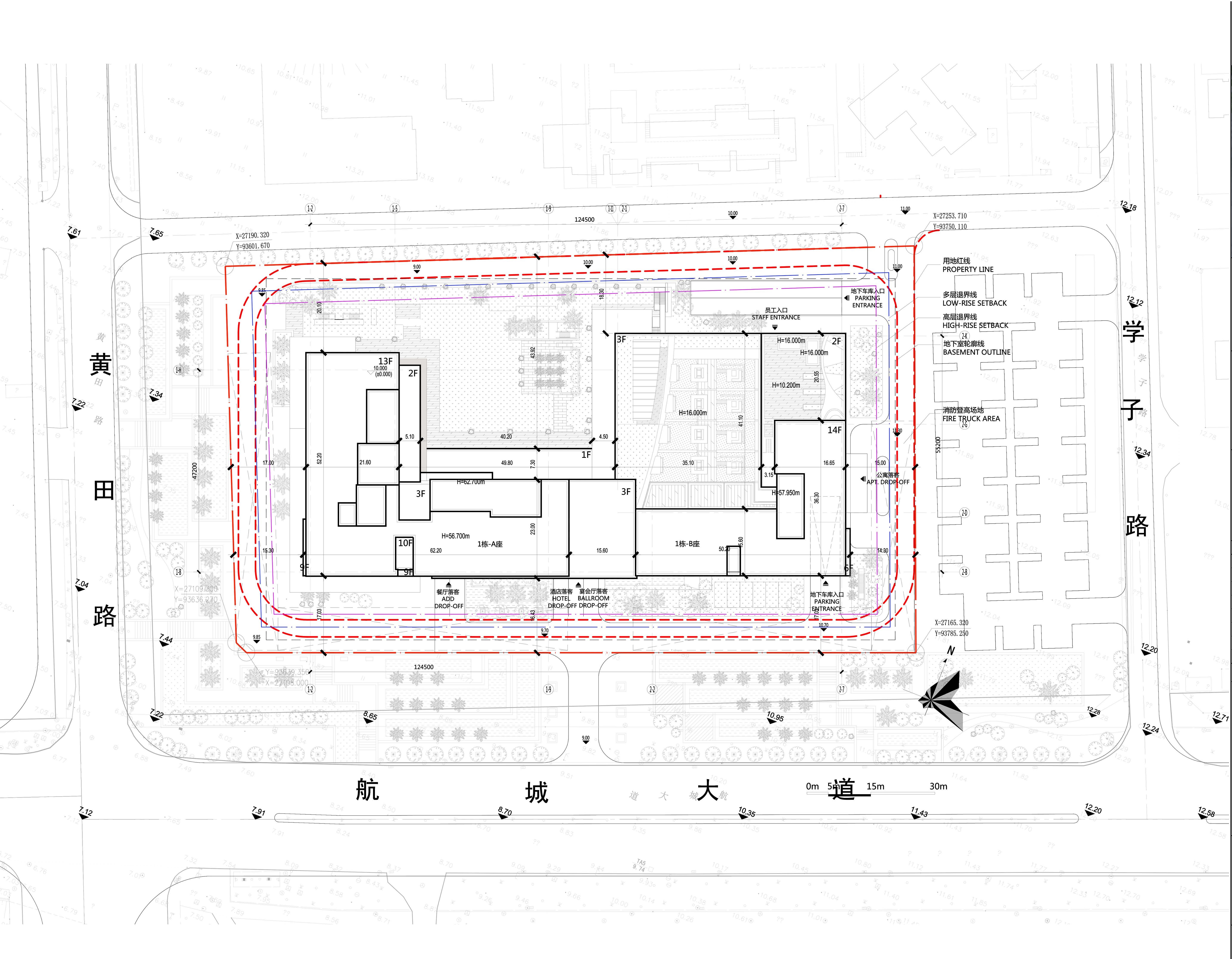
The site is west of National Road 107, West Street Road, Bao'an District, Shenzhen. The total land area is 14861.5 sqm, the plot ratio is 3.0, and the entire construction area is 59885 M2 (including 44584.5 sqm of capacity building area, including 31209.15 sqm of a five-star hotel 13375.35 sqm of the apartment). The whole project cooperated with RTKL adopted the concept design of "urban oasis." The external urban landscape, the rich ecological courtyard elements, and the crystal diamond corrugated facade complement each other, showing a unique architectural charm. As a result, it will become a bright and landmark city famous film in the whole region. The sixth phase mainly plans hotels and Boutique Apartments in terms of the format.
客服
消息
收藏
下载
最近














