查看完整案例


收藏

下载
“色彩,是无声的视觉语言”
"Color is the silent visual language"
项目背景
可爱的90后小姐姐(活泼开朗 爱美食 爱分享)
“我对生活的要求比较简单,希望回到家里放松舒服就可以啦。”
根据小姐姐对未来生活的构想确立了现代法式风格,以她钟爱的牛油果绿作为视觉主线,平衡纯白基底,让空间更加清新自然。色彩是无声的视觉语言,予人最直观的精神感受,诠释明朗惬意、随性自由的居住情态。
清新自然
Living room & Dining room
整体色调让人联想到果泥和奶油的质感,空气中酝酿着清新、柔美、自然的气息。客餐厅面积较大,电视背景墙采用撞色不对称设计,一边是乳白色的石膏线雕角花成框,一边是低饱和度的牛油果绿栅栏造型。
牛油果绿本身就是一种
让人平静和治愈的颜色
被环绕着是回归自然的感觉
用简单的设计手法碰撞法式元素
构成了统一而富有张力的视觉表现
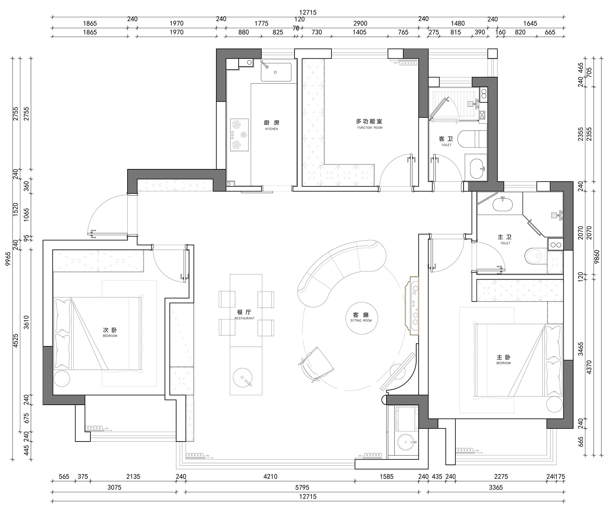
移动次卧的墙,扩大餐厅空间,增加西厨功能。奶fufu的法式梦居,打破平铺直叙的庸常性,辅以绿白笔触,营造出独属的纯粹宁静、随意自在。原来,真的有人在过着我想过的生活~
艺术简约
Kitchen
连每道门
都美得像艺术品~
打开它,开启美好的新生活
低饱和度的牛油果绿,赋予厨房谷仓门独特的视觉魅力,让人忍不住推开探究一番。内部空间选择了素洁简约的底色,因为厨房中有着人间最温暖的烟火气。
私属浪漫
Arch
浪漫的拱门
将主体场域的柔美气韵
转述至更加私密的客卫空间
诗意静谧
Bedroom
降低牛油果绿的饱和度,搭配护墙板造型,修饰床头背景的层次,跳跃到立柜方向,舒叙出色彩韵律,点缀深色画框,在低、中、高的叙事线上,共融浪漫诗意。
清风已至,木香四溢,打造出无忧无虑的叙事氛围,勾勒或粗犷或细腻的拼接图案与编织肌理,回归自然,跃动艺术,动静皆美。
依据形体的重量感与尺度感划分空间,定制异形框架,合围淋浴空间。在凹凸、曲直、虚实中描摹不同功能区的美,塑造素雅静逸的氛围。
平面图
INFO
设计团队 / 悟塬设计
项目地址 / 无锡·雍华府
项目面积 / 110平
完成时间 / 2022.06
文案策划 / 修合文化
摄影团队 / 未见空间影像
客服
消息
收藏
下载
最近




























