查看完整案例


收藏

下载

翻译
Architect:Synthesis Architecture
Location:Romania
Project Year:2014
Category:Apartments
This residential building is located in a context dominated by Communist-Era buildings and the presence of Assan’s Mill ruins.
In a context of major communist reminiscences and a time when architecture is subject to ubiquitous globalization, we wanted that the residents of the neighborhood and especially those from this building to see these traditional graphical interpretations, remembering them of their culture.
The project tries to bring a fresh air into the area through a faceted compact volume that denies the exaggerated length of the adjacent buildings. In the same spirit, the facades receive squad holes, of different sizes, distributed randomly on the volume, in contrast to the horizontal and vertical registers of the existing blocks. In addition to all these, we resort to the Romanian traditional motifs (Balkan) to decorate the windows, facades and the stairway.
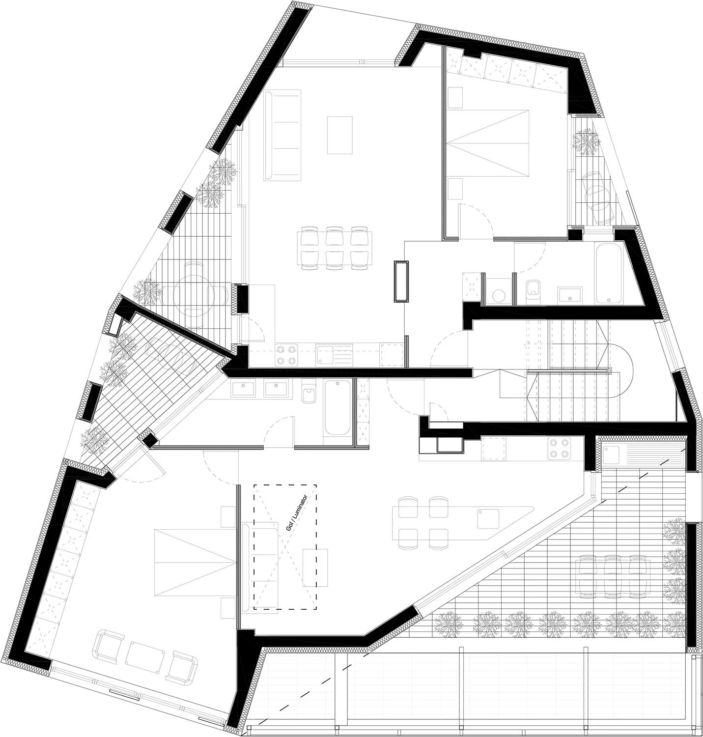
According to the project theme, the building includes 12 types of apartments with 2 or 3 rooms, with different dimensions, from all the 16 apartments spread over 5 levels (ground floor plus for floors).
Also, trying to solve the problem of the outdoor air condition-ing units’ placement on the facades, we proposed a prototype solution (international premiere) in which this equipment was placed in a niche of the masonry thickness, disguised with a perforated panel with traditional motifs holes.
▼项目更多图片
客服
消息
收藏
下载
最近



























