查看完整案例


收藏

下载

翻译
Architect:Architecten de vylder vinck taillieu
Location:Ghent, Belgium; | ;
Project Year:2013
Category:Apartments;Housing
The ambitions of AG SOB (Ghent Urban Development Corporation) go further than developing new urban districts and redrawing, in broad gestures, the existing urban fabric. Their Kavel project is an exercise in the precise implementation of small-scale housing following unconventional principles. The corporation seeks opportunities within the urban fabric – arising if necessary through demolition – to build new homes, either individually or in groups ranging from two or three to seven or eight. However, they do not manage everything themselves. Instead, they offer the site to a young or otherwise suitable family, selected from a number of candidates, as a package complete with a selected architect, on highly advantageous terms. The deal is also bound by stringent conditions for financing and program requirements: a high grade of sustainability is required on a practically impossible budget.
Much remains to be said about the meagre budgets, about the arbitrary selection process and about the exemplary role of the projects – as real examples or only as exceptional examples. But it is the boldness that matters. Having the courage to approach property development in a new way is probably the only way to help property development out of its (real or alleged) predicament.
Four plots, or to be precise four families, declare themselves. Four houses are drawn. At first sight four identical houses, but none of them is exactly the same. Not only are the plots different but the families too. Actually, they may be really four different problem situations. Like any other assignment, they have nothing to do with one another. Or maybe they do.
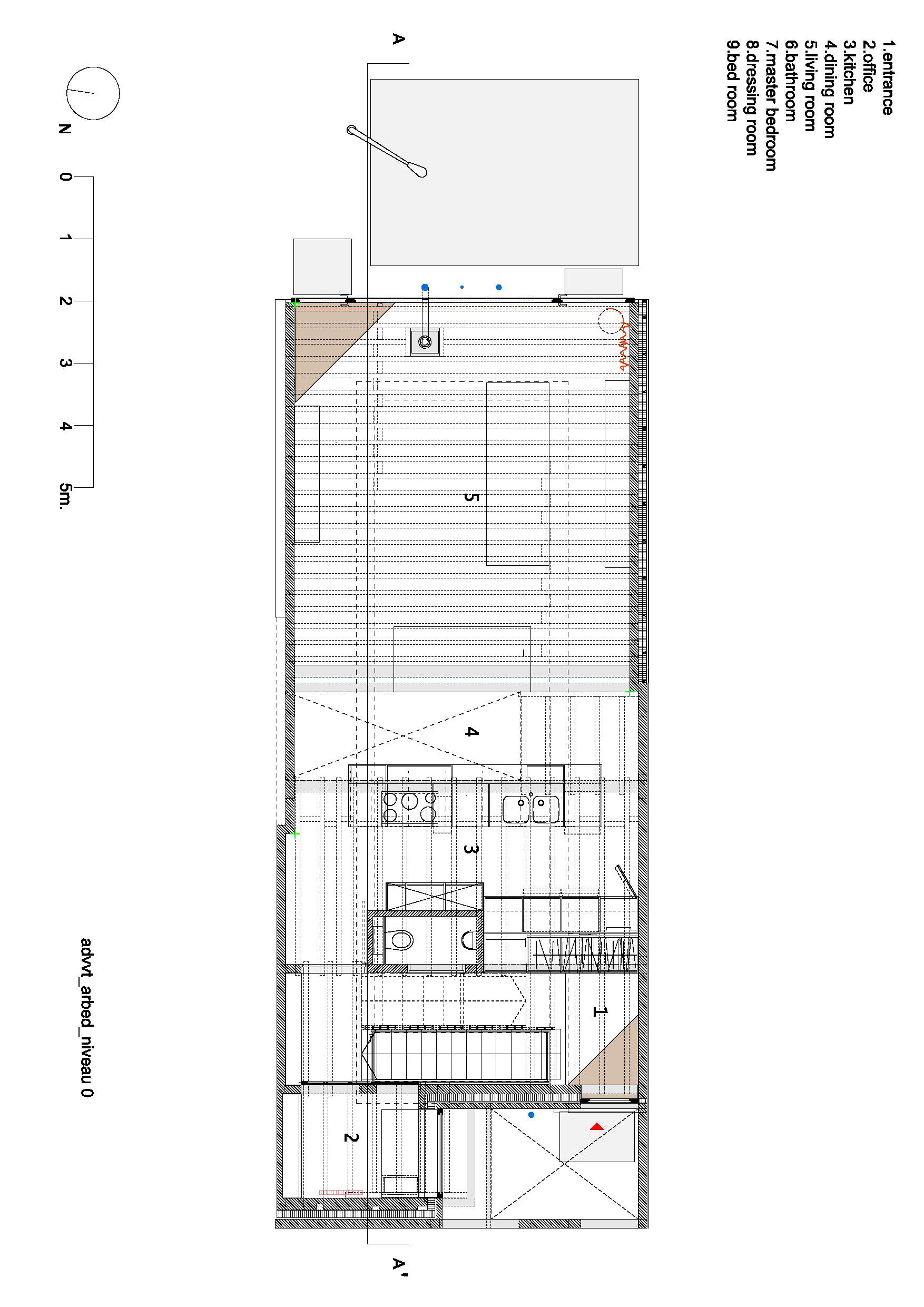
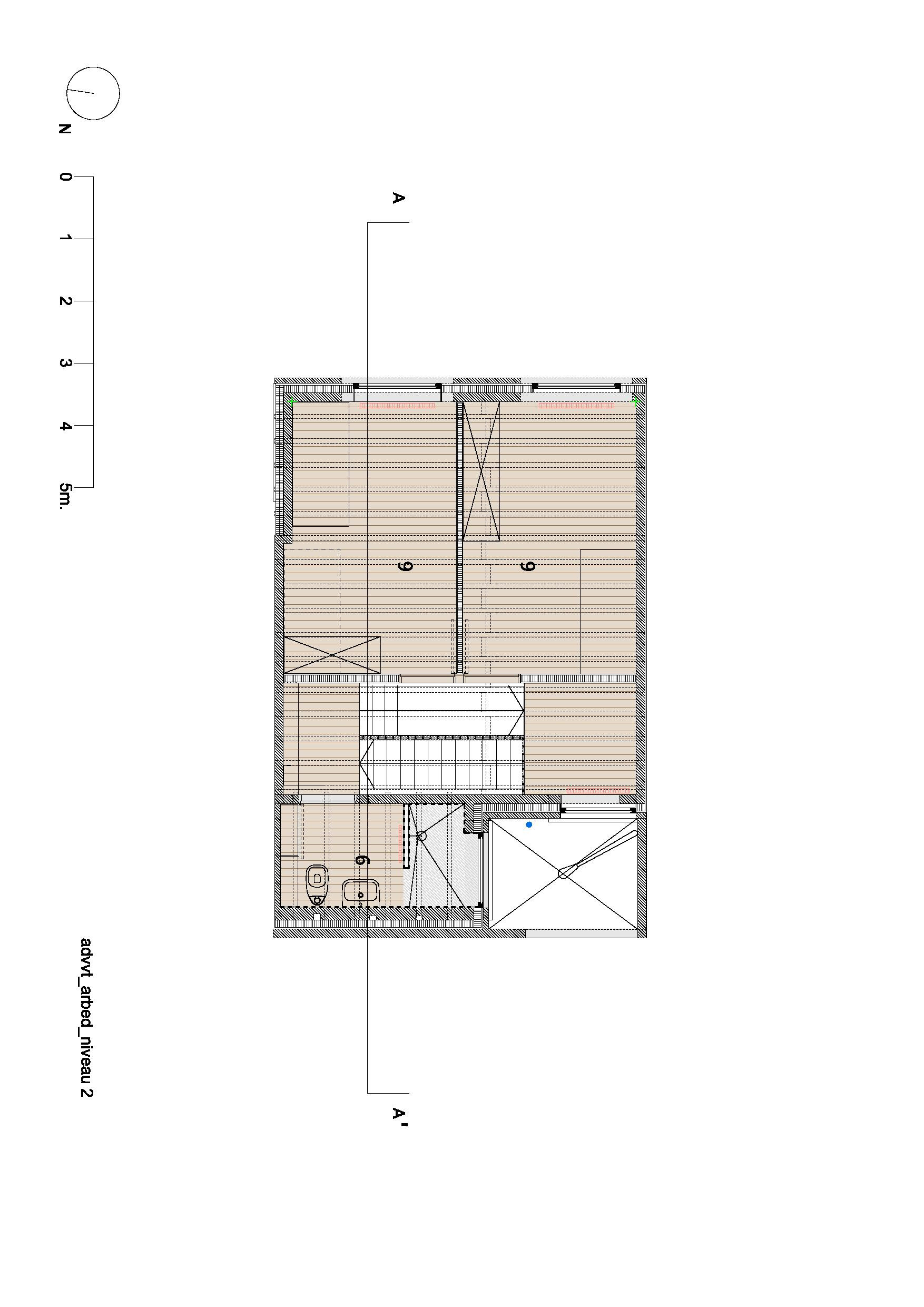
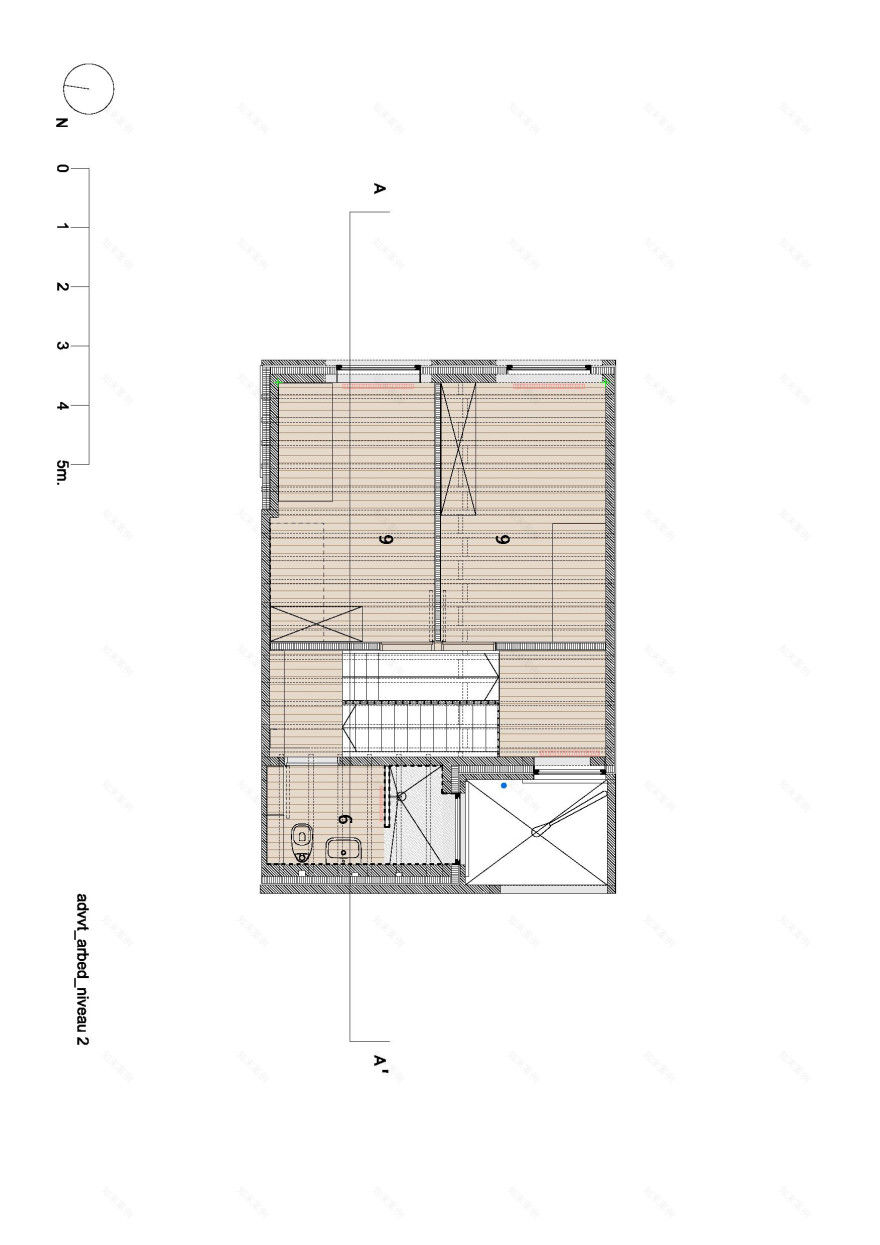
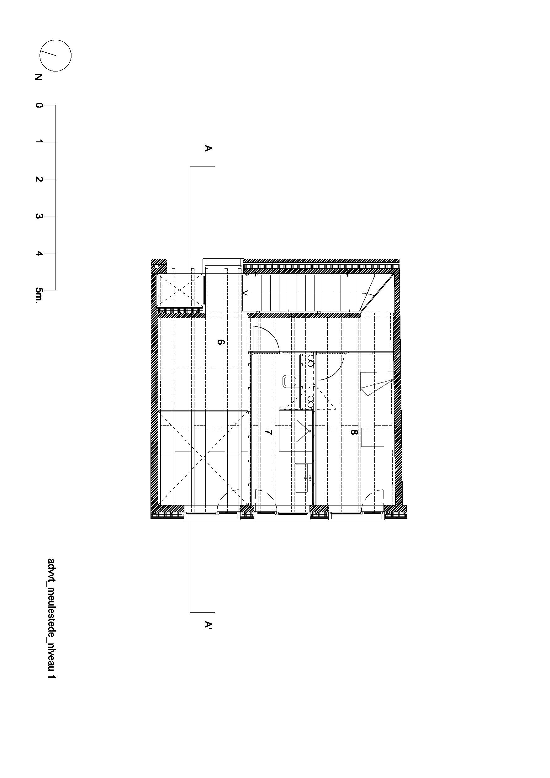
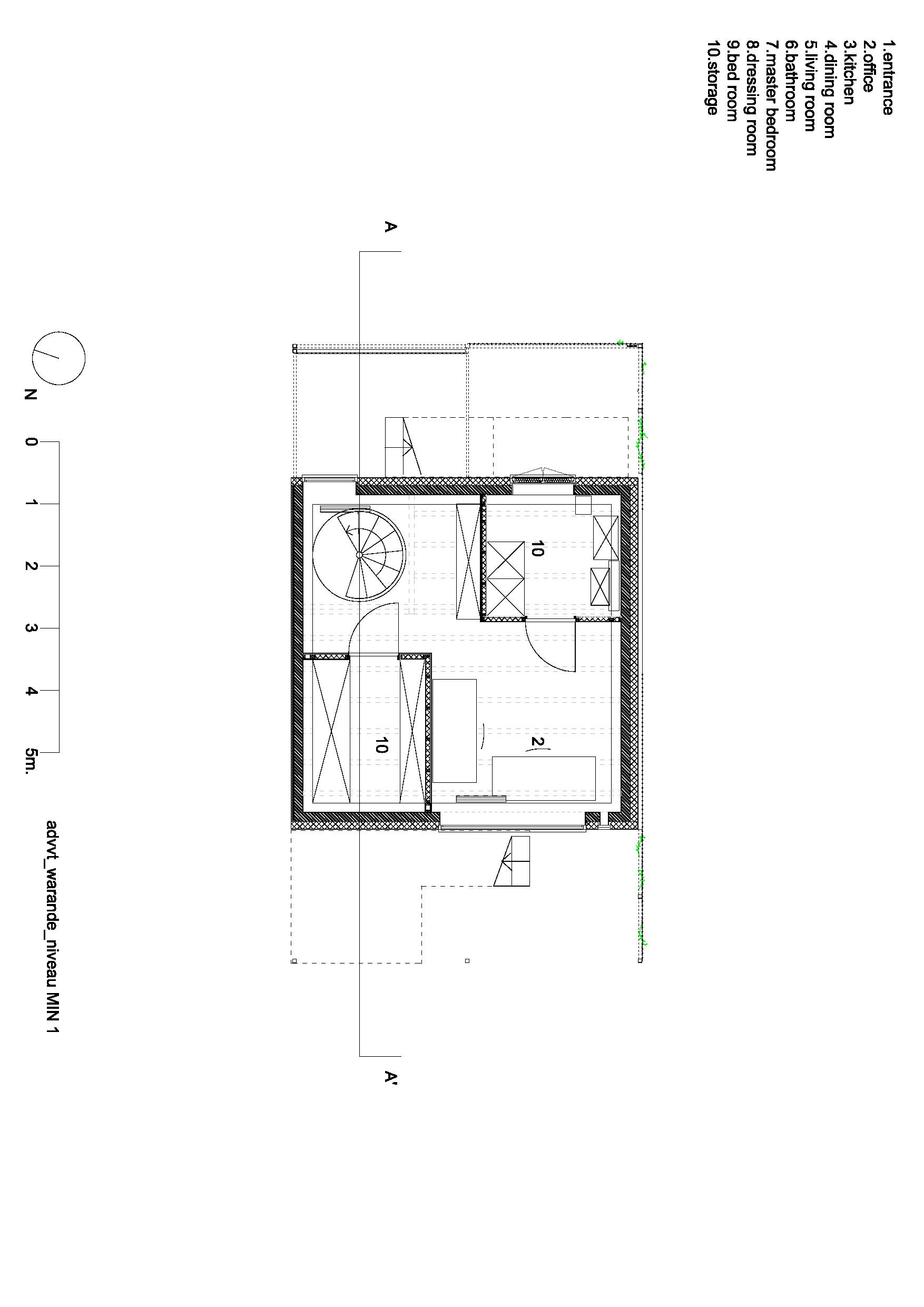
One thing these houses have in common is that they were designed in section rather than in plan. That is certainly the approach taken to each of these houses, as it was for many preliminary studies. It was not only the families that had to put in an application for these projects; so did the architects. The candidate architects first received an imaginary project to design. The exercise conformed to the real parameters of developing on inner city sites: narrow but deep, and of course multiple floors.
Designing by section is actually a consequence of this type of site. The activity of dwelling is always organized vertically, from daytime domesticity to sleeping. The main problem this poses is how to bring daylight down to the lower floors.
Another aspect that the houses share is the attempt to deal with the demands of the situation; but not just with the narrow, deep plan. Two of the four houses were faced with additional irregularities. In one case, the walls of the adjacent properties force the plot to taper practically to a point; in the other, the plot is so irregular that the house gains what could be described as a third facade.
Four houses have a special economy; but always assuming the possibility of influencing the eventual detailing as early as the initial shell design. A single house cannot do that.
House W is a simple stack of rooms. The house is pure white. Defined design aims are always points of departure, never targets in their own right. But deviations from those aims are only feasible when they are unambiguous. In the case of House W, the stacked rooms benefit from the whiteness. The adopted stacking height makes it possible to halve the depth of the dwelling. This shape is surrounded by a full-height garden fence, which follows the given plot contours but leaves room for a front garden and a back garden, with the built volume in the middle.
House M was the first in a series of houses which were an exercise in the materiality of the shell;* in how everything could fit together. Every brick bond was drawn. But when something did not fit exactly, an unexpected choice might be made; something that did not fit was not forced to fit. A beam to be positioned on a spread support on a wall that follows a stepped line, positions itself as it is: everything is slightly shifted. The slight shift is what makes it visually interesting. This inspires the decision, in another situation, to allow wooden beams to simply lie on a transverse concrete beam and admit sunlight between them.
House A continues the exercise. The shell itself provides colour. House M sometimes has a pinkish diffused light and sometimes yellowish. The terracotta colour of the large utility bricks is slightly different every time, like shades of natural materials. House A alternates the practically constant colour intonation of concrete blocks with wooden beams and floors, and white walls. The pure play of light is paramount here. Concrete blocks absorb. The walls reflect. The wooden beams add just enough colour.
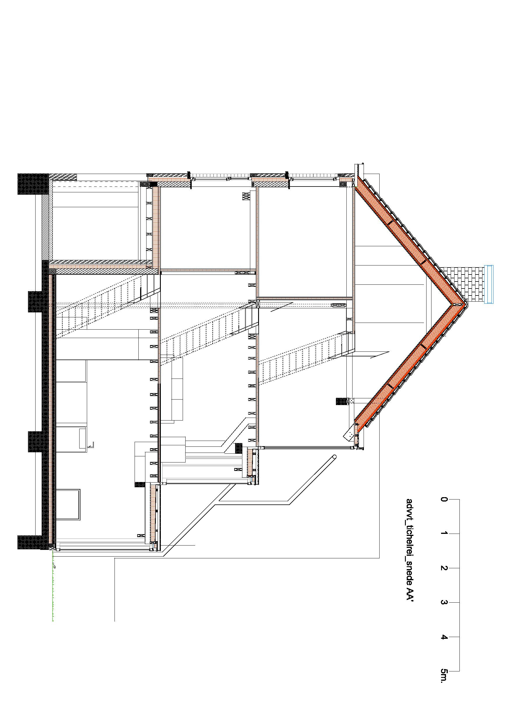
House T is one of four houses in a Kavel ensemble which have to deal with a bizarrely tapering site due to the adjacent party walls, reaching a point at the bottom of the garden. House T is at the right side of the ensemble (the house at the left side was also a prospect, but this changed later). A rear wall which retreats on each successive storey and a roof disconnected from the party wall of the house on the right may form, apart from House W, the most explicit implementation of designing in the section. This design lets the light penetrate everywhere, so turning the tapering plot shape to advantage.
Houses M and A make the loggia more explicit. House W almost suggests a front garden. House T transfers this motif over the roof to beneath the rear facade.
Despite the impossible financial conditions, the houses explore the margins of a certain brutalism, but with a certain precision – in the same way as coal and diamond are chemically the same. Although sustainability (low energy consumption) is present, it is present in the way cement is in a brick wall: indispensible, but scarcely telling a story. Sustainability is never a story. It is a form of economy as it should be, incontrovertible but not discussed.
The way the houses relate to the city. What living in the city is like. What living is like. That’s what it is about. Not one of the four proposals isn’t about that.
* The Malpertuus Veterinary Clinic was first.
Epilogue 1
A competition for five apartments was answered by a scheme proposing five houses – houses of unusual narrowness with tapering party walls, a different angle in each case, on the inspiration of House T.
The houses accommodate a spatial program as required and expected. However they not only present the program in an unexpected, different relation of spatiality or linkage, but also generate new, unexpected places in the programme. It is space that was unnamed, because it was unforeseen.
The proposal was ignored.
Epilogue 2
An initial series of these houses is to be built in the Netherlands. Nine houses are treated as a total facade of 33 metres in length.
▼项目更多图片
客服
消息
收藏
下载
最近






































