查看完整案例


收藏

下载

翻译
Architect:Verheij Architect
Location:Achter de Oude Kazerne, Maastricht, Netherlands; | ;
Project Year:2020
Category:Housing
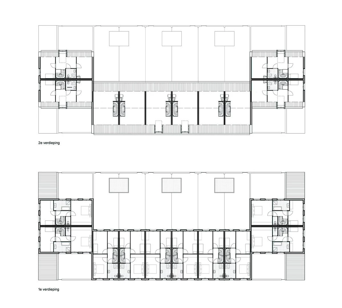
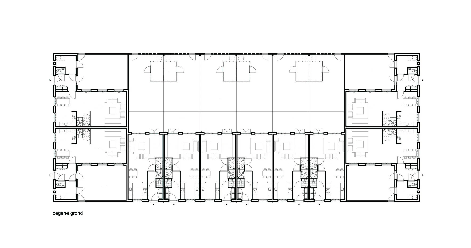
The Urban Development Plan Lindenkruis (the former site of the utility companies in Maastricht) comprises apartments and houses with a parking garage, which have been realized in phases. The 'Lindenkruis' project comprises a number of building blocks in a larger city block. Within the city block, streets and squares have been designed with an informal character. In principle, these are only accessible to slow traffic and emergency services, creating a quiet inner world.
After the completion of Phase 1 and Phase 2 of the Lindenkruis plan, Verheij Architecten has realized 10 city houses at Achter de Oude Kazerne / Remisepavé / Apostelenpavé in phase 3 of the plan.
Client: RO group Zuid
Contractor: Hurks Bouw
Constructor: Adviesbureau Brekelmans
Consultant Building Physics: Kompas360
Design & Realization: 2016 – 2020
▼项目更多图片
客服
消息
收藏
下载
最近












