查看完整案例

收藏

下载

翻译
Firm: Yuanxiuwan Architect & Associates
Type: Commercial › Retail Showroom
STATUS: Built
YEAR: 2018
SIZE: 0 sqft - 1000 sqft
BUDGET: $1M - 5M
A city within a city Garden of gardens
A light and transparent white wall separates the city from its neighbors,
The formation of a distinct independent personality of small cities, large buildings.
The new building embraces and respects the old building's past, and awakens his life through the contrast of color and texture and the weight of space.
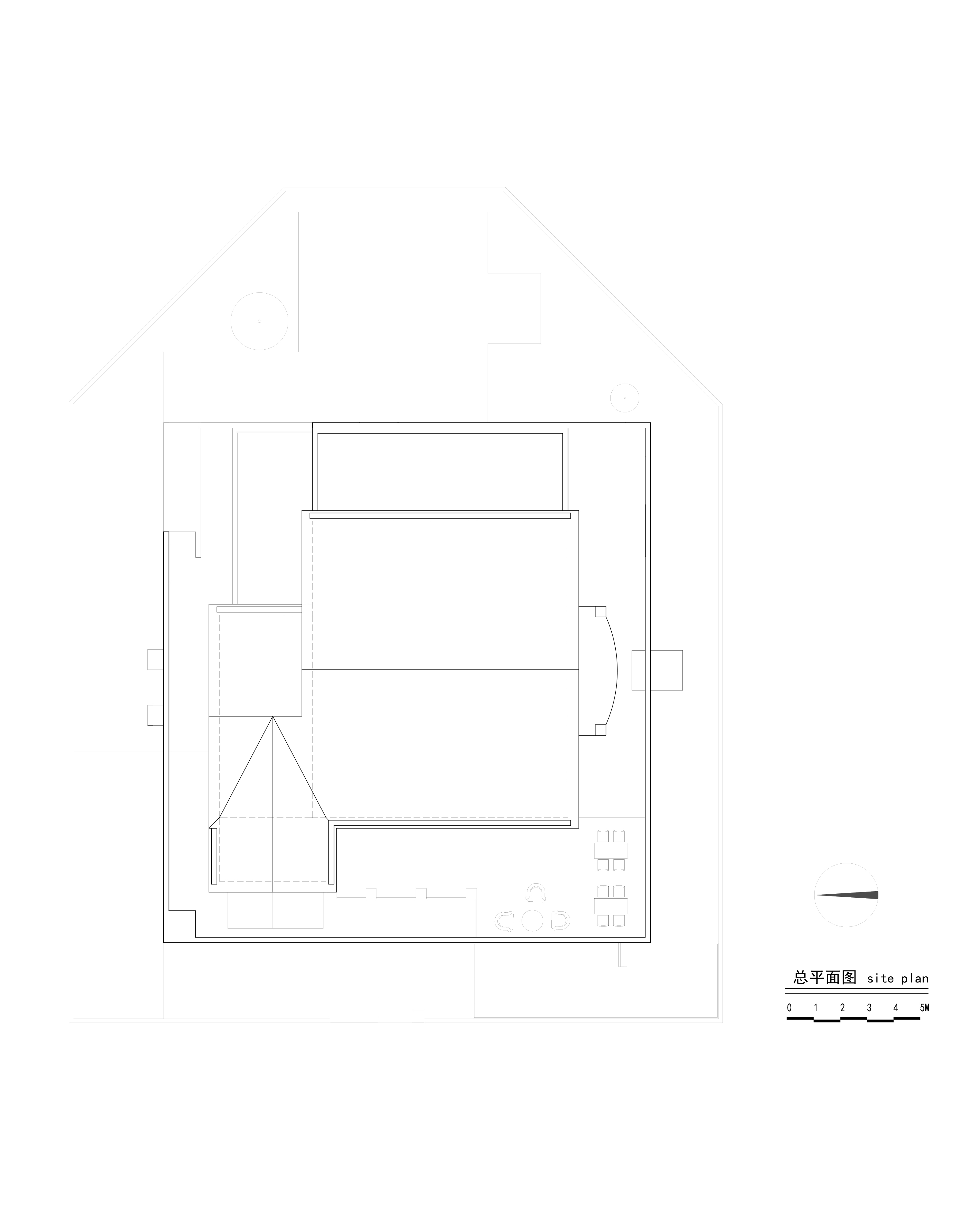
Ambiguous and fuzzy boundaries generate outgoing tension from the highly complex and tense internal functions, and generate a new dialogue with cities outside the region through the open space.Located in the riverside garden, no. 215, youth street, shenhe district, shenyang city, 10 palace is a multi-functional compound space with popular logo clothing, coffee, casual dining, exhibition hall, conference and so on.
Riverside garden is located in the diamond section of shenyang city, surrounded by the beautiful shenyang mother river, which was recognized as the first rich area in shenyang at that time.The garden was built in the 1990s.There are 57 villas in the garden, and several old and tall trees witness the elegance and great changes of the garden at that time.Sketch godfather zhao benshan, song queen na ying and other celebrities have also lived here.
The villa is full of flowers and plants, some become a vegetable garden.With the development of the city, the city center of shenyang moved to hunnan city center with youth street as the center.The "abrupt change" of relative circumjacent environment and the "natural" regression of riverside garden formed the reflux of time.Villa E29 is a two-story building with a sloping roof, which has not changed since the early days of construction. What has changed is that the building seems to wear a 'coat' covered with vines.
The design concept comes from the climbing vines on the external walls and the "wall" of high-rise buildings outside the park, which symbolizes the city.that rearranges and defines the relationship with the abrupt change of the city.Two textured street Spaces are formed between the new building and the original.The white enclosure is separated from the neighborhood buildings, and through the hole in the wall, the dialogue with the city outside the city and the neighborhood is formed into another city in the city, a garden in the garden.
He seemed to be singing the memory of the alhambra
A touch of sadness and warmth continues, leading to an understanding and nostalgia for architecture.The colour line of
warmth, fine broken misty memory, feeling the mood of myriad, the past of bit by bit all circles the heart.The twilight lent a romantic tinge to the old shenyang city.
The stones, street lamps, rain bags, red bricks and old trees with traces of time flow, these elements wake up slowly like the sleeping tree to arouse his life.
The contrast and change of the texture on both sides, coupled with the intervention of light, have another kind of music composition in this corridor. Time is singing and space is dancing.
Such a gentle micro-urban complex with temperature and texture is bound to give this fierce northern industrial metropolis another interface revelation.
Director: sooman
Team: Zou he,Jin kuanyong
客服
消息
收藏
下载
最近


















