查看完整案例

收藏

下载

翻译
Architect:Spoerri Thommen Architekten AG
Location:Adliswil, Switzerland; | ;
Project Year:2016
Category:Housing;Private Houses
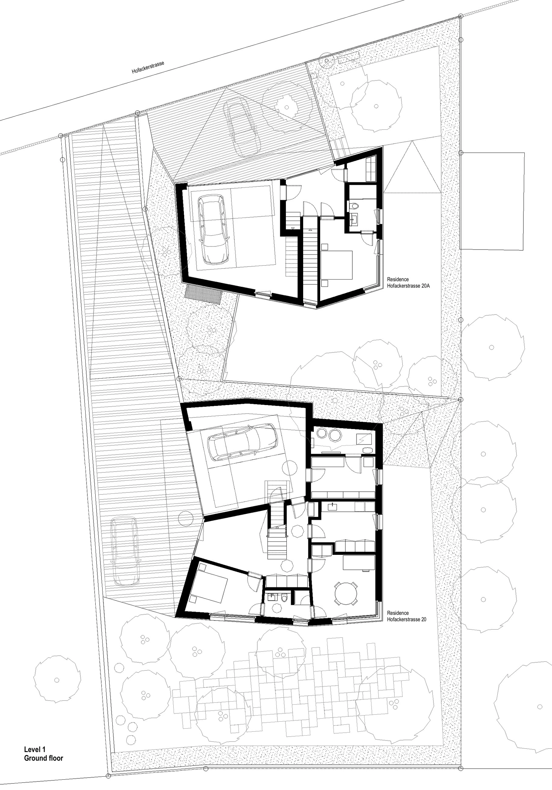
The building site at the given address is divided up into two differently sized parcels according to the wishes and requirements of the later owners and inhabitants, and designed to receive two self-contained houses. Both units join together to occupy the available space, each showing it’s distinct features as far as volume and neighbourly relations are concerned. The result of the fact that the two volumes are set one against the other in a bold and self-confident manner is twofold. Firstly, there are two different but equally representative addresses, and secondly, they both offer generous space and the necessary amount of privacy.
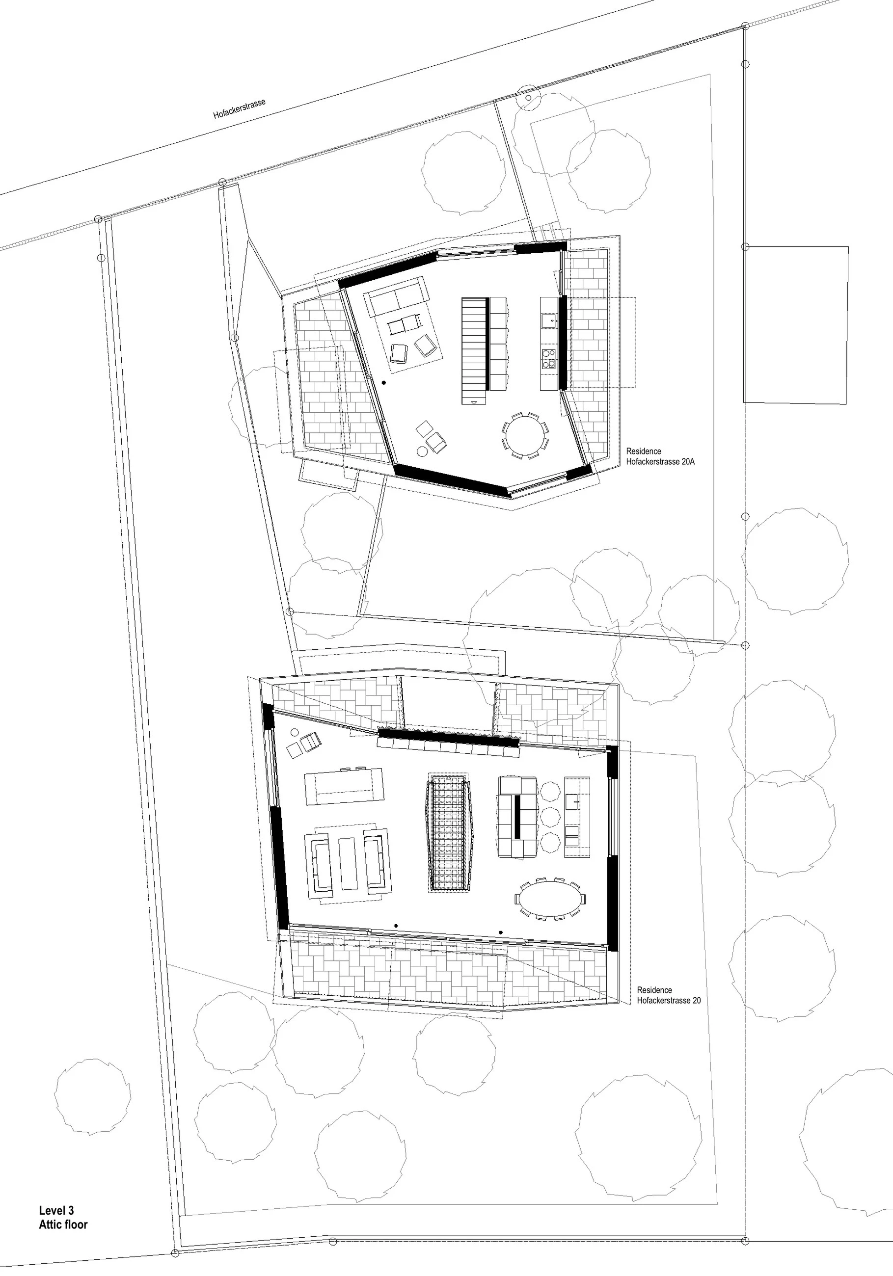
The interior concepts of both houses are similar. A central staircase arrangement both separates and links the three floors. Characteristic in both houses is the panorama view that can be enjoyed on the top floor with it’s floating room pattern and lofty window-fronts opening the scene of the near mountain ridge called „Uetliberg“.
Individually, the rooms are in peripheric line-up, and purposely so, and they are linked among eachother through different kinds of doors. Angular light exposure in these rooms stands for optimal lighting and range of view.
The outer shell of the buildings is broken up by generous openings without losing the intended unity of window and wall. „Open“ and „closed“ are equal features of the front giving it the look of a ribbon and a structure shaped naturally and with a professional sense of proportions. The materials used are fair-faced concrete in combination with plaster-surfaces and metall- and wood combined windows.
The outer space with garden, driveways and parking lots is the work of an independant landscape architect.
▼项目更多图片
客服
消息
收藏
下载
最近






























