查看完整案例

收藏

下载

翻译
Firm: NPDA studio
Type: Commercial › Showroom Educational › Other
YEAR: 2010
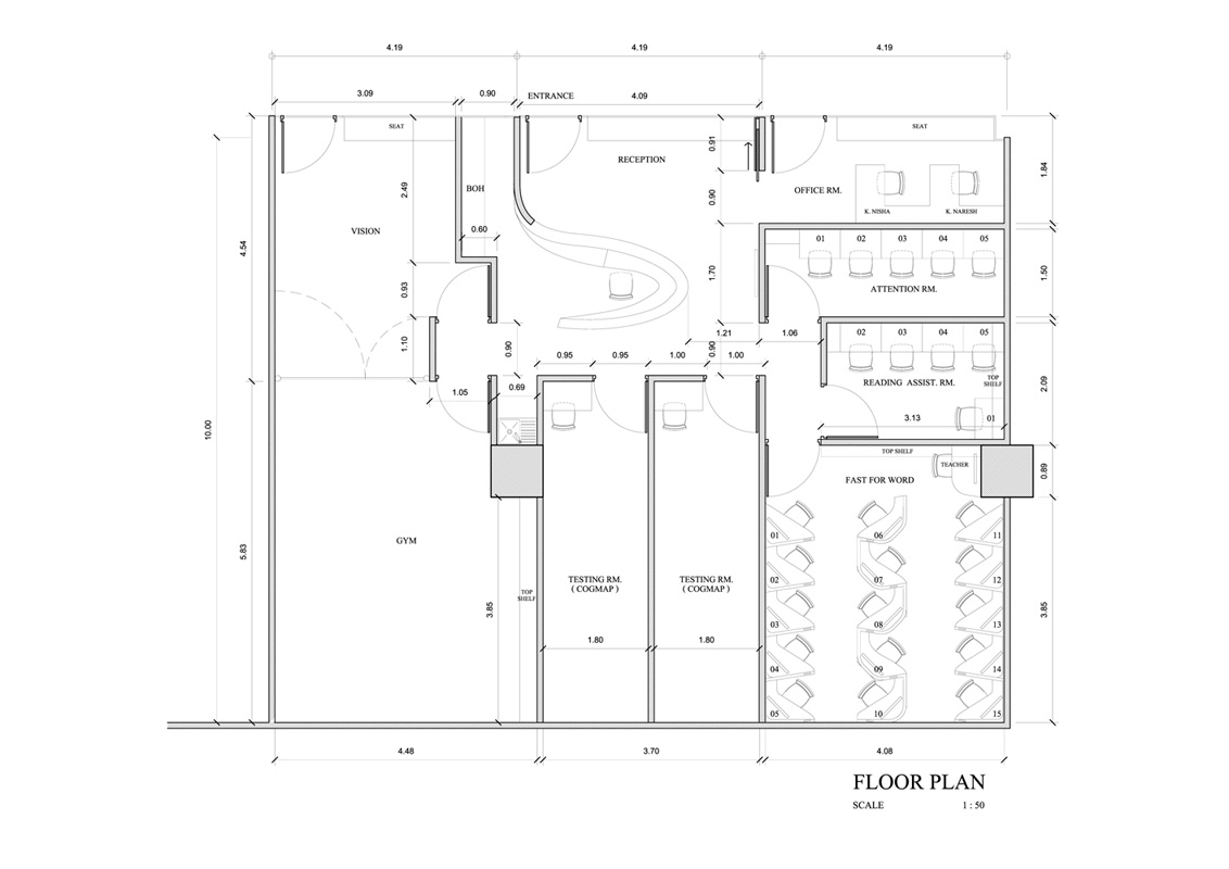
Brain Fit, by Nutthawut Piriyaprakob of Thailand based NPDA Studio, is a learning studio specifically designed to enhance brain function, imagination and co-ordination for small children. Comprised of 4 zones, (the Reception, the Gym, the Testing Room, and the Computer Testing Room), each zone is designed as the imitation of the brain cell, blood vessel and body membrane to imply the meaning of the learning activities conducted. Trying to balance a space that will cater to a child’s imaginative side, yet not pose a distraction, the studio seeks to foster development and encourage exploration.
One enters the studio through the reception zone, a grand space wrapped in strips and ropes to create the allusion of blood vessels. The gym serves as the large multipurpose space and encourages play. ”The shapes and forms are the imitation of the brain cell structures with the objective to stimulate children’s imagination with its unique shapes, forms and lighting effects.” The fabrication of the ceiling design is more of a ‘fit’ installation for each unique piece is done by hand instead of machine.
The Computer Training Room, known as the Fast for Word Room (the software that is designed to stimulate thinking), is designed with ovals which form cells in the room. The room is intended to allow children to relax and focus on what is on the computer screen.
The last zone, the Testing Room, is a place to test the students’ harmony of physical strength and mind. The room is the replication of the muscles of the body, as long stripes on the ceiling add to the feeling of continuous movement.
With each zone specifically designed for the type of learning that will occur, the center will help the children get the most out of their experience.
客服
消息
收藏
下载
最近




















