查看完整案例


收藏

下载
\\
荷兰建筑大师基·考恩尼说过:“建筑绝不只是单一存在的个体。它与构成自然的许多秩序一样,也是庞大秩序中的一个”
\\
业主需求
一家三口,偶尔父母会过来住,需要主卧、女儿房和客卧,比较喜欢轻奢风。
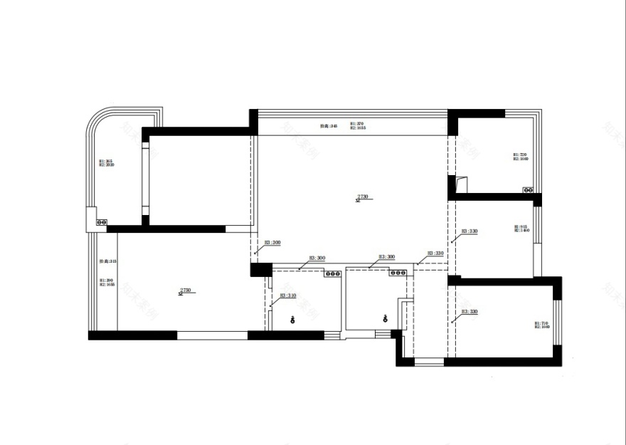
户型对比图
户型优劣势
户型比较常规,缺少衣帽间和入户鞋柜。
户型改造
原户型入户鞋柜比较少,卫生间的空间较大,但缺少衣帽间,于是将主卫缩小,做了衣帽间,次卧也缩小,做了入户鞋柜。
设计灵感
一切空间的改造都以实用出发,能让业主住的舒适是最终目的。
客厅
舒适在前,奢华在后。目光所及,皆是风景。
富有艺术格调的软装陈设,能让整个室内设计更上一层楼,每件陈设都有它自己的位置,从而形成精确的、和谐的组成。
灰色调的极简布艺沙发,没有复杂的造型,简单的散发着自己的魅力。墨绿的座椅是客厅的点睛之笔,使得整个空间更加饱满。
将飘窗改造成了定制柜,既增加了储物空间,也保持的原先的休闲功能。金属质感的吊灯与茶几呼应,配上自带线条感的地毯,珠联璧合,相得益彰。
餐厅
餐厅与客厅不设隔断,视觉上保持高度统一。皮质、大理石、金属的合理搭配,体现了居住者的高级品味。
鹅黄与爱马仕橙相间的座椅,使餐厅仿佛有了看得见的活力。整面的百叶窗,保留了空间的通透感,当被碾碎的光洒进餐桌,这就是最完美的用餐环境。
厨房
这里承载了这个家最多的烟火气。
厨房设计大气简洁,大面积的白色显得空间更加亮堂。
主卧
摒弃传统的天花样式,采用无主灯设计,利于带来深度睡眠,也让空间更加舒展与透亮。加上房内各处的金属配饰,构成了特别的艺术感和高级感。
衣帽间是从主卫的空间里划出来的一部分,它是现代生活中最实用的空间。干净的色调,利落的线条,功能与美学在此完美结合。
女儿房
设计师为少女选择了带有一定灰度的粉色,莫兰迪色块的拼接让房间看上去不那么张扬,有一种和谐的静态美。
初夏有樱桃味的晚霞和两三只糖果色的蝴蝶,以及一勺浓郁的风,冲开少女草莓味的心事。
客卧
客卧色调偏暖,以灰金调的墙面、深棕色的地板作为基调,穿插摆件都加以金边,处处有呼应,处处有细节。
书房
榻榻米书房已经成为一种流行,既能当卧室,同时又能兼具书房功能。榻榻米的运用加大了书房的收纳空间,休闲、休息、学习,一体化的设计,更符合现代人的使用习惯。
案例信息丨Case Information
项目地点:江南之星
项目类型:住宅
项目性质:全包
项目面积:125平方
项目风格:轻奢
设计师: 麦丰AR原创国际
施工:浙江麦丰装饰设计工程有限公司
软装:东麦家居
主要用材:整体木作、墙布、护墙、不锈钢
客服
消息
收藏
下载
最近





















