查看完整案例


收藏

下载

翻译
Architect:Lebel & Bouliane
Location:Toronto, Canada; | ;
Category:Private Houses
Stories By:Lebel & Bouliane;Fox Whyte Landscape
When an empty-nester couple made the decision to downsize, they knew they wanted it to be to a low-maintenance, age-in-place home, as well as an architectural showpiece. They had tried condo living but it lacked the familiarity of a low-rise dwelling. Their son, a builder, encouraged them to push beyond their traditional aesthetic and create a custom, contemporary home — something that he could help them build.
To carry out the design, they engaged Architects Luc Bouliane, who quickly established a trusting rapport by paying close attention to the couple’s specific lifestyle. The studio used its distinct design approach to create an easy-keeping ‘forever’ residence that subtly responds to the nuances of the couple’s needs, both now and in the future. Architects Luc Bouliane embraced the challenges and opportunities of the site to derive the bold, adventurous aesthetic, one that carefully balances spatial complexity and practical simplicity.
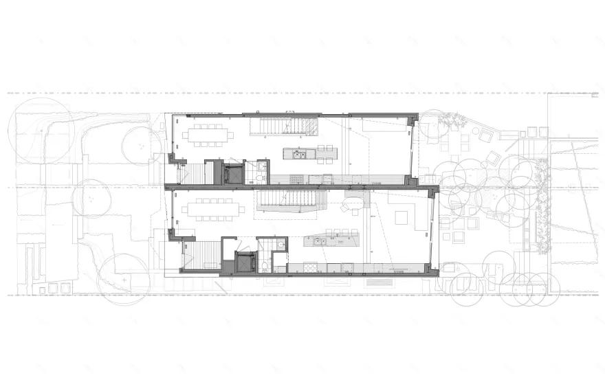
As a firm, Architects Luc Bouliane often will look to natural forms, both geological or geographical, for inspiration. The interest dates back to founding partner Luc Bouliane’s childhood: he was raised on the rocky shores of Lake Superior in the steel town of Sault Ste. Marie. In the case of Relmar, the ‘geode’ — a stone with a rough shell that conceals a glinting centre — became an apt metaphor as strategies were derived to maximize natural light. Although the home faces a quiet, midtown Toronto street — abutting the leafy Cedarvale Ravine — the narrow lot sits due north, in the shadow of a low-rise apartment building.
Like a geode, the exterior of the project is weighty, with a hard, black brick-and-limestone facade. It cracks open at the roof skylights that wash the interior walls with sunshine. To help flood the spaces with light, the stairs are shifted off the reflective, polished limestone walls, creating a three-storey, uninterrupted atrium with the kitchen and living room on the ground floor, a mezzanine office space that hovers above on the second floor, and the bedrooms on the third. The views add to the refreshing feeling by focusing on the ravine and the intensive green roofs on the backyard garage.
In addition to creating a lasting aesthetic, Architects Luc Bouliane discretely and purposely built into the architecture many features that will enable the home to last for the owners. An elevator is tucked near the kitchen to provide an alternative to the flights of stairs; the driveway and back patio are heated to prevent ice build up or the need for snow shoveling; the washroom floors and heated benches are tiled in a slip-resistant surface, and come prepped for future safety grab bars; and the basement includes a health spa, gym and a future suite for live-in support if required.
To help offset construction costs and to add density to the formerly single-family lot, a similar, semi-detached residence adjoins to the north. It shares the same critical architectural language; a hard ex-terior and crystalline forms, but remains flexible enough in the interior to allow a family to move in and adapt spaces to their needs. Most importantly it shares the access to natural light, which no doubt will delight any homeowner, regardless of age or stage in life.
For this award winning, and widely published project, Fox Whyte envisioned a compact, modern and sustainable oasis in the city for the gardens of two semi-detached custom designed luxury homes. Lush, low-maintenance perennial gardens flank crisp, modern stone steps and brick pathways to create inviting entrance gardens with plenty of curb appeal. Custom designed, powder-coated steel markers, reference the contemporary lines of the homes, creatively displaying the house numbers while also providing a mail box large enough to receive oversized mail. Lit internally these boxes glow softly adding another dimension to the gardens at night.
The back gardens make wise use of the limited space. Abundant plantings provide privacy and frame the small spaces. In one back garden a low planter at the garage doubles as additional casual seating around the gas fire bowl, which also functions as a contemporary coffee table when not in use. This garden also features a custom built-in BBQ with an open counter that maintains views to the planting beyond, expanding the space visually while also providing a beautiful and functional outdoor serving area when the owners entertain. Though compact, the carefully considered layout of this garden is perfect for entertaining and relaxing.
At the home owners request, green roofs were constructed above both garages. Specifically, the owners wanted a green roof garden to attract Monarch butterflies. Fox Whyte designed the green roof planting with a mix of native meadow species, sedums and milkweed, to attract the Monarchs. Not only do the green roofs provide habitat in a very urban setting they also provide a beautiful view from the upper floors and screen the adjacent commercial buildings. A strong example of successful green roofs on a residential infill site, Relmar House is showcased as a Case Study with the City of Toronto’s Eco Roof Incentive Program and noted to reduce green house gas emissions by 280kg of CO2, and divert 67,000 litres of water from the municipal system, annually.
▼项目更多图片
客服
消息
收藏
下载
最近






















