查看完整案例


收藏

下载

翻译
Architect:2929DesignLab
Location:181/289 Photharam Rd, Chang Phueak, Mueang Chiang Mai District, Chiang Mai 50300, Thailand; | ;
Project Year:2022
Category:Private Houses
With the condition of the project’s site location having 20 meters width and 80 meters long which is considered as a challenging land type in the design of single detached houses in the city. One of design criteria comes from the owner’s request, he loves to write and read books and always exercises to keep himself to be in a good health. We have imagined this house which has a very private, serenity, and a lot of greenery space, and integrating with exercising units (gym, outdoor swimming pool, and running track).
Our design begins to lay out the concept and design process not only from the question of how to connect the whole living units while keeping the sense of separation, but also from the question of how to create the sense of continuity linking the front to the far back. We come up with the idea of “the Wall”. The wall becomes the visual element which help us creating the sense of compartment at the same time linking other parts of the house come together. We also use the wall to create an enclosed space with the inner garden (courtyard), which allows each living unit to alter the opening, the flow of air, light and atmosphere.
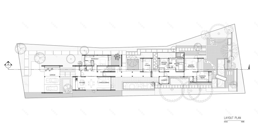
TP House is a one-story house with an area of 500 sq.m. on the ground floor (800 sq.m. including the roof top), consisting of two main compartments. The front compartment is a location of dinning room, living room, a guest chamber, including the way up to the roof top facility like 60 m. long running track. The back compartment is a private unit consisting of a master bedroom, dressing room, main bathroom, and a private library surrounding a large fish pond and a greenery garden. The swimming and gym will be located at the center of these two compartments. The walls, the main architectural feature, are quite large and they are cladded with volcanic stone. Once the volcanic walls composed with a cast concrete ceiling showing the trace of the wooden form work and a cast concrete cylinder pillar showing the mixture between smooth and roughness on the surface, they create a feeling of the connection modern lifestyle in combination of tropical ways of living. That is the goal we want to achieve.
Moving from the ground and walking through the alley of the staircase, we would like to create the sense of transformation for the roof top area. The roof top is 60 meters in length and can be used for jogging and exercising. For other parts of the roof, we prepare for solar panels installation. This area is unique and special because in every morning and before sunset, it gives you a picturesque scene, a panoramic view of Doi Suthep Mountain, the holy mountain of Chiang Mai which the local people worship and respect.
Architects: 2929DesingLab
Interior Design: Atelier Builder Co.,Ltd.
Landscape Architect: H2O Design Co.,Ltd
Photography: Light Addict Photography
Facade cladding: Rock finishing , By Tarapat (Local brand)
Flooring: Floor tile , COTTO
Doors & Windows: Aluminum, Local brand
Roofing: Recycled Cellulose Bitumen Roof , Onduline Classic, Onduline by BK Inter
Interior lighting: Architect Lighting, AE At East Lighting
▼项目更多图片
客服
消息
收藏
下载
最近






















