查看完整案例


收藏

下载

翻译
Firm: ibda design
Type: Cultural › Cultural Center Gallery Hall/Theater Museum
STATUS: Under Construction
:
SIZE: 25,000 sqft - 100,000 sqft
Hayy: Creative Hub is a mixed-use arts centre in Jeddah, a first-of-its-kind in Saudi Arabia that encourages the broader public to interact with art, music, film, architecture, and local innovation.
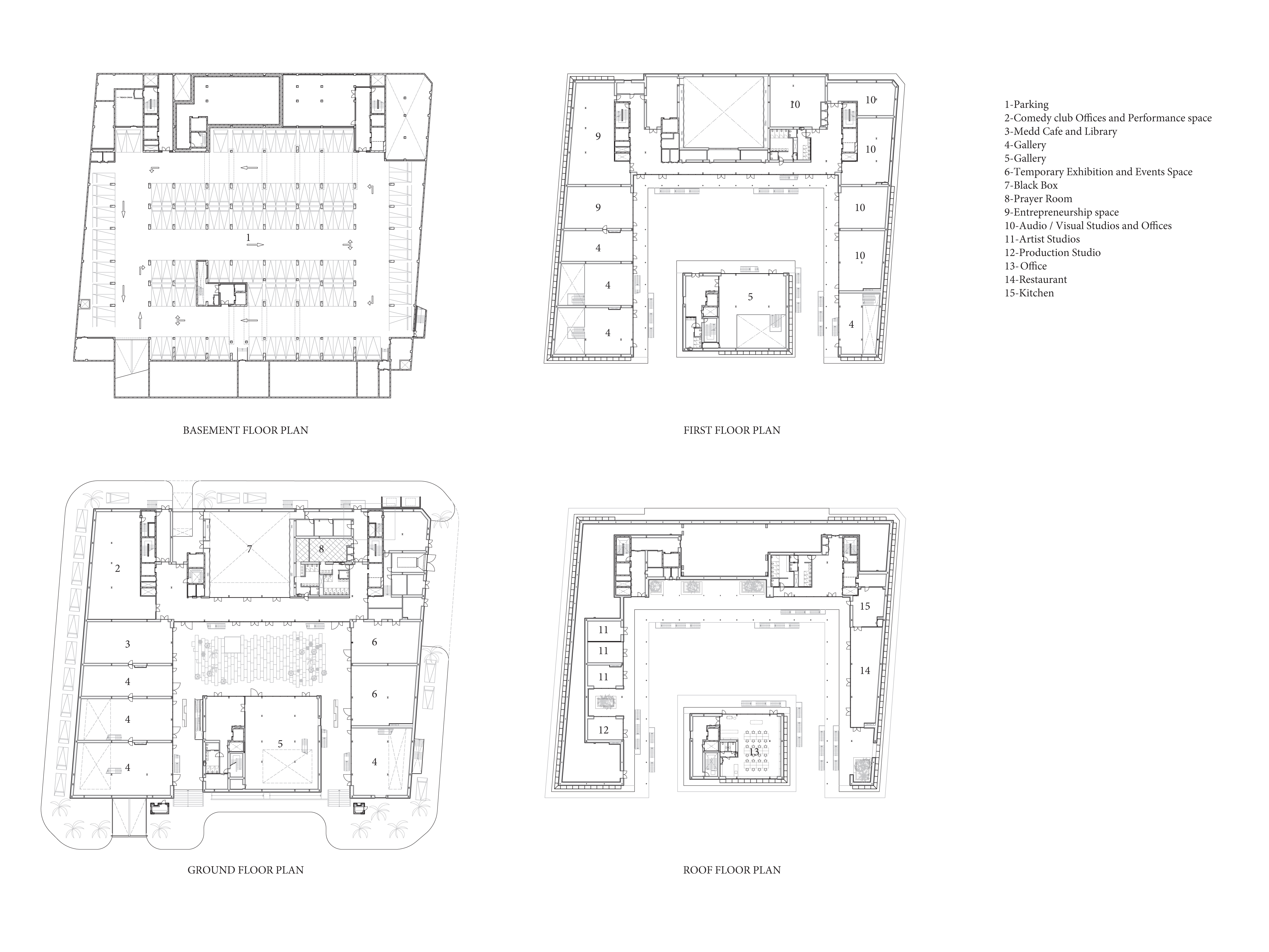
Fundamental to the project is the main central courtyard, which acts as the driver of the architecture and the programmatic heart of the community. On the building’s upper levels, the courtyard is surrounded by shaded, staggered terraces that serve as extensions of the courtyard, and allow it to be conceived as a spatial whole that connects every level of the project. On the ground floor, the courtyard is enhanced by seating amongst natural vegetation and greenery. With its strategic placement in the programmatic arrangement, the courtyard acts as the catalyst for the other features of the architecture with continuous, fluid circulation. The courtyard's adjacent position next to the centrally-located art gallery exhibition space provides direct connections to other services: new media offices, comedy club, commercial art vendors, black box theatre, and multi-use spaces.
The staggering of the architecture’s volumes relates sensitively to its context, limiting its visual impact upon the surroundings and reducing its monumentality. Further, the space in-between the volumes acts as a continuation of the exterior street running adjacent to the architecture, creating a circulation connection between the interior of the building, the central courtyard, and the community. The exterior surfaces are specifically designed to the climate and culture of Middle Eastern cities, receiving natural light into the interior spaces and maximizing transparencies where possible, while simultaneously maintaining the privacy of neighbouring buildings. Additionally, the building's front elevation is designed to be a “blank canvas”, not just a blank façade, on which art can be projected and displayed to the neighbouring community.
客服
消息
收藏
下载
最近













