查看完整案例


收藏

下载

翻译
Architect:William Tozer Associates
Location:Stoke Newington, London, UK; | ;
Project Year:2019
Category:Private Houses
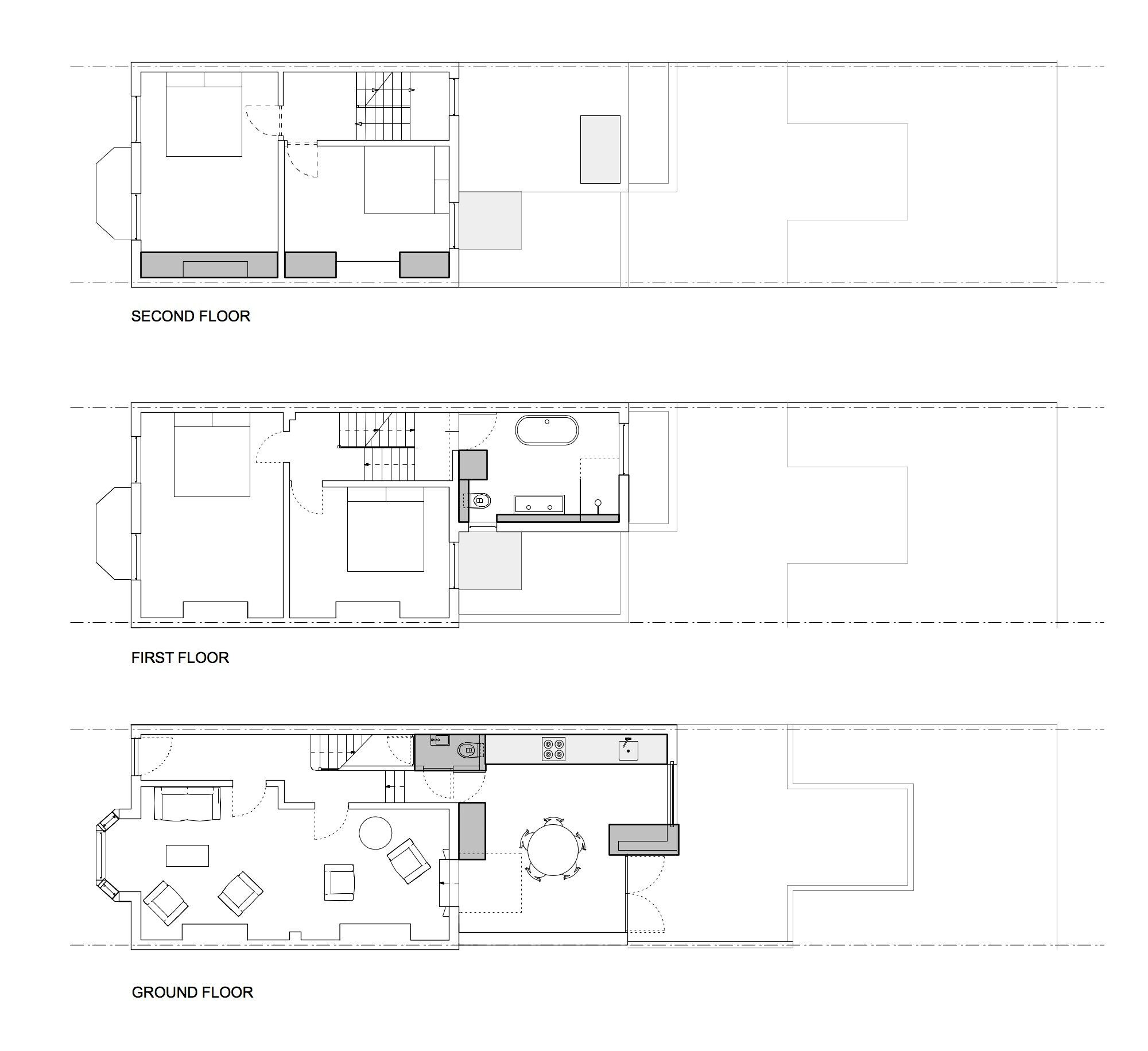
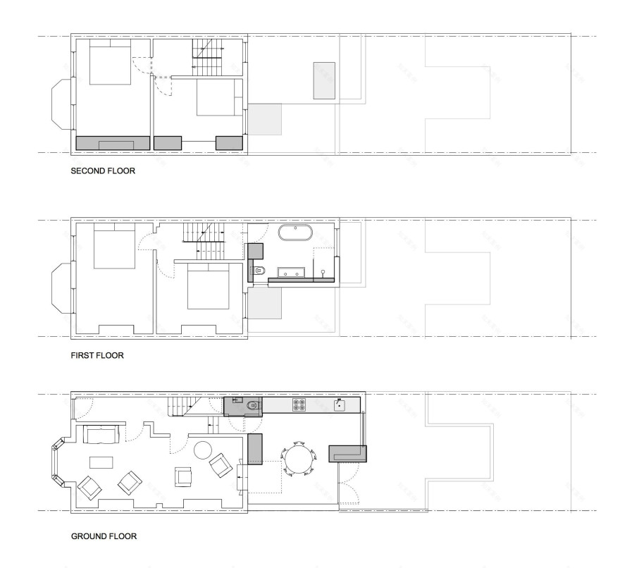
The building exterior is finished in London stock brick, black-painted brick, and black charred larch. The black timber finish continues into the interior at the threshold, and is repeated in another volume in the centre of the ground floor—punctuating the division of the open-plan space into kitchen, dining and living zones. This surface treatment of vertical timber is repeated on storage volumes on the first and second floors, but with a white paint finish.
The threshold between inside and outside is further dissolved by the continuity of a polished concrete floor finish—which extends from the terrace into the kitchen and dining spaces—and an exposed brick wall in the same stock and finish as the rear elevation of the house. Elsewhere, original Victorian floorboards are curated into the new design with a blonding treatment. A projecting glass box brings natural light deep into ground floor plan.
Achitects & Photo credits: WILLIAM TOZER Associates
▼项目更多图片
客服
消息
收藏
下载
最近

















