查看完整案例


收藏

下载

翻译
Architect:Anagram Architects
Location:Anand Niketan, New Delhi, India
Project Year:2015
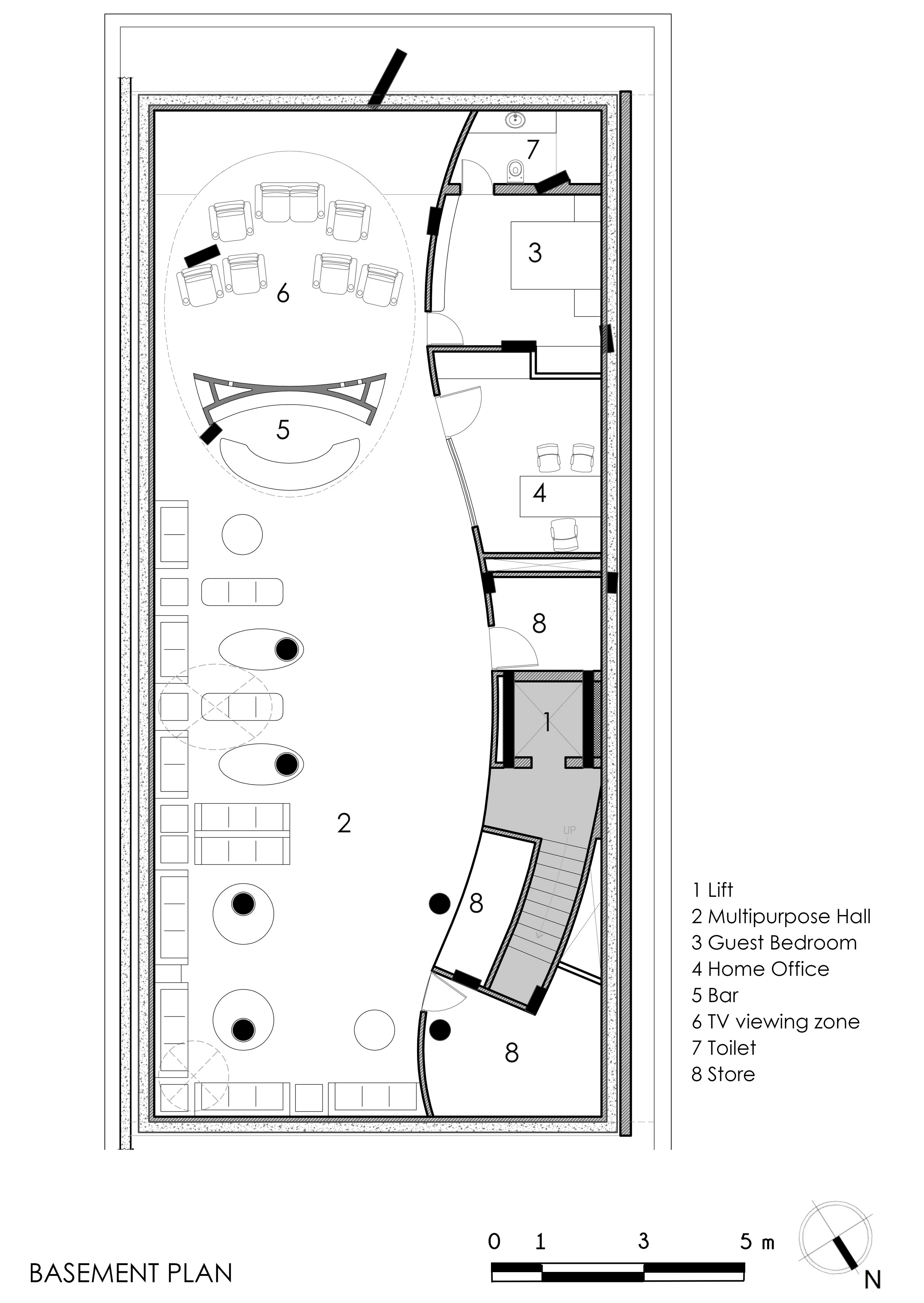
Category:Private Houses
Large urban residences both register and articulate financial and aspirational value. Catering as much to their inhabitants’ needs as to their whims, they are, at once, spaces of private indulgence as also objects of a more socially motivated aesthetic expression. Therefore, the luxurious and the exotic are sought in various ways from their design. In big cities, global market systems drive construction, fabrication and procurement logistics, and so, the extrinsic, or exotic, in terms of materiality and the machined, in terms of texture and precision, are more sought after and given greater value.
▼项目更多图片
客服
消息
收藏
下载
最近































