查看完整案例


收藏

下载

翻译
Architect:l i n e a r c h i t e c t s
Location:Vadul lui Voda, Moldova
Project Year:2012
Category:Private Houses
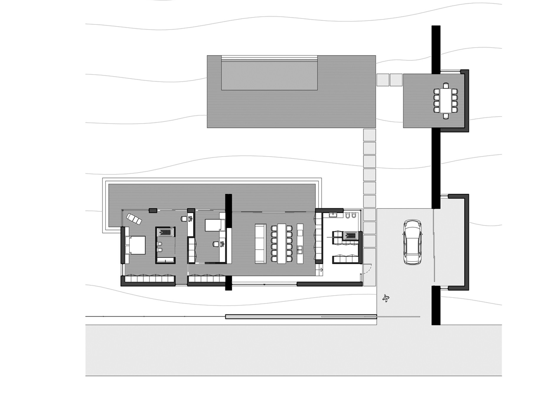
Architect Dmitry Petrov is a convinced minimalist. His search for simplicity represented a dominant theme when designing a contemporary holiday house, located 15 minute drive from Chisinau, Moldova. Perfect for a young family that loves nature, the property offers large open areas designed following a functional mix between clean lines and advanced technology. The onestorey house is composed of three volumes. The first represents the house itself and shelters the living room, the kitchen, the dining room and two bedrooms. The second “box”, on the northside of the house embodies a covered terrace and a store room, while the third volume represents the carport. Moreover, the creative team of Line Architects studio beautified the garden with a swimming pool where the owners can relax and admire the environment. Colors were used at a reduced scale, just to delimit the spaces or to create notable borders between interior and exterior. In a nutshell, the residence just signals ‘holiday’, but still feels minimal and clean.
▼项目更多图片
客服
消息
收藏
下载
最近




























