查看完整案例


收藏

下载
在不更改硬装的前提下,设计师通过模块化的组合设计,以软装的布局实现家居空间的多元化解决方案,以破解小户型的多元生活功能。
60平一居室的多变空间
这是针对年轻小夫妻打造的一居室小户型,整体色调以清新自然的绿为主色调,搭配零星黄色,结合温润的实木材质、大理石水波纹的自然肌理,辅助金属与水晶的色泽作为细节点缀,呈现春天的温暖生机。
进门口的区域则设计为书房阅读区及休闲区,作为学习与工作的场所,也是日常物品收藏的展示区;书架对面的墙面以落地镜的设计中和原空间的狭长感,客厅则取消了电视柜,以释放过道的尺寸,降低局促感,增强空间开阔性与舒适度。
原始平面图 VS 优化平面图
客厅优化后轴测示意图
与家人休闲度假游玩收集回来的小物品,如比利时艺术家Guido Deleu的雕塑The visitor、意大利LSA的花器、瑞士Vitra的L‘Oiseau by Ronan动物摆件等,精巧的艺术品、书画物什等心头好,连同安静下来阅读与思考的心情一起,安放在入口的阅读休闲区。
卧室是让人宁静放松且私密的小空间,侧边的小空间作为开放式独立衣柜,即使潮湿的南方也能保持衣物的干燥整洁。弧线设计的梳妆台、森林绿的床边桌、象牙白的皮质椅,与玉石般圆融质感的HAY床头夜灯柔和映衬。
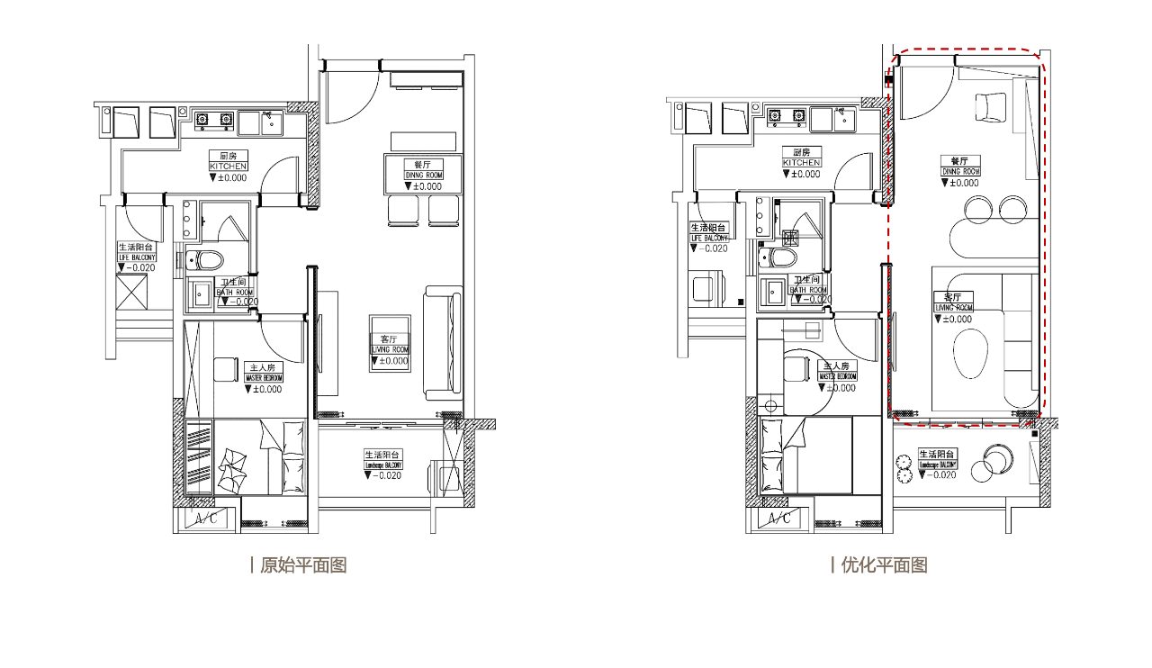
109平精致三居室
109平米的三居室是针对广州有小孩的年轻家庭打造,考虑到年轻父母对于时尚生活品质感的追求,以及家庭小成员的舒适居住环境的平衡,整体以现代感的简约设计和家居的品质感为基调,同时兼顾居住的实用功能与空间艺术感的呈现。
色调上以温暖的大地色为主,辅以明亮的甜橙色、绿色和黄色,以丰富视觉层次感。家具以实木材质为主,胡桃木色与金属材质、大理石、水晶、绿植衬托点缀,优雅气质与年轻感并存。
原始平面图 VS 优化平面图
客厅优化后轴测示意图
为考虑家庭各成员间的居住舒适度,并兼顾多家庭成员的居空间实用性,设计师通过一体式家居设计,以软装陈设的角度丰富空间的多元功能,丰富了物品展示陈设、阅读、休闲等功能,并提升了家居储物空间。
客厅作为家人生活的主要家庭休闲区,同时也是表达个性、审美的空间,利用入门即见的墙面作为艺术画及收藏物品的展示区,增强空间艺术美感的同时,也替代沙发背景墙作为空间视觉亮点。
次卧则以榻榻米的设计让渡出书房的功能,让阅读与居家工作学习拥有独立的空间,同时也增加了隐藏的储物功能,儿童房则更改为高低儿童床设计,给小朋友的攀爬玩闹提供一个合理的场所,也给未来家庭中新添的小成员预留一同休息、玩耍和学习的空间。
家居生活如何放大空间
或许并不是直接在空间面积上想办法,也不全然是智能家具化上做文章,设计师尝试以业主视角,找到更为简单可行,易于实现的空间解决方案—— 设计师基于软装陈设的「公寓模块化组合」正是基于此:连体式客餐厅,组合化书房客餐厅,飘窗台改储物一体床等,以符合居住习惯的动线优化、功能附加或升级,让空间得以尽致淋漓的利用,从而实现生活的品质的全面提升。
软装设计:ULD
设计团队:徐瑶、龙佳、陈萍、陈奕帆
客服
消息
收藏
下载
最近







































