查看完整案例


收藏

下载
»设计理念:
Design concept
整体采用白色,暖灰、以及饱和度低但明度较高的奶油色等轻盈温柔的色彩为主色调,再以原木和绿植点缀,使视觉上硬装简洁、软装柔和。塑造温柔慵懒,充满治愈感的空间。
White, warm gray, cream color with low saturation but high lightness and other light and gentle colors are used as the main colors, and logs and green plants are used to decorate the whole, so that the hard decoration is simple and the soft decoration is soft. Create a soft, lazy and healing space.
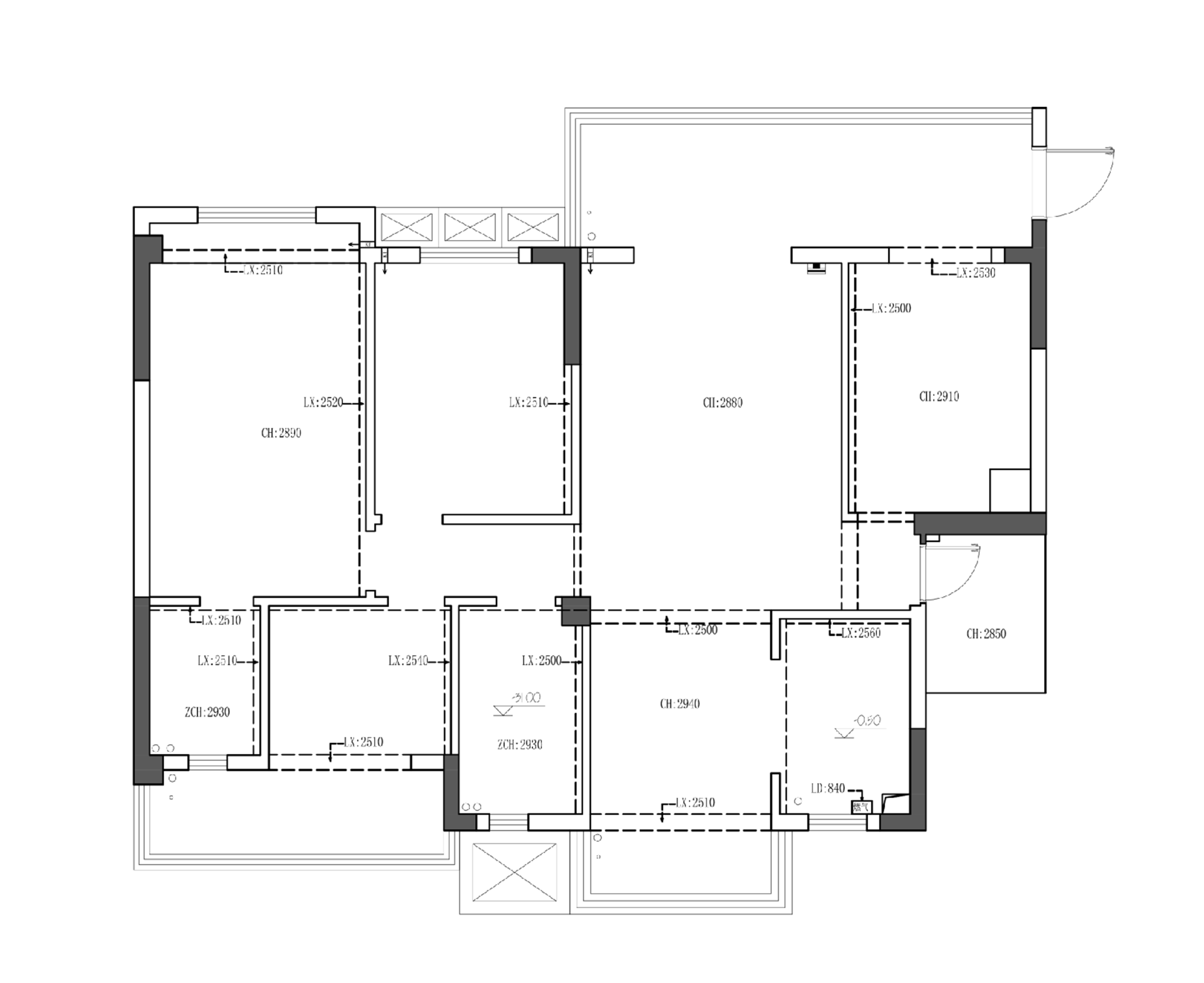
»原始户型分析
Analysis of original house type
01.此户型结构方正,采光充足。
02.朝北卧室房间空间比例偏小,需要扩大使用面积。
03.主卫空间较窄,无法满足业主的生活需求。
04.厨房小家电较多,需要足够的空间将它们归置妥贴。
05.客餐厅之间的梁位较为突兀,需要做弱化处理。
»重新规划
Re planning
01.门外的玄关设计鞋柜,作为常用鞋的储藏更换区
02.玄关墙壁往厨房内移35公分,预留出储物鞋柜的位置
03.餐厅利用原有的阳台设计水吧台,方便业主日常生活
04.儿童房借用一部分阳台空间,扩大空间的使用面积
05.主卫纳入阳台一部分空间后,使用空间更充裕
06.主卧更改门洞的方向,避免卧室门正对入户门的尴尬格局。
07.书房设计成半开放区域,空间变得更加多元化
08.阳台面积较大,需要进行合理的区域划分
»视觉设计
Visual design
■通透的空间,温柔的色彩,展现出家的慵懒和舒适。电视背景墙以奶油色为基底,搭配雅致的长虹玻璃柜门,造型看似简洁,却温柔细腻,细微之处呈现出居住者从容优雅的生活态度。
The transparent space and gentle colors show the laziness and comfort of the home. The TV background wall is based on cream color and matched with the elegant Changhong glass cabinet door. The shape looks simple, but it is gentle and delicate. The nuances show the calm and elegant life attitude of the residents.
■半墙的设计将视线延伸至书房,空间关系变得更加紧密,层次也更加丰富。一排错落有致精致优雅的书柜成为了装点沙发背景的一部分。弧线造型与奶油风的温柔相互契合,点点滴滴,渗透出生活的诗意与浪漫。
The design of the half wall extends the line of sight to the study, and the spatial relationship becomes closer and the levels are richer. A row of elegant bookcases have become part of the background of the sofa. The arc shape and the tenderness of the cream wind are in harmony with each other, and the poetic and romantic life is permeated bit by bit.
■暖白色酒柜极具韵律感的分割,使空间层次更加丰富,大理石石材的加入为家具注入更多的时尚感。餐桌餐椅干净利落的设计造型,黄白相间的色彩搭配,展现出空间的通透与简洁。
The warm white wine cabinet is divided with a sense of rhythm, which makes the space level more abundant. The addition of marble and stone materials injects more fashion sense into the furniture. The clean design of the dining table and chair and the color matching of yellow and white show the transparency and simplicity of the space.
■横介于客餐厅之间的梁位采用弧形的方式进行弱化处理,减少顶面带来的压迫感,空间设计元素也更加丰富。
The beam position between the guest restaurants is weakened in an arc-shaped manner to reduce the pressure on the top surface and enrich the space design elements.
■保留自己的兴趣爱好,并将它融入到生活中,忙碌的日子也不再枯燥单调。屋主的兴趣爱好是收集各类汉服,结合汉服的尺寸和折叠方式,衣柜内部处理更加细分,确保后期使用更加便捷。
Keep your hobbies and integrate them into your life. Busy days are no longer boring. The owner's hobby is to collect all kinds of Han clothes. In combination with the size and folding method of Han clothes, the internal treatment of the wardrobe is more detailed to ensure more convenient use in the later period.
■原本的卧室门洞正对入户门,视觉上并不美观,改变卧室门的朝向后,制造玄关对景的关系,从而避免门对门的尴尬格局。
The original bedroom door opening is facing the entrance door, which is not visually beautiful. After changing the direction of the bedroom door, it creates the relationship between the porch and the scene, thus avoiding the awkward pattern of door to door.[项目简介]
| 地址 Address:鹏成清华府(赤壁市)
| 面积 Square Meter:142㎡
| 风格 Style:奶油风
| 户型 Apartment:四室两厅两卫
| 设计 Designer:界无垠空间设计事务所
| 软装 Soft Decor:界无垠空间设计事务所
客服
消息
收藏
下载
最近












