查看完整案例


收藏

下载
希腊神秘哲学家曾说,人生不过是居家,出门,回家。“回家”,一个涵盖幸福的动词,去往的是心中最纯粹的圣地。而位于北京西山的杨公馆,即是由设计师世亮带领的上海艾未设计将业主心底渴望的净土一点点堆砌,以时间、空间为引,以人为主体,建构成一片诗意自在的世界,并以其独有的生活哲思,缔造出现代简约、细腻丰富、时尚轻奢的格调居所。
私宅作为承载生活的基底,会直接影响到人的方方面面。业主对于自己的生活图景异常清晰,她明确这个家是未来十年一直要住的,每个家庭成员的需求以及情感都要满足,除日常休息以外,居家办公与招待属性亦是不可忽视的一部分。在先后与六位设计师方案沟通、设计中断之后,最终与上海艾未设计一拍即合,共建心中最理想的家。
礼遇 · 思绪蔓延
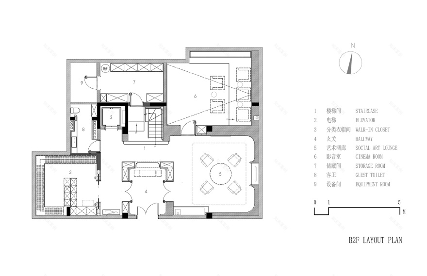
通过对功能梳理、动线规划、逻辑串联,设计师世亮为地下二层配备有社交艺术酒廊、专业影音室、分类衣帽间、储物间及客卫,既能满足男主人的工作与社交需求,亦能充当其他家庭成员的休闲娱乐区域。
玄关以“尺度”彰显风范,采用四面通高的玻璃门打造,似一座水晶宫殿,将“内”与“外”朦胧划分,营造秘境般的氛围。每组门可开合变换,实现不同的功能区划分。隐藏式储物柜亦围绕此而设,满足更多收纳需求。金属网背后的楼梯若隐若现,令人顿生探索之念。
踱步向前,一抹跳跃的红随即映入眼帘。在昏暗的灯光笼罩下,围坐在温暖的火炉交谈、品酒,正是创意滋生、灵感碰撞的绝佳时刻。壁上的画作别具巧思,强调视觉与环境对话,无限延展的花,映射蓬勃生长的思维意识,以虚幻化实物,述说着道不尽的韵味。
阔奢气氛一路顺延至影音室,通过将材料质感与设计艺术融为一体,在元素中寻找节奏,在舒适中兼具审美,以简洁纯粹淡化工作与休闲属性,配合灯光效果,观感更优。
水吧台作为重要的物质补充与动线枢纽,以金属与石材的碰撞,在线条和饰面间打造精致时尚、层次丰富的一隅。
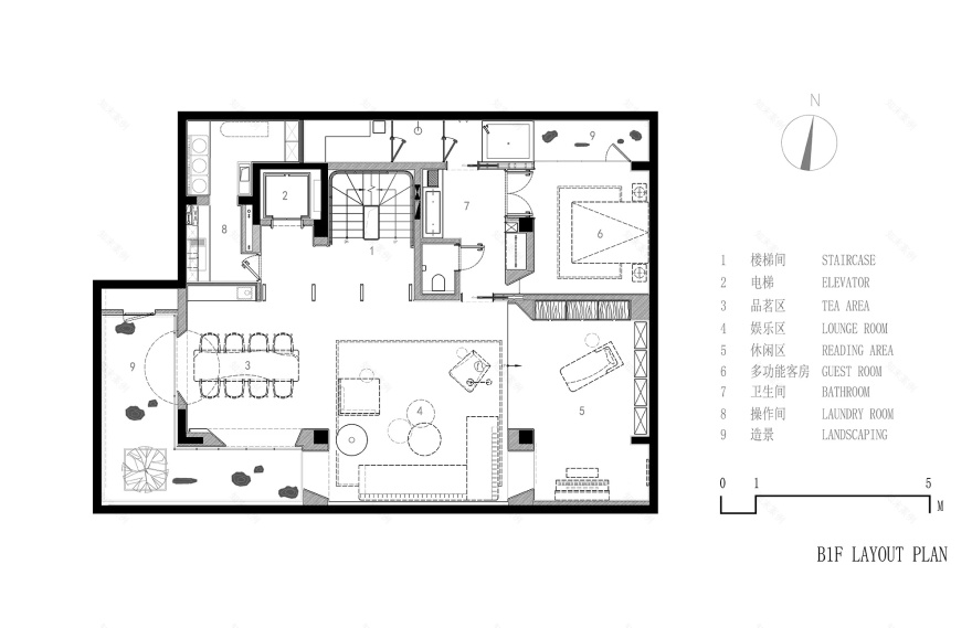
社交 · 诗意流转
与弱光线强氛围的负二层不同,负一层巧设天井,造一方生态小景,借助材质、线条、色彩与光影的变化,自成和谐的韵律美感。
饮茶区、休闲区、阅读区和天光钢琴房,以及多功能组合套房的布局,旨在匹配居者兴趣爱好,以互动联通的休闲氛围,丰富居家场景。
休闲区选用素雅的黑白做基底,舒适自然为核心,借由开放布局与框景设计,让视觉穿透到更远,加强各区的交流与互动,以容纳生活百味。
光,从天窗慵懒的坠落,钢琴置于其下,仿佛深处舞台中央,精妙的演奏即将开始。一旁悬挂的画作《等光洒进来》,延续润物细无声的力量,让这一隅更加舒软安逸。阅读区亦归置于此,展示格架与收纳柜体满足储藏需求,借景手法与温润质地则强调宁静温馨。
饮茶区无须过多的元素堆砌,设计师世亮乐于建构关系,采用建筑的开口设计,以方与圆的结合,映射东方文化里的天圆地方,搭建出微妙的平衡。水景上方的天窗引光入室,而洞口金属编织的屏风则起到控光作用,随着阳光照射角度的变化,光影也随之变化,仿佛成了大自然的调色板。
以客房为中心,周围的空间皆可灵活组合,形成一个带有自然植物景观的泡池、桑拿、独立卫生间于一体的度假套房,让留宿的客人感受到尊贵礼遇和生活仪式感。
移步换景,楼梯延用黑白色系,简洁纯粹,线条延伸仿佛水墨游走,以视觉、功用演绎场域关联与层次变化。
日常 · 简雅随心
设计师世亮将多元化的生活场景融入一层,在布局上巧妙规划客厅、餐厅、中西厨及阳光健身房,并于室外设有绿植区和BBQ露台,深入思考每一个细节,或行或立,或坐或卧,皆贴合居者习惯,让幸福与美好有迹可循。
客厅以素雅为基底,摒弃繁冗的装饰,强调材质和工艺本身。地毯的泼墨形式与大理石的肌理仿佛呼应下层,在绿植与光影的点缀下,演绎多样层次,以简洁细致回应居住品味与审美追求。
烹饪享食间,予人艺术联结与审美熏陶。不规则格架赋予多样陈列方式,便于藏品的展示和存储,精心搭配以现代手法表现的水墨画亦是东方元素的延续,唇齿留香,视觉盛宴。
公卫以大理石的自然肌理,在精巧细节中打造时尚基因,营造别具一格的质感。
私境 · 心之所向
卧室本质上是精神和意志的归属,设计师世亮将睡眠区置于上层,以实现公私区分明、互不干扰。并在有限的空间里演绎无限的可能,拓宽内涵与外延,为每位家庭成员的未来使用寻求解决之道。
二层为儿童、老人打造属于自己的一方天地。温润简雅融合东方意蕴,在老人房勾勒出几分宁静气息,多层次的灰与咖色交织,舒缓的弧形与方正糅合,材质与肌理的点缀与碰撞,舒适与格调油然而生。
考虑到3岁幼儿的日常起居与空间的时间延展性,增设多功能房以承担重要角色。内部配备可升降隐形床,实现功能转换,白天作为儿童娱乐区,晚上则变成保姆间,陪护幼儿。同时将房间一侧以两扇门与老人房相连,合理控制居者的互动性与私密性。
对品质居所的诠释,融入到每一方寸。主卧位于三层,配有独立卫生间、衣帽间、珠宝柜、佛堂及露台。整体色调温暖柔和,动线流畅开阔,室内外仿佛融为一体,日可沐阳,夜能观星,身心放松时也能拥有最好的风景。
大理石铺就的主卫,强调与自然交汇,浴缸朝向露台一侧,边上增设壁炉,拓宽视野,丰富五感。即使在家,也能享受温泉度假般的体验。
如何将这座五层别墅合理规划,即能满足多元述求,又能承载多种用途,打造独具居者属性与温馨气质的家?世亮与艾未设计团队不断尝试新的空间组合,考虑时间延展性与情感互动性,赋予灵活多变的布局,将自然与艺术引入,注重精神层面的回归,勾勒出居者向往的栖心之境。任时光荏苒,人事纷繁,灵魂与爱皆有所依。
△负二层平面图
△负一层平面图
△一层平面图
△二层平面图
△三层平面图
项目名称|北京 西山 杨公馆
项目类型|私人住宅
建筑面积|720㎡
项目地址|中国 北京
硬装设计|上海艾未设计
软装设计|上海艾未设计
设计主创|世亮
设计团队|ARVI DESIGN STUDIO 艾未设计
施工团队|毅力恒兴精装
灯光执行|洸泉科技
软装执行|上海睐芙贸易有限公司
设计时间|2020.04
完成时间|2022.10
项目摄影|郑焰
世亮|KING SHI
上海艾未设计创始人兼设计总监
客服
消息
收藏
下载
最近





















































