查看完整案例


收藏

下载

翻译
Architects:Madeleine architectes, Studio François Nantermod
Area :400 m²
Year :2022
Photographs :Séverin Malaud
Civil Engineering :Ovale & Partenaires sàrl
Partner Architects : Antoine Béguin, Maxence Derlet
Partner Architect : François Nantermod
Wood Engineering : IngeWood
Country : Switzerland
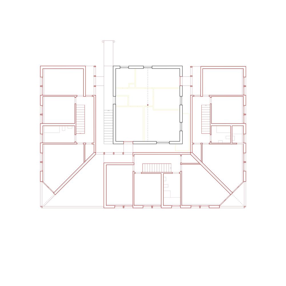
At the end of a road, an existing house built by the grandfather of three grandchildren punctuates the street by its position in the center of a plot. The premise is simple, the grandchildren inherit this particular piece of land and all want to live there.
In a participatory approach, the project management invites us to several meetings with discussions and sharing during which a relationship between architects and clients, between needs and answers, is created. Three entities, initially independent, collaborate on a collective and cooperative intention. The existing house is the heart of the project, the center of gravity around which the new living units orbit. Like a vital organ, it contains within itself the technical parts necessary for the functioning of the new body that surrounds it. Upstairs, the hollowed space remains a witness to the past, offering a new and mutable place to appropriate.
The new construction decomposes its relationship to the ground into three distinct mineral entities, these containing the living rooms and individual private terraces. Upstairs, the absence of clear borders allows the rooms to be interchanged between the units according to the evolution of single families and their willingness to adapt.
A common belt connects the families with a single BLC structure and expresses the interplay of the spans and their resulting force. The existing house and the new construction that surrounds it, act and determine each other like a parergon.
The interstice, an interface between the private and common spaces, presents various devices necessary for understanding the borders of living together. Gateways and steps fill up the void that is instrumental to this dialogue.
▼项目更多图片
客服
消息
收藏
下载
最近

































