查看完整案例


收藏

下载

翻译
Architects:Vitório Ecker Arquitetura
Area :368 m²
Year :2021
Lead Architect :Vitório Ecker
Architecture Collaborator : Catiele Pires Martins
S Colaboradora : Keite Bittencourt, Cristine Barchinski Bauer
Structural Engineering Project : Moises Maciel Vitoretti
Interiorism Project : Arquiteta Lídia Maciel
Execution : Eng. Ricardo Lazzaretti
Country : Brazil
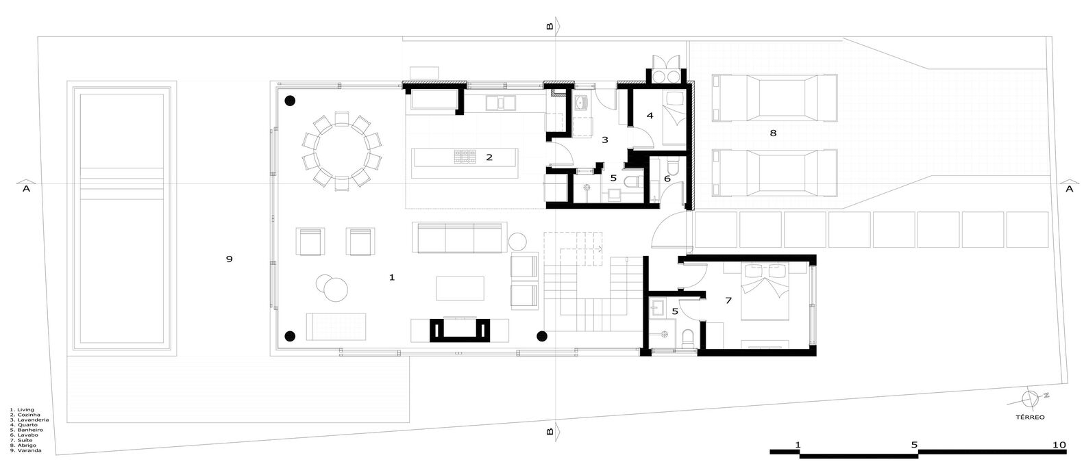
Beach houses are residences aimed at leisure, rest and moments with the family. In the FC house this concept stands out through the living room, which occupies almost all ground floor, joins to the outside, not only by the back of the house, but also on the sides, integrating internal and external so that every social part of the house is something unique, barriers, stimulating socialization among the inhabitants. In addition to the fluidity of the house plant, the materiality also gives Praiano air, the apparent concrete along with solid bricks and wood, presents naturalness and durability, requiring little maintenance and giving stripped rustic style that a beach house should have.
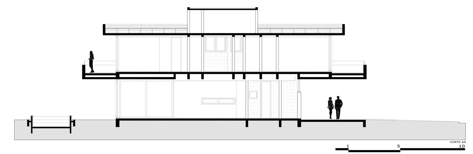
For having large spans without pillars and large balances in apparent concrete, the structure had to be reinforced to avoid any type of deformation, the staircase follows the same line, initially had broken circular and cantilevered steps, but it was defined together with the interior design in building it in straight shape and concrete materiality, following the external lines of the house and providing greater security, avoiding small unpleasant vibrations and possible deformations.
The pool has rectangular shape and high edge, and because of the shape of the edges, when it is in operation appears to be a cube of elevated water, something whole, marking well its volume and along with its rectangular design and aligned with the house, proportionally divides the external social space.
The wooden Brises, which cover the external frames have an aesthetic function of giving unity to the volume of the openings, and at the same time function of giving privacy and thermal comfort to the inhabitants of the house. The wood used has durability and strength necessary to withstand the weather, since the house is located a few meters from the sea.
The owner passed needs plan with some priorities, but left quite free for the architect to work the forms, volumes, materiality and concept, which resulted in something harmonious and following the initial concept, a contemporary beach house.
▼项目更多图片
客服
消息
收藏
下载
最近










































