查看完整案例


收藏

下载

翻译
Buyaka
Buyaka was designed without using a thematic overlay. The design approach portrays an honest intent to do with its program as a mixed use building. It attempts to reflect a sense of integrity with its formal language, emphasizing that good design doesn’t need thematic overlays.
photography by © Faruk Kurtuluş
In architecture, meaning and content have been transposed. We are living in an era where the authentic has lost its importance and has been overruled by the superficial and fake realities have become the norm. Fake, theatrical facades are applied to buildings without a relationship with function and program. Materials mimic other materials with the excuse of cost effectiveness, creating a potpuri of postmodern clutter. What does the building say? Who is the user? İs an open question.
photography by © Faruk Kurtuluş
Amongst this conversation, Buyaka stands at a place speaking of architecture for the sake of architecture. It takes its references from itself and creates a formal dialogue unique to itself.
photography by © Faruk Kurtuluş
Project Info
Architects: Uras X Dilekci
Location: Istanbul, Turkey
Architect in Charge: Durmuş Dilekci, Emir Uras
Design Team: Durmuş Dilekci, Emir Uras, Fikret Sungay, Salih Küçüktuna, Handan Akbudak, Aylin Ayvaz, Evren Alpay, Elvan Çakıt
Floor Area: 440000 sqm
Build Up Area: 248000 sqm
Type: Retail
Photographs: Faruk Kurtuluş, Ugur Ceylan
photography by © Faruk Kurtuluş
photography by © Faruk Kurtuluş
photography by © Faruk Kurtuluş
photography by © Faruk Kurtuluş
photography by © Faruk Kurtuluş
photography by © Ugur Ceylan
photography by © Ugur Ceylan
photography by © Ugur Ceylan
photography by © Faruk Kurtuluş
photography by © Faruk Kurtuluş
photography by © Faruk Kurtuluş
photography by © Faruk Kurtuluş
photography by © Ugur Ceylan
photography by © Ugur Ceylan
photography by © Faruk Kurtuluş
photography by © Faruk Kurtuluş
photography by © Faruk Kurtuluş
photography by © Faruk Kurtuluş
photography by © Faruk Kurtuluş
photography by © Faruk Kurtuluş
photography by © Faruk Kurtuluş
photography by © Faruk Kurtuluş
photography by © Faruk Kurtuluş
photography by © Ugur Ceylan
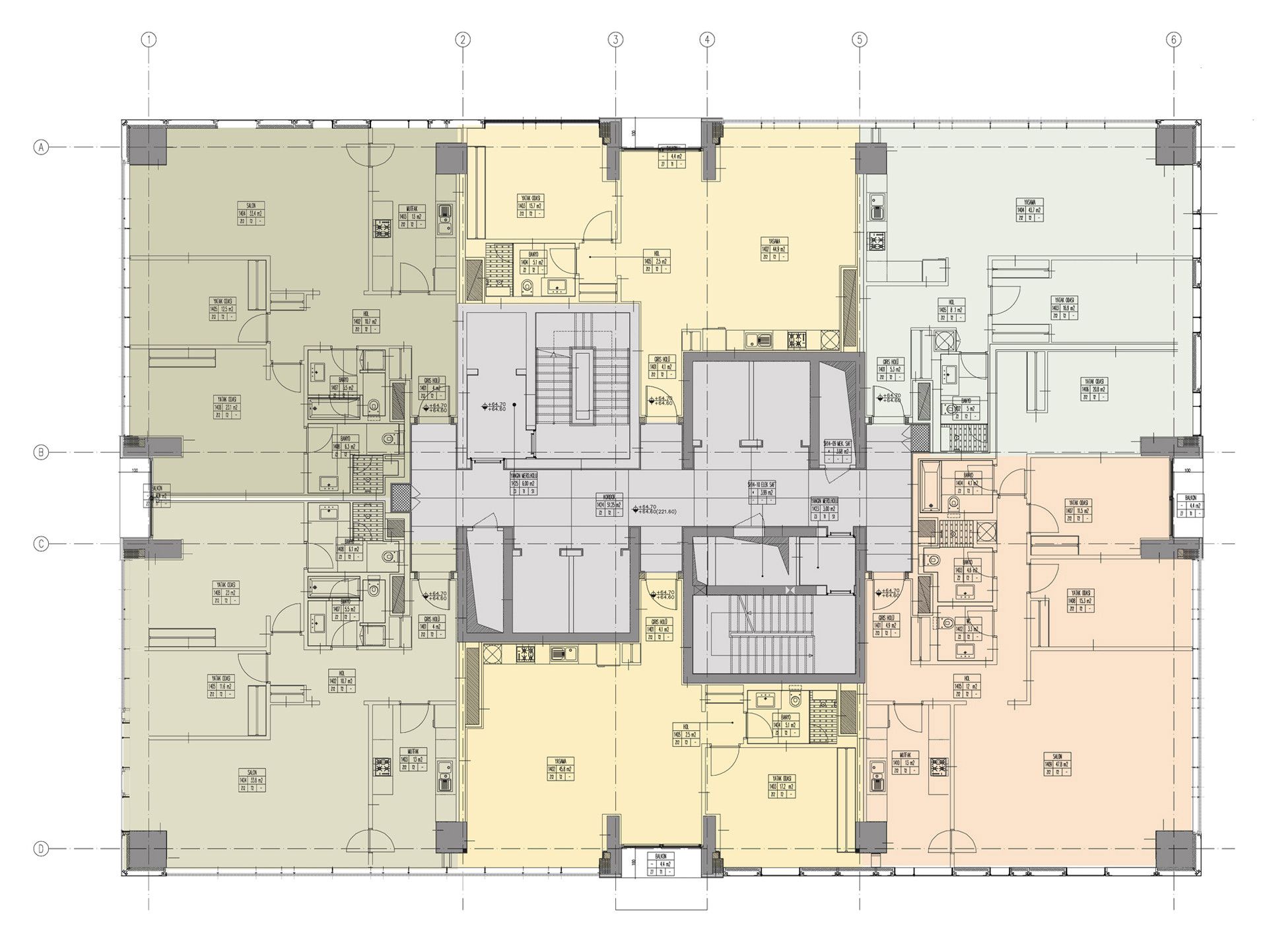
Plan
Ground Floor Plan
First Floor Plan
First Basement Floor Plan
Second Basement Floor Plan
Office Plan
Office Plan
Section
Section
Elevation
Elevation
Elevation
Elevation
客服
消息
收藏
下载
最近







































