查看完整案例


收藏

下载
茶饮行业在这两年市场发散速度如火如荼,品牌行业都遍地开花,但是提到粤式茶饮,在广州这片城土上,却鲜有代表,难免唏嘘。
广州素来八方云集,虽不及香港般密不透风,但人口密集度高,餐饮需求量大,如何在这个老广众多,市井气浓的城市做好一个本土制造的茶饮品牌,本土文化很重要。
茶饮具有很强的吸纳性,悠久的广东文化背景让团队在这次的品牌发散中产生了许多的构想:我们希望这个茶饮品牌能够快速地攻占广东地区的茶饮市场,成为当地具有代表性并且朗朗上口的茶饮品牌。
▲VI设计
得闲饮茶公司的名称是以品类以及广东方言文化为考量,运用白话组合的手法为命名的。名称在包含了产品的同时更赋予了品牌极好的行为寓意,具有时代感且经典的“得闲饮茶公司”为该品牌笼罩了一种老广州的复古气质,让品牌形象更为丰满,突显品牌核心。
▲SLOGAN
当广东人说「得闲饮茶」时,为了敷衍的只是小部分,更多的是熟人间维持友谊的重要方式。我们希望通过品牌体现出“得闲饮茶”这件事的通感效应。在同一时间让消费者体验有形的产品和无形的文化,从而获得具象和抽象并存的感官享受。
▲辅助元素设计
得闲饮茶公司主视觉字体上采用了繁体金梅新毛楷书作为字体创作的框架。这种字体的书写方式笔画流畅简爽,端正分明中带有传统之韵。
▲物料设计
通过对SLOGAN的延伸运用,制造朗朗上口的品牌口号,更好的延伸品牌影响力。
▲门头动画
在门头设计上,我们将与广式的口号以及具有复古强关联性的元素“霓虹灯,琉璃瓦”相融合,在吸睛的同时,消费者能清晰直观地了解店铺的经营品类,更简单地选择、是否消费。
▲入口
在门店室内设计上,我们始终以得闲饮茶旗舰店偏复古的调性为设计依据,从顾客入店消费“五感”角度进行换位思考。
▲室内空间
首先,消费动线设置上,以“内进式消费”进行规划设计。一方面顾客进店后可近距离了解并根据自己的喜好选购产品;另一方面,顾客体验不仅仅停留在“消费”这一动作,更能多维度体验得闲饮茶公司所营造的偏热闹喜庆的空间环境、服务的态度和老广东的氛围等。
▲平面图
因为空间平方数有170平方,所以设置了“假外摆“的区域,营造出一种“室内/室外”的穿插来回。让空间更加迂回与有趣。
▲材料搭配
店铺的空间材料选择上我们考虑了后面因为需要开放加盟的原因,所以以廉价的材料入手选择,利用水磨石间玻璃钢条衬托空间地面整体质感,墙面则简谱贴砖,只是区分颜色作用,搭配壁灯,控制预算。
▲多处发光字
“一盅两件,发财饮胜”等发光字让空间更加整体,也增加了喜庆氛围。于每片墙上居中独挂一盏,在细节之处亦能提升空间的喜庆氛围。
▲包房
店铺包房利用“吉祥如意”“如意吉祥”命名,并利用一红一绿两个配色,凸显复古,包间内的宁静感与门外的喧闹世界似乎毫不相关,独树一帜的金属不锈钢穿过包间中的洞门,鲜明地折射出浓郁风情的美感。
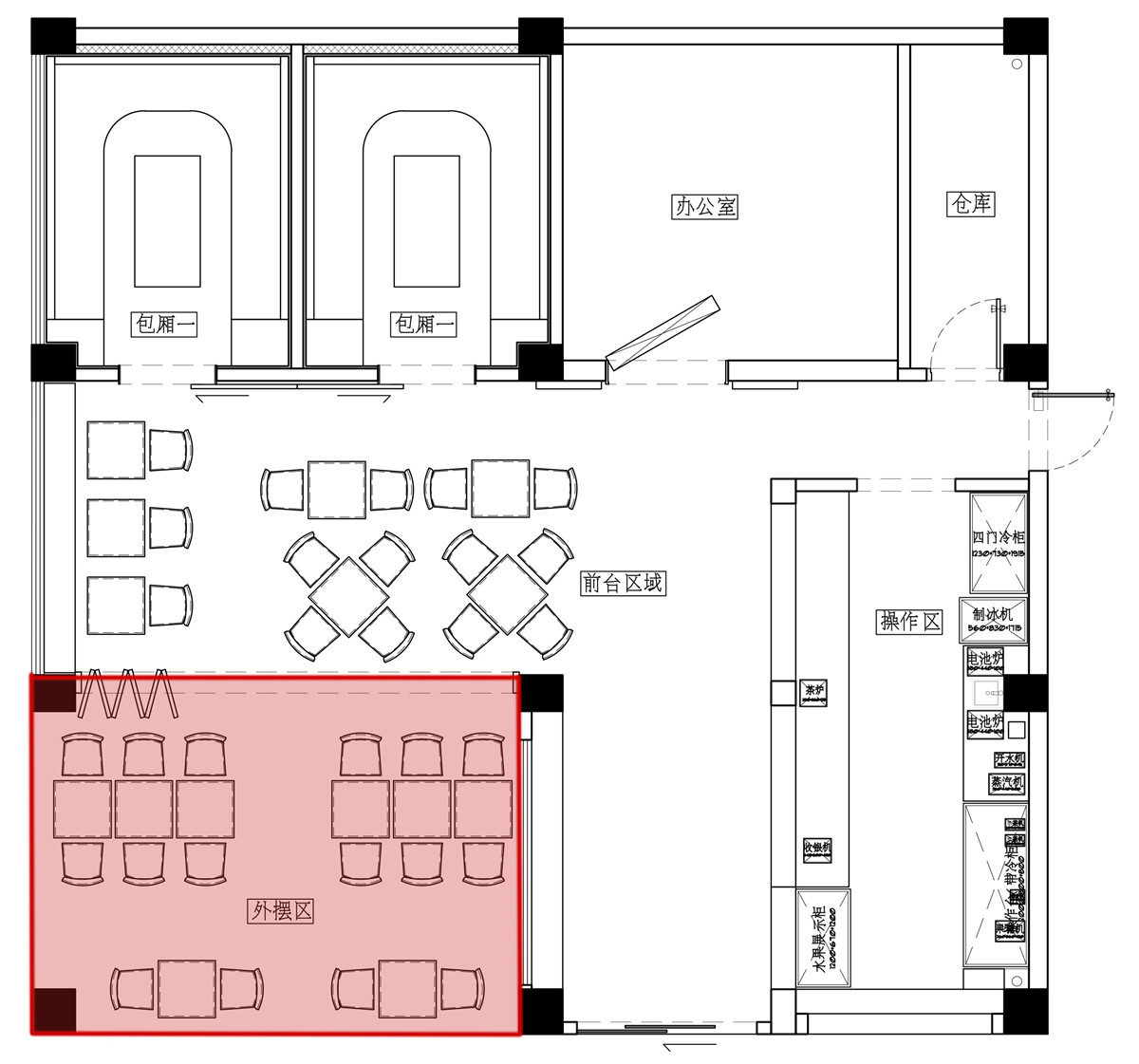
▲外摆区
遵循老广饮茶逗鸟抽烟唠嗑的悠久历史,空间特意利用一层临街位置设置了假外摆的区域,一则空间视野开拓,二则空气光线流通,三则功能美观相互依存。
▲小景
在这个项目中,我们不断地从广州文化生活气息中提取、获益,将文化整合转化,折射为现实,令得闲饮茶公司的设计散发着“以旧代新”的时代特征,变成崭新且具有价值的粤式茶饮品牌。
▲细节
项目信息——
创意:广州永创设计有限公司
设计师:黄冠州、唐贝贝、范佳超、柯锐滨、邓志荣
地址:广州市海珠区UP智谷创意园主干道
面积:170㎡
建成:2019
拍摄:POPOimage/POPO团队
客服
消息
收藏
下载
最近











































