查看完整案例


收藏

下载
对沈阳人来说,金香汇晚茶简直就是老朋友一样亲切的存在。
有田设计团队将中式文化精雕细琢的意识,融入餐饮空间,以场景传达情感,突显空间文化内涵,演绎更加纯粹丰富的设计语言。
外立面设计强调层次与跳跃感,空间丰富大而不空厚而不重,线条简约美观,清雅大方。台基上摆放的绿植更加接近人的视力范围。
整体造型上吸取传统文化中形、神的特征,喻义“丰收年景粮满仓”再合适不过了。
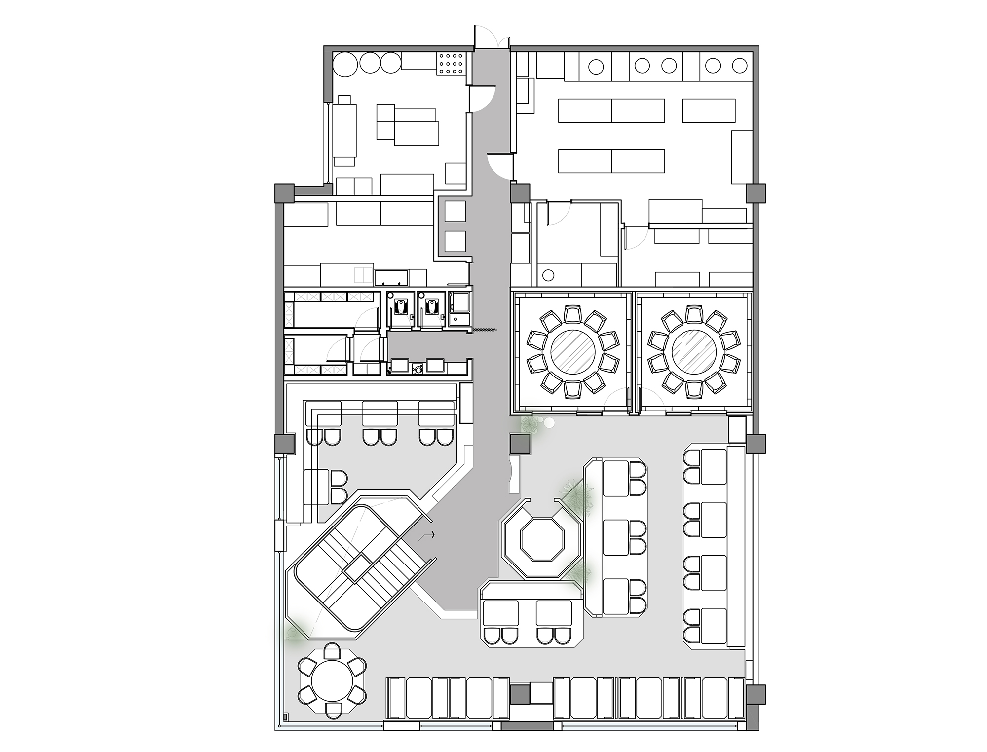
精细的室内空间布局,即传统特色又灵活协调。由白色几何造型的旋转楼梯贯穿至二层空间,呼应八角形花池构成有机空间,搭配上绿石串联,尽情突显东方文化魅力,使空间更加自然更具生命力。
空间立面将现代材料结合中式韵味元素,营造手法浓烈而深沉,动静相宜。
顶面设计对应卡座布局,呈现东方意境。大面积玻璃窗请自然光线进入房间,空间明亮不压抑。
卡位的设计上特别注意私密和舒适的微妙平衡,沉稳含蓄的表达方式不脱离现代人的生活需要。
中式特有的传统文化“意象”是绕不开的词。鲜艳色彩的舞狮,跃动的红绸在奇妙的视觉效果上表达喜庆欢乐,传达寓意,传递美好祝愿。
相聚是人与人之间关系简洁的表达,食饭是人生基本的日常需求。噙上一口艇仔粥,味觉在舌尖上复活,传达中式文化,提升品质舒适的视觉复苏。设计在一点一滴流露,愈久愈散发迷人的东方魅力。
项目信息——
项目名称:今日来相会–金香汇
设计方:有田建筑空间设计有限公司
项目设计 &完成年份:2019.09
主创及设计团队:田然、常宁、李赛赛、解雅涵、杨兵冰
项目地址:辽宁沈阳
建筑面积:800㎡
摄影版权:有田建筑&钟永刚
合作方:环球瓷砖泽宝灯具
客户:金香汇餐饮
施工单位:吴氏精造
装修主材:石材、木材、黄铜
客服
消息
收藏
下载
最近

































