查看完整案例


收藏

下载

翻译
Designed by Zhaohui Rong Studio, The filed locates in Jiangsu Jingjiang. It is long and narrow, with 80 meters in width and 390 meters in length. To reach the requirement of a blue line from the Water Department, the available field can be used is only 60 meters wide.
The project is made up of three parts: the museum, the exhibition hall and the tearoom. The government hopes to use these projects to provide an energetic place on the belt of public green space beside the Shiwei harbor. The low plot ratio changes the relationship between the architecture and the environment. The available width is only 60 meters. But there is still the possibility of breaking the field because of the intervention of new buildings. One of the significances of architectural designing is to use architecture to build a relationship: re-show nature in an abstract way.
photography by © Li Yao
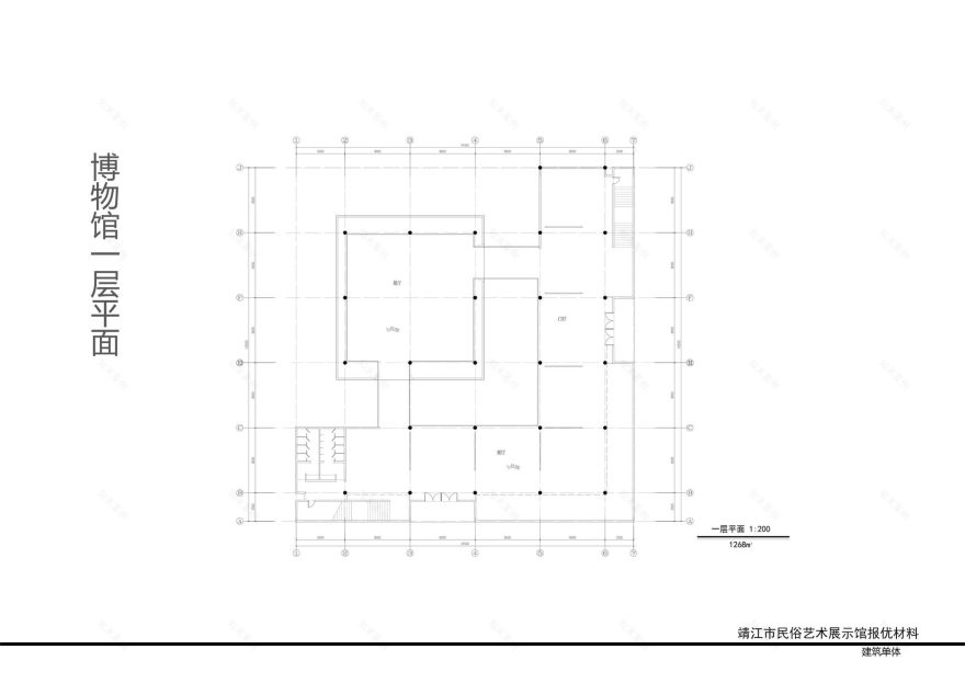
The museum and the road is displayed orthogonally. The architecture is included in the field by an L-shape concrete wall. The public space outside the hall is surrounded by hollow clay brick walls. The hollow bricks allow the sunlight to go into the building, creating an interesting atmosphere.
The pool in the exhibition hall is faced by the museum. The exterior wall of the basement is made up of bamboo mold concrete, while the second floor has a bamboo carbide curtain wall. The two parts are twisted, so space has a transition here. There are several vanish points in the linear exterior space so that the grid system in visitors’ common sense is broken.
photography by © Li Yao
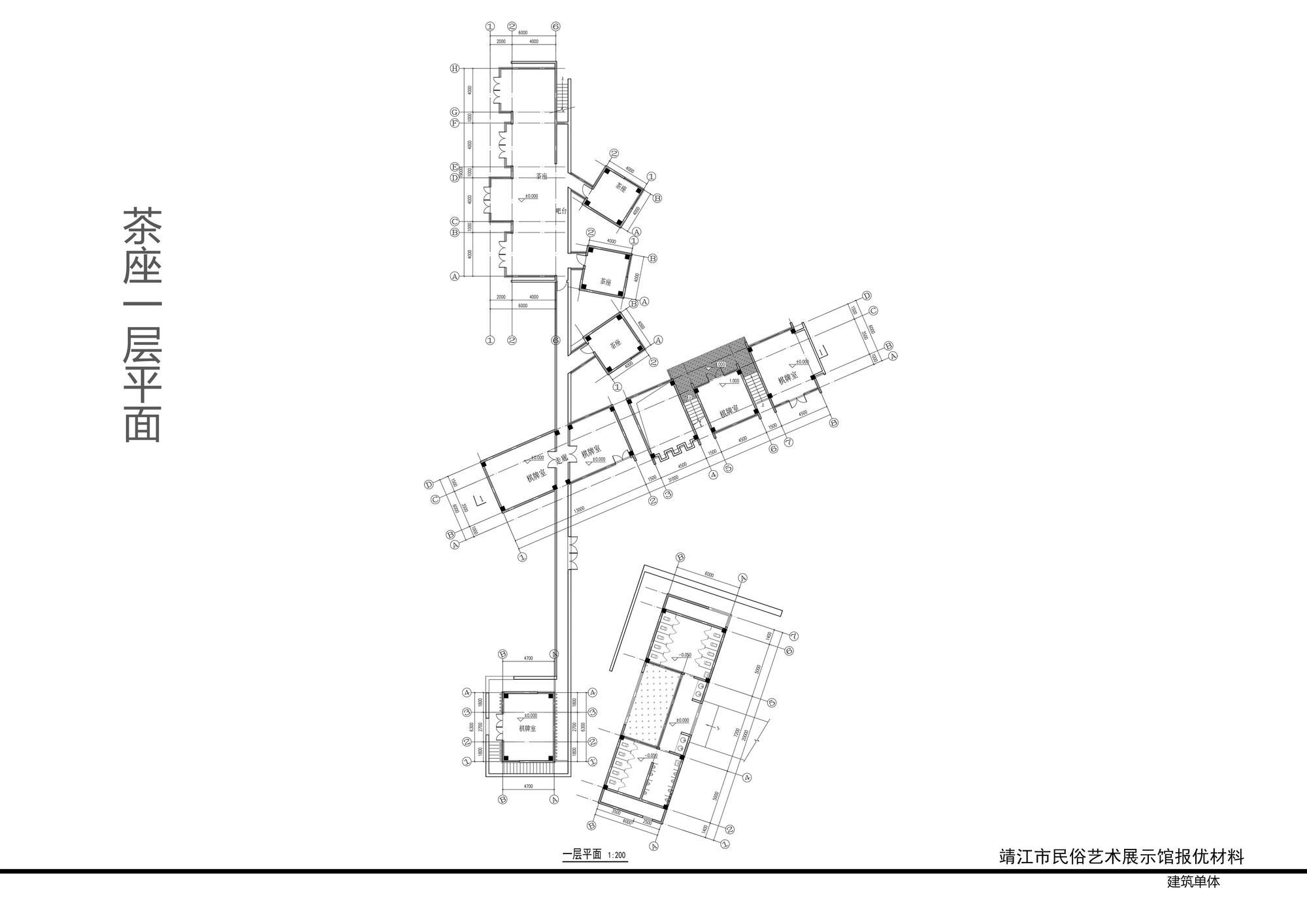
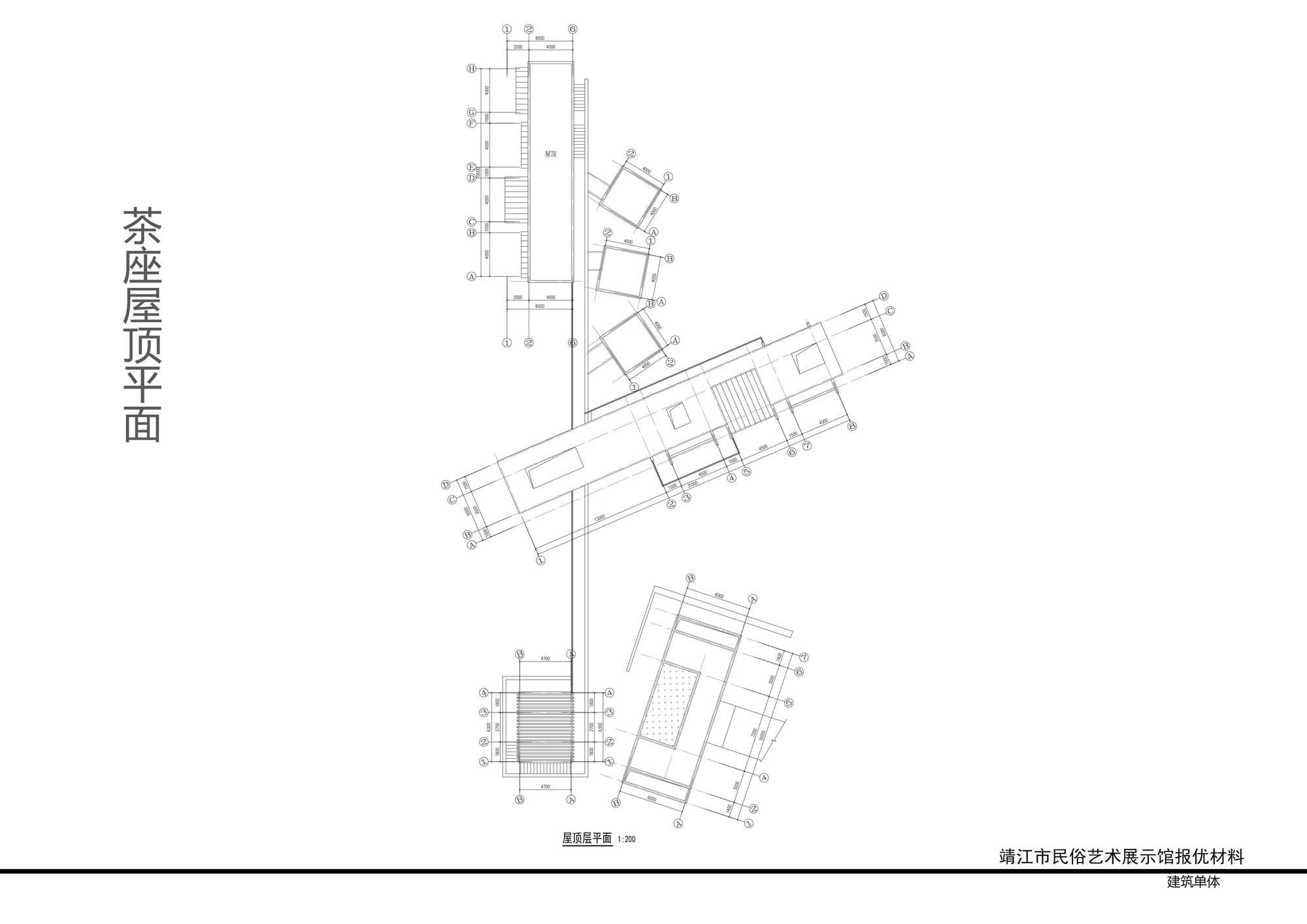
The tearoom has a regular but also the loose linear space. It is designed beside the river so the landscape can be used fully. Going through the architecture to the roof making visitors feel like they are climbing a hill. Two trees breaking the roof, reducing the existence of the basement.
photography by © Li Yao
Project Info:
Architects: Zhaohui Rong Studio
Location: South Zhongzhou road, East Shiwei harbor, Jingjiang, Jiangsu, China
Architect in Charge: Zhaohui Rong
Design Team: Aitian Gu, Hu Liu, Laiguang Yang
Area: 4468.0 m2
Project Year: 2016
Photographs: Li Yao
Structural Design: Lipeng Nie, Zhongqiang Wang, Chen Lin
Water Supply and Drainage: Yanjun Ren
Electrical Engineer: Jiangjun Liu
Heating and Ventilation Design: Wei Qian
Client: Jing jiang Binjiang new town investment company
Project Name: Jingjiang Folklore Museum
photography by © Li Yao
photography by © Li Yao
photography by © Li Yao
photography by © Li Yao
photography by © Li Yao
photography by © Li Yao
photography by © Li Yao
photography by © Li Yao
photography by © Li Yao
photography by © Li Yao
photography by © Li Yao
photography by © Li Yao
photography by © Li Yao
photography by © Li Yao
photography by © Li Yao
photography by © Li Yao
photography by © Li Yao
photography by © Li Yao
photography by © Li Yao
photography by © Li Yao
photography by © Li Yao
photography by © Li Yao
photography by © Li Yao
photography by © Li Yao
photography by © Li Yao
photography by © Li Yao
analysis daigram
tearoom axonometric
analysis daigram
museum axonometric
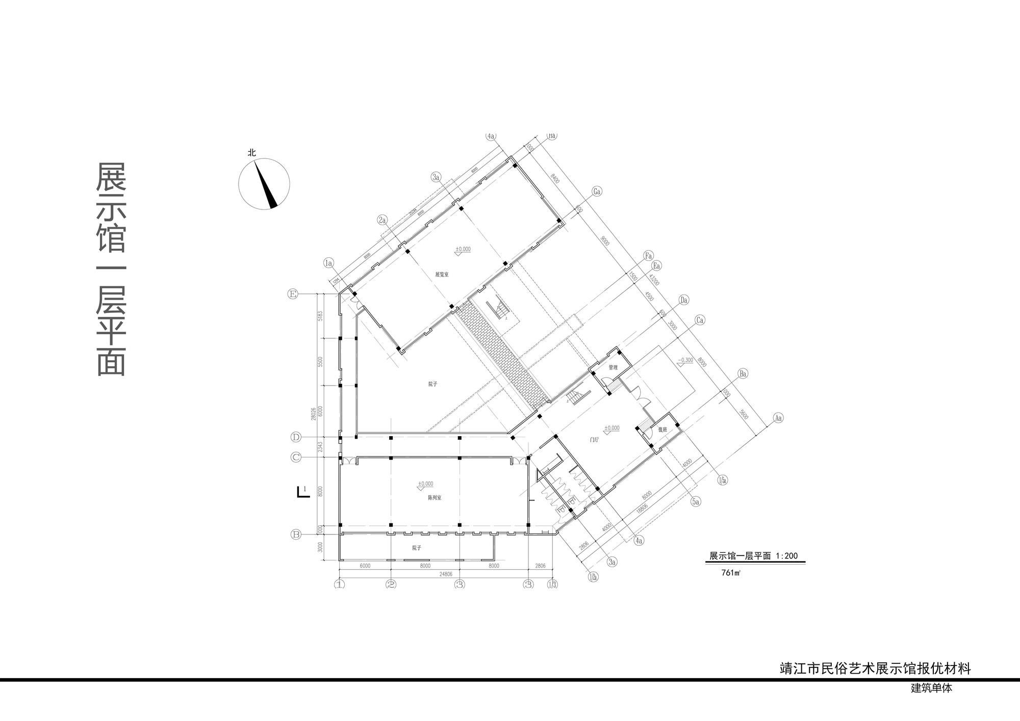
exhibition hall_1F plan
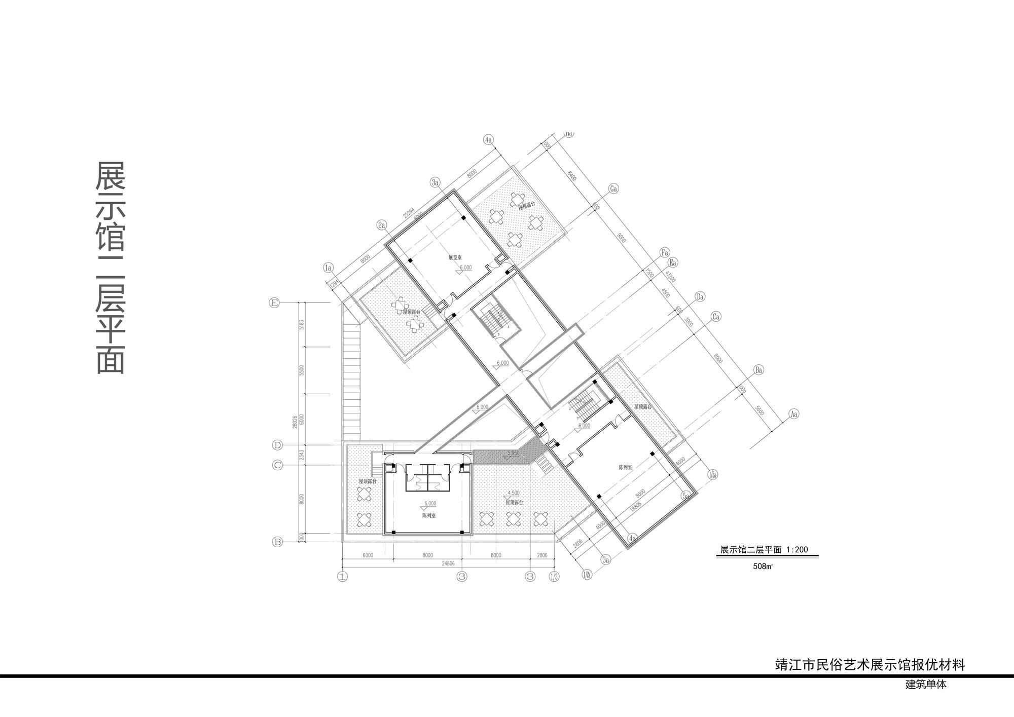
exhibition hall_2F plan
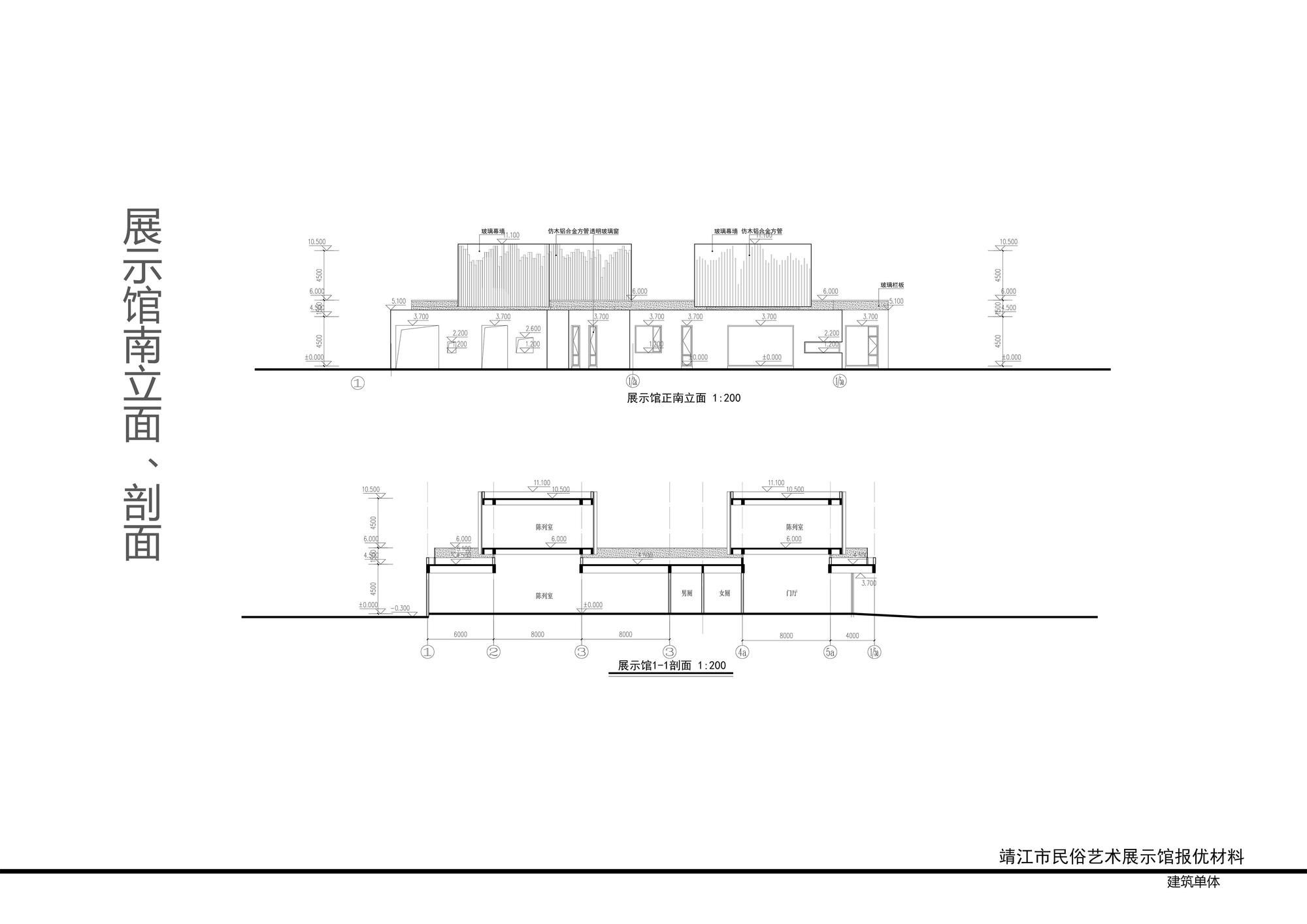
exhibition hall_south elevation & section
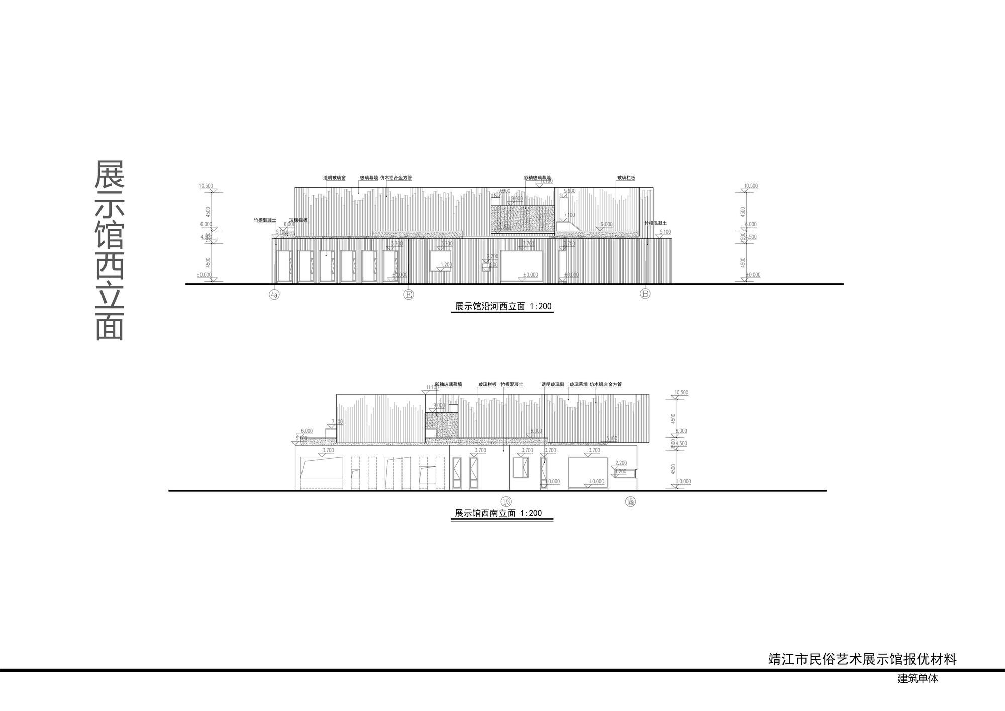
exhibition hall_west elevation
exhibition hall_north and east elevations
1F plan
museum 1F plan
museum 2F plan
museum section
museum north and west elevations
museum south and east elevations
tearoom_1F plan
tearoom_2F plan
tearoom_roof floor plan
tearoom_south and west elevations
tearoom_north and east elevations
客服
消息
收藏
下载
最近
















































