查看完整案例


收藏

下载

翻译
Buk Seoul Museum of Art
Relatively lacking cultural facilities, the North-eastern part of Seoul required a new cultural space that would provide citizens with equal opportunities to enjoy cultural lives. Reviving the memories of Nowon which used to be a field of reeds, the design team visualized a cultural hill that would harmonize with the gallery park.
photography by © Young Chae Park
Like a serene white mass integrated into the hill, Buk Seoul Museum of Art revitalizes the region which is mostly composed of monotonous high-rises apartments and provides a nature-friendly cultural space in which the green flow of the park integrates with the art museum to become a single entity. In particular, diversified circulation patterns create a space of ‘connectivity’ where various elements of people, nature, and art converge to create new possibilities in communication & collaborations.
photography by © Young Chae Park
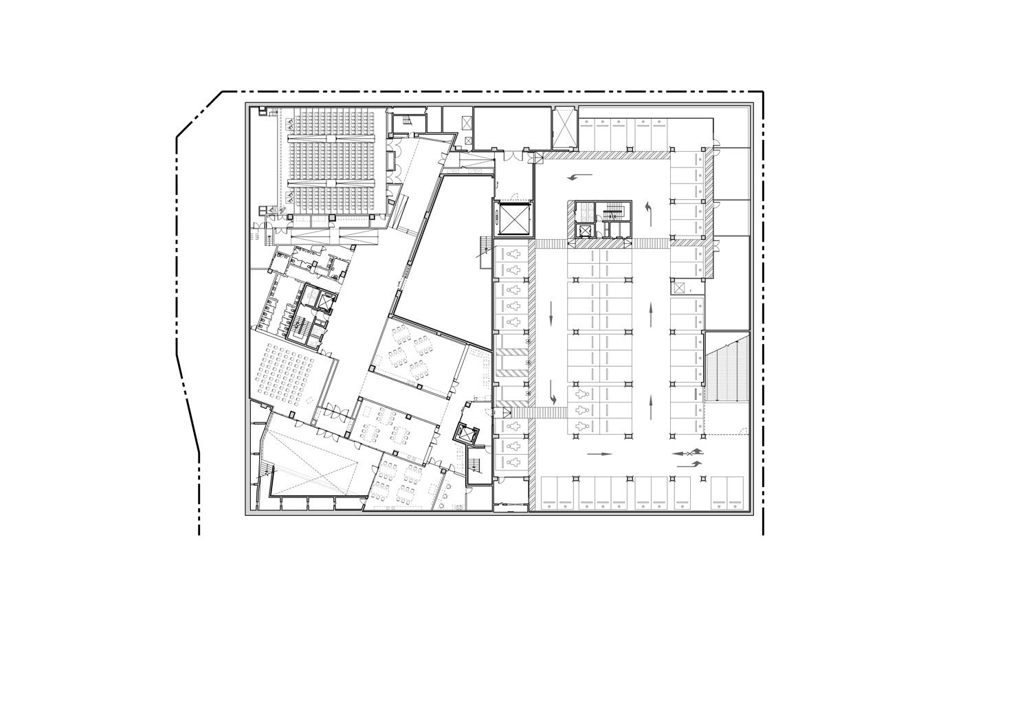
Besides the exhibition galleries which are located on various floors around a central atrium, the basement floor is planned for educational and multi-purpose facilities which involve active communication and exchange of ideas with local citizens. On the first floor, library, multimedia facility, exhibition hall for children and teenagers are located for easy access. On the top floors and the rooftop gardens, an outdoor sculpture park is connected directly to the surrounding landscapes to create an extension of the museum into the park.
photography by © Young Chae Park
Project Info
Architects: SAMOO
Location: Seoul, South Korea
Area: 17113.0 sqm
Year: 2013
Type: Museum
Photographs: Young Chae Park
photography by © Young Chae Park
photography by © Young Chae Park
photography by © Young Chae Park
photography by © Young Chae Park
photography by © Young Chae Park
photography by © Young Chae Park
photography by © Young Chae Park
photography by © Young Chae Park
photography by © Young Chae Park
photography by © Young Chae Park
photography by © Young Chae Park
photography by © Young Chae Park
photography by © Young Chae Park
photography by © Young Chae Park
photography by © Young Chae Park
plan
plan
plan
plan
客服
消息
收藏
下载
最近





















