查看完整案例


收藏

下载

翻译
Sonorous Museum | Creo Arkitekter + ADEPT
In the listed ’Radio House’, originally by renowned architect Vilhelm Lauritzen, the Danish National Museum has reopened its vast collection of historical musical instruments.
The elegant modernistic building from the 1950’ies have gone through an extensive refurbishment, respectfully carried out to emphasize the unique character of the listed building’s material palette and detailing. The museum design includes four delicately detailed sound spaces as part of the collection’s educational program – ’The Sonorous Museum’.
photography by © Laura Stamer
The Radio House is refurbished with great respect of the original building scheme and an approach that preserves its design intentions while adding a contemporary expression to it. The original architecture has been the main inspiration – from the transparency of the exhibition design to the play of colors and patterns in the acoustic walls: All are modern day interpretations of the architectural details in Vilhelm Lauritzen’s original universe.
The four sound regulated studios of the Sonorous Museum are acoustically adapted to a specific instrumental group: strings, brass, percussion and mixed instruments. The four spaces are designed as interactive classrooms in order to provide visiting school classes with a hands-on experience of the classical music instruments and their sound specter.
photography by © Laura Stamer
Each of the four spaces is clad in wood veneer, designed to meet and create the optimal acoustic setting for a specific instrumental group.
From the vertical lamellae of the percussion space, the seemingly vibrating cassettes for strings to the graphical clarity of the brass space, the four spaces stand out as both contemporary modern and yet very classic in their expression.
photography by © Kaare Viemose
Project Info :
Architects : ADEPT, Creo Arkitekter
Project Year : 2015
Project Area : 3500.0 sqm
Sub Consultants : ADEPT, NIRAS
Lead Consultants : Creo Arkitekter
Project Location : Copenhagen, Denmark
Photographs : Laura Stamer, Kaare Viemose
Client : Nationalmuseet / Musikmuseet / Dansk Sprognævn
photography by © Laura Stamer
photography by © Laura Stamer
photography by © Laura Stamer
photography by © Laura Stamer
photography by © Kaare Viemose
photography by © Laura Stamer
photography by © Laura Stamer
photography by © Laura Stamer
photography by © Laura Stamer
photography by © Laura Stamer
photography by © Kaare Viemose
photography by © Kaare Viemose
photography by © Laura Stamer
photography by © Kaare Viemose
photography by © Kaare Viemose
photography by © Kaare Viemose
photography by © Kaare Viemose
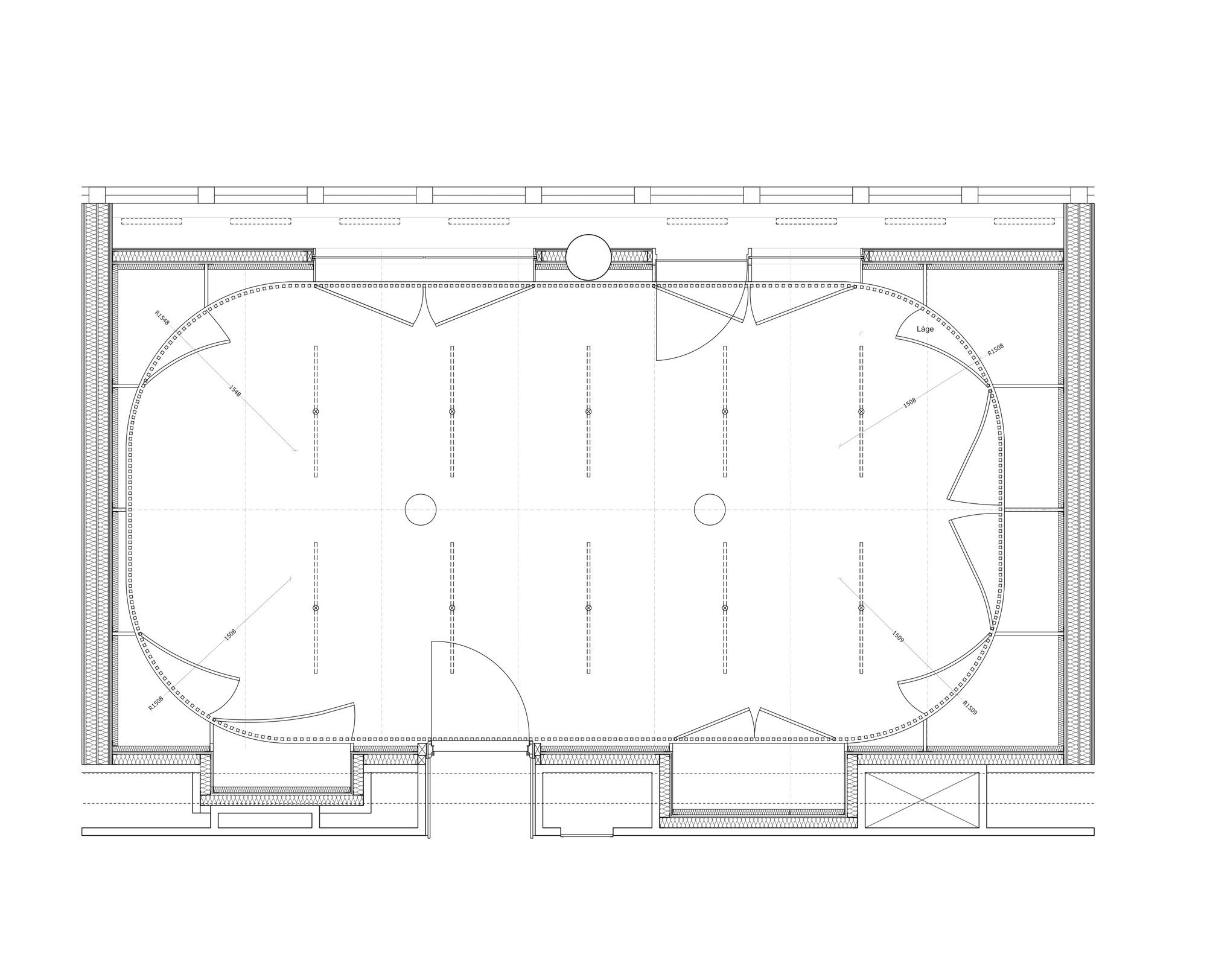
Floor Plan
Floor Plan
Section
Detail
Diagram
客服
消息
收藏
下载
最近
























