查看完整案例


收藏

下载

翻译
Lenbachhaus Museum
Let’s talk about some history first! Designed in Florentine style, 120 years old Lenbachhaus, which was first constructed as the home and studio of the nineteenth century painter Franz Von Lenbach. Later in 1920s, it was converted into a museum and had been incrementally extended over the years. But by the end of 2000s, the structure was in a dire need of restoration to accommodate more than 250,000 visitors per year. But it lacked the facilities needed to cater to its widening audience. The challenge for the museum’s renewal lay in conserving the ensemble of historic buildings and maintaining the amount of gallery space, while providing new circulation and visitor areas, a restaurant, a terrace and a shop.
Photography by © Nigel Young / Foster + Partners
By the year 2013, after more than 10 years of restoration work, Foster and Partners has completed a new gallery wing clad with golden pipes at the Lenbachhaus Art Museum in Munich. The addition of this contemporary wing houses the ‘Blue Rider’ collection of the early twentieth century Expressionist paintings. After an analysis of the existing buildings, a wing dating from the 1970s was removed and was replaced with a new building, with two floors of galleries, which unifies the historical elements along with Richard-Wagner Strasse. Conceived as a ‘Jewel Box’ for the gallery’s treasures, the new wing is cladded in aluminum-copper-alloy tubes whose color complements the villa’s rich ochre render. Inside, there is a sequence of galleries that displays the museum’s renowned collection of paintings by the early-twentieth-century group, Der Blaue Reiter, echoing the domestic scale of their original setting. As many of these works were painted en plein air, indirect natural light is drawn into the upperlevel galleries to create the ideal conditions for their display.
Photography by © Nigel Young / Foster + Partners
A new entrance has been created adjacent to the restaurant, accessed via a new landscaped piazza to the east of the museum. By this exterior circulation, the courtyard garden turns into a tranquil space for visitors from a pedestrian walkway. The restaurant is open outside during the museum’s opening hours with its outdoor seating. It boosts the motion in the surrounding streets and attracts new visitors into the galleries. The social heart of the building is the three-story lobby, from where visitors access the temporary exhibition space on the ground floor and the upper-level galleries. A dramatic top-lit atrium, with ticket and information desks, also access to a new temporary exhibition space on the ground floor and a grand-cantilevered stair to the upper level galleries.
Photography by © Nigel Young / Foster + Partners
Clearly articulating the old within the new, its impressive volume incorporates the ochre exterior wall of the original villa and is scaled to accommodate large-scale works of art. The Museum commissioned the artist Olafur Eliasson for a site specific work titled ‘Wirbelwerk’- a breathtaking sculpture extends down from the ceiling of the atrium of the Lenbachhaus. Composed of counterpoised spirals made of polished metal tubes and hand-blown coloured-glass triangles that refracts sunlight from a slender clerestory window to cast dynamic patterns of light and shade.
As part of the renovation, the architects also addressed the energy efficiency of the existing building. A water-based heating and cooling system within the floors has been implemented – using significantly less energy than an air based heating. This represents an innovative step in a gallery context. Rainwater is also collected and recycled and lighting has been replaced and upgraded with low-energy systems.
Photography by © Nigel Young / Foster + Partners
As per the Lord Foster, “Our main challenge has been to maintain the same amount of exhibition area, within the museum’s footprint, while creating new circulation and visitor spaces. Given the way that the different parts of the museum had evolved, there was no such thing as a typical space – every corner is unique and required individual attention and different design decisions. This has been a fascinating process. Another important aspect of our design has been creating new opportunities for works of art to be exhibited outside the traditional confines of the gallery, such as in the atrium. This space develops the idea of the ‘urban room’ – it is the museum’s public and social heart, and point of connection with the wider city”.
Photography by © Nigel Young / Foster + Partners
Project Information:
Architects: Foster and Partners
Location: Munich, Germany
Client: City of Munich, Cultural Department, Building Construction
Design Team: Norman Foster, David Nelson, Stefan Behling, Christian Hallmann, Ulrich Hamann, Klaus Heldwein, Florian Boxberg, Leonhard Weil, Judith Kernt, Henriette Hahnloser, Eike Danz, Diana Krumbein, Simon Weismaier, Christopher Von Der Howen, Inge Tummers, Jörg Grabfelder, Katrin Hass, Tillmann Lenz
Site Area: 12328 m2
Project Year: 2002-2013
Photography by © Nigel Young / Foster + Partners
Photography by © Nigel Young / Foster + Partners
Photography by © Nigel Young / Foster + Partners
Photography by © Nigel Young / Foster + Partners
Photography by © Nigel Young / Foster + Partners
Photography by © Nigel Young / Foster + Partners
Photography by © Nigel Young / Foster + Partners
Photography by © Nigel Young / Foster + Partners
Photography by © Nigel Young / Foster + Partners
Photography by © Nigel Young / Foster + Partners
Photography by © Nigel Young / Foster + Partners
Photography by © Nigel Young / Foster + Partners
Site Plan
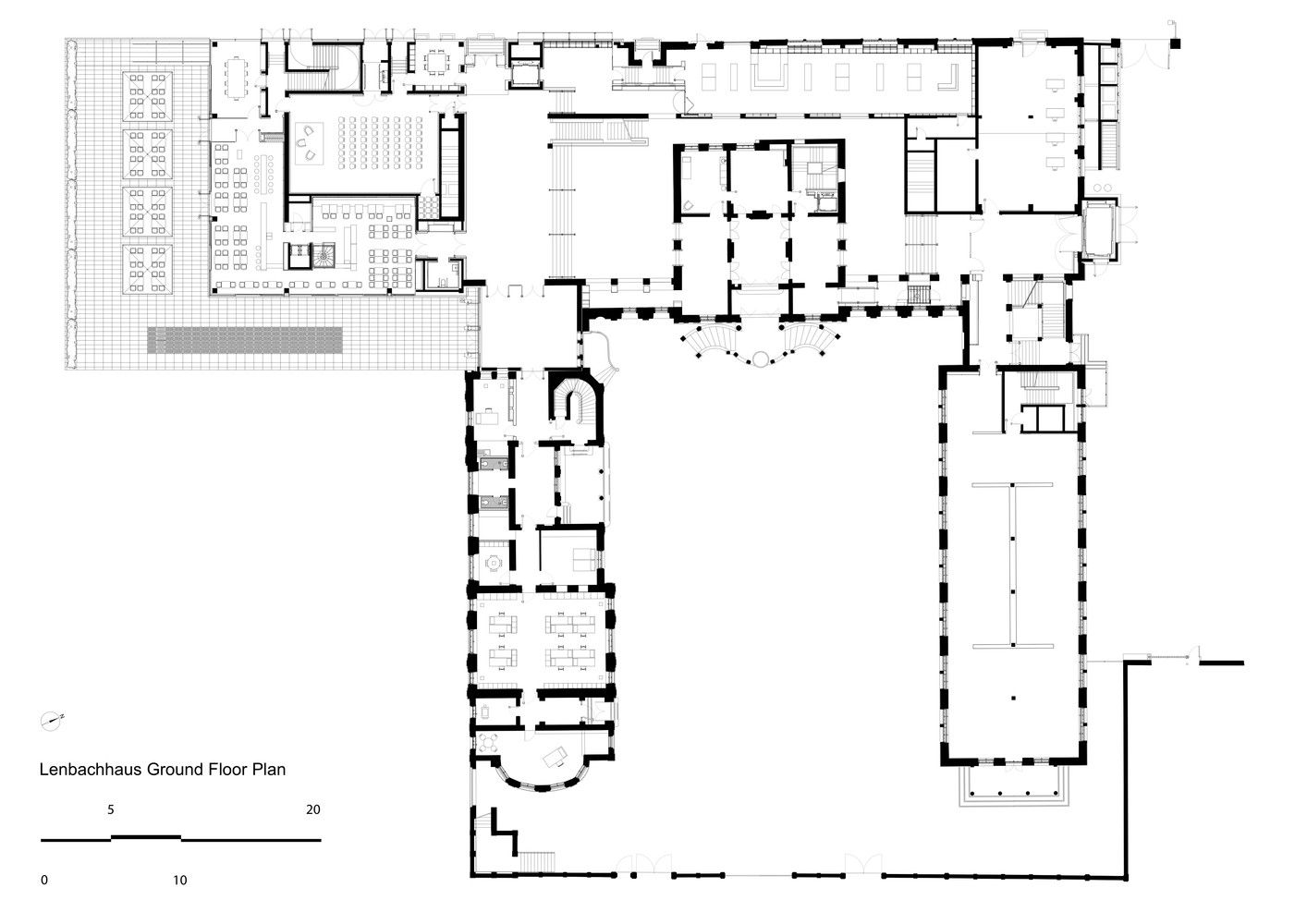
Ground Floor Plan
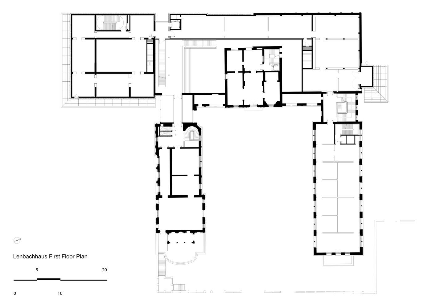
First Floor Plan
Second Floor Plan
Roof Plan
Section
Section
Sectioned Axon
客服
消息
收藏
下载
最近






















