查看完整案例


收藏

下载
武十肆是一家车行+酒吧的结合空间,而取名为武十肆,一是“武十肆”即54,而车行酒吧地址位于羊腰湾54号;二是取了武士的谐音,“肆”又有酒肆之意。
Wu Shisi was named Wu Shisi, one is “Wu Shisi” or 54, and the address of the car bar is located at No. 54 in Yangyao Bay; the second is the homophony of a samurai, and the meaning of “si” is also a wine restaurant.
▲ 轴测图 Axonometric drawing
此次我们接触的客户,多年浸淫酒吧,希望做一次全新的尝试:将酒吧和改装车行融合到一起。从私人酒吧到改装车厂,我们将项目整体进行了全新调整与改变,将自身归属到最硬派浪漫的日本 JDM 文化中,模糊现代“人”的身份与视角,重塑一场碰撞之下的时空对话。
▲ 项目改造过程 Project transformation process
原外立面为我们提供了一个延伸的可扩展空间,独树一帜的外观也能起到引流推广的作用。基于原有的形态,我们决定将对立的概念融入到设计中,不与原外立面的外墙相协调。于是黑白就成为了外立面设计的主调性,而整体呈“十”字形,又与项目名称呼应。
The original facade provides us with an extended and expandable space, and the unique appearance can also play a role in drainage and promotion. Based on the original form, we decided to incorporate differentiation into the design, not in harmony with the original exterior wall. Therefore, black and white has become the main tone of the facade design, and the overall shape is “cross”, which echoes the name of the project.
我们将武士这种时代感鲜明的人物融入空间中,以此为灵感,加入了与武士相关的元素:武士形象定制的霓虹灯、以日本浮世绘而创作的墙面插画、武士头盔的摆件等。
We incorporated samurai characters with a distinctive sense of the times into the space, and used this as inspiration to add elements related to samurai: neon lights customized for samurai images, wall illustrations created with Japanese Ukiyoe, and samurai helmet decorations.
在空间内,我们采用低沉的氛围感,将整体压进迷离神秘的暗色调中,再以硬质且半透的材料留白,给空间留出了意识上的延伸区间,给人以碰撞感,也给人想象的余地。
In the space, we use a low sense of atmosphere, press the whole into the mysterious dark tones, and then use hard and semi-transparent materials to leave blank, leaving the space with an extension of consciousness, giving people a sense of collision , It also gives people room for imagination.
不管是入坑已深的发烧级车迷,亦或是刚接触改装车的“新手仔”,一定对JDM三字有所耳闻!作为JDM文化最本质的载体,车辆元素也是构建空间的一部分。
正如《速度与激情》中对改装车文化的还原,这艰难却有致命吸引力的过程却往往只能在地下进行,于是不经修饰的厂房、充满机械感的设备,被我们融合到了空间的形态中。
Just like the restoration of the modified car culture in “Fast and Furious”, this difficult but fatally attractive process can often only be carried out underground, so the unmodified factory buildings and mechanical equipment are integrated into the space. In form.
而整体风格的冷酷性设计,用到了复古的装饰,黑色的墙砖、还原地下文化的下水道井格、体现旧式车间感的墙面肌理、以灯管突显出速度感的展区,体现新旧事物碰撞的氛围感。
The cool design of the overall style uses retro decoration, black wall tiles, sewer wells that restore underground culture, wall texture that reflects the sense of old workshop, and the exhibition area that highlights the sense of speed with light tubes, reflecting the collision of new and old things. Sense of atmosphere.
如果说飞车带来刺激体验,那酒精打开的就是迷幻世界。而空间是冒险者的乐园,我们不仅将空间作为我们的作品,也是一次对于文化表达的探索与尝试。愿坚韧的举止,为道义永不陨落;加速的油门,为自己呼啸前行。
If speeding brings a thrilling experience, then alcohol opens up a psychedelic world. Space is a paradise for adventurers. We not only use space as our work, but also an exploration and experiment of cultural expression. May the tenacious behavior never fall for morality and justice; the accelerating throttle will roar forward for oneself.
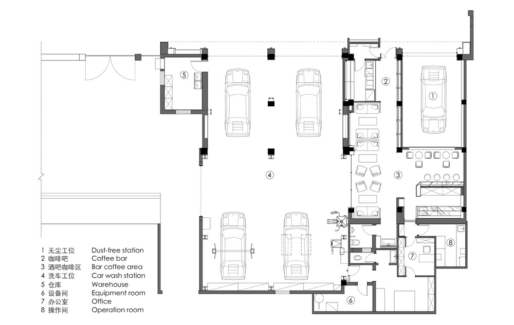
▲ 平面图 Floor plan
项目信息——
项目名称:武十肆酒吧
项目位置:无锡梁溪区
空间设计公司:有劃設商业设计
软装设计公司:之几美学
完成时间:2020.12
主要材料:石材,瓷砖,木饰面,玻璃,漆,金属
空间设计师:王凯
软装设计师:祁双双、邓花花
工程总监:丁骁波
项目摄影:EMMA ZHU
视频创作:炮焦罐头映像Focans Image
Project Information——
Project Name:WuShiSi Bar
Location:LiangXi, Wuxi
Designer:E.D.S.T.STUDIO
Designer:ZHIJII STUDIO
Completion time:December.2020
Main materials:Stone, Tile, Wood,Glass, Paint, Metal
Space design:Kai Wang
Furnishing design:Shuangshuang Qi,Huahua Deng
Engineering Director:Xiaobo Ding
Project Photography:EMMA ZHU
Video Creation:Focans Image
客服
消息
收藏
下载
最近























