查看完整案例


收藏

下载
大都会建筑工作室(MSA)与服装品牌WARDA合作设计了他们的新店,计划在巴基斯坦的多个城市开设。“Re-tale”是该系列的第二家旗舰店。第一家店是在巴基斯坦的白沙瓦设计的,名为“手工零售”。每一家旗舰店的设计都牢记着这样一个理念,即它将成为该品牌的复兴设备。MSA将这次合作作为一个机会,全面审视巴基斯坦的零售文化和WARDA的零售战略。这些探索有助于形成品牌的整体主题。
该旗舰店占地7000平方英尺,分布在地面、夹层、一楼和二楼,位于拉瓦尔品第市——巴基斯坦首都伊斯兰堡的双城。拉瓦尔品第位于历史上伟大的犍陀罗文明的一部分地区,毗邻该文明的主要城市之一塔西拉。公元前6世纪至公元5世纪,该文明在巴基斯坦西北部繁荣昌盛。在《梨俱吠陀》时代,生活在白沙瓦山谷和拉瓦尔品第现代地区的人们被称为犍陀罗。
旗舰店的整体美学灵感来自犍陀罗文明。对文明艺术实践的详细研究导致了对项目的材料托盘和美学表达的明智选择。旗舰店的材料托盘,包括石头,金属和选定项目的金箔直接灵感来自犍陀罗艺术的材料托盘。
水磨石的古老技术是临时制作的,安装在旗舰店的双层高墙上。除了水磨石中不规则的大理石碎片,还有规则的几何形状、不同大小和颜色的大理石,它们的排列方式描绘了一棵神圣的榕树上飘落的树叶。墙壁为具有战略意义的楼梯和夹层提供了背景,饰以未加装饰但经常切割的各种大小的当地石材,以强调这些空间的感觉。
在旗舰店的内部,迎宾柜台后面的迎宾墙由当地的片岩装饰而成,这些片岩雕刻的荷叶图案描绘在各种文明佛像中。这些石头中有一些用金箔装饰,以提供生命、光明和天意的属性。
商店的外立面是在一个荷塘的意象上延续质朴的金属,精心挑选的激光切割金属几何图案的角向上弯曲,形成莲花的形象。立面的整体外观是一个池塘,里面有漂浮的荷花。延续质朴的金属板赋予了立面鲜活的个性。
商店的整体布局不仅满足了项目的纲领性需求,同时也满足了顾客的零售需求,此设计是对这个地区曾经繁荣的伟大文明的颂歌。
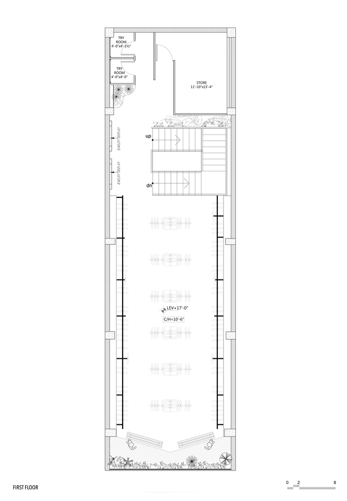
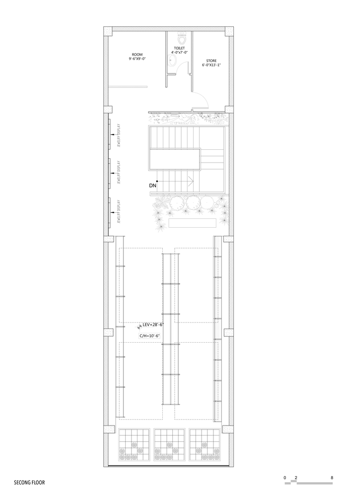
▲平面图
▲剖面图
▲墙面设计
▲立面图
▲外立面设计图
项目信息——
工作室:大都会建筑工作室 Metropolitan Studio of Architecture
位置:Rawalpindi, Punyab, Pakistan
首席建筑师:Syed Fawad Hussain,Leena Hassan
年份:2019年
摄影师:Omar Farooq
客服
消息
收藏
下载
最近

























