查看完整案例


收藏

下载
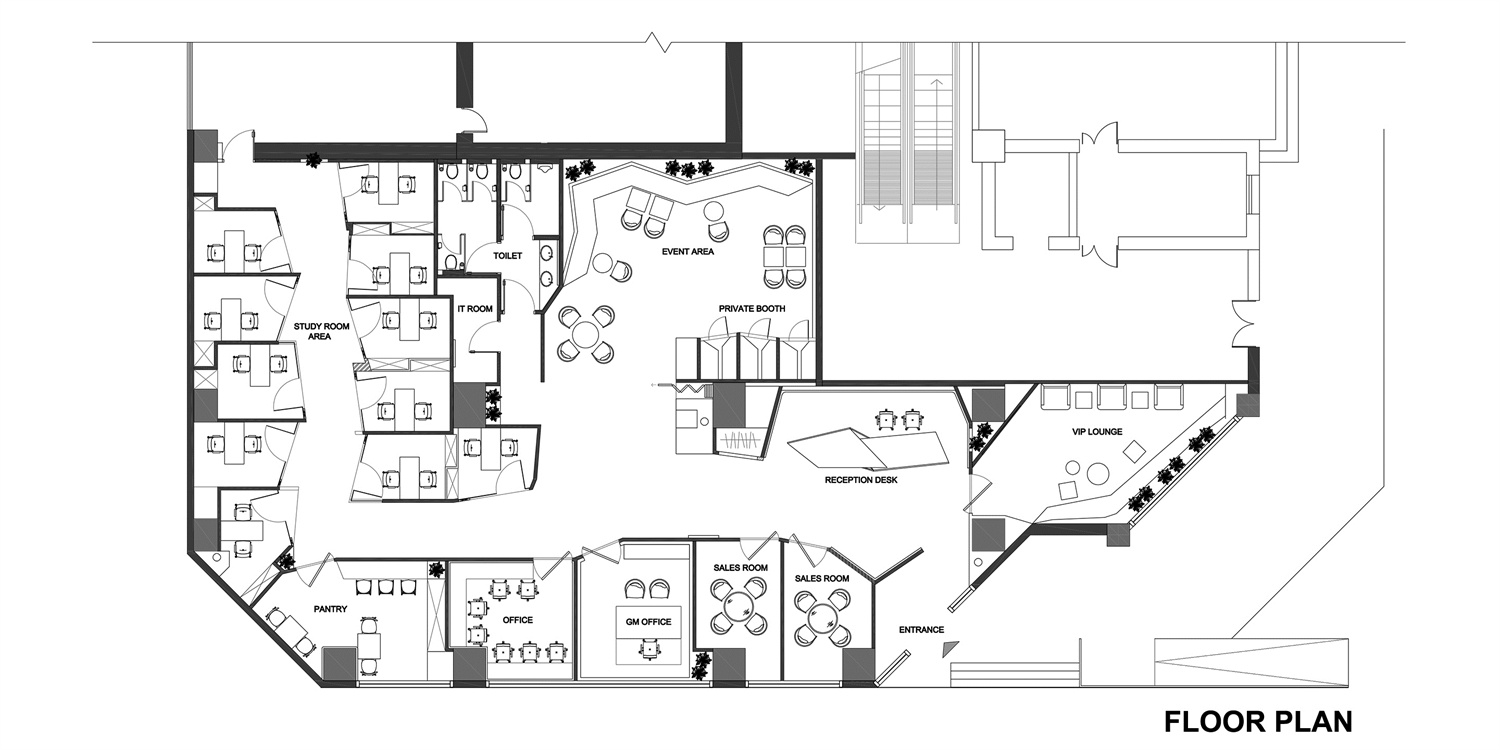
为了寻求与传统学习环境不同的理念,YHD为位于上海中心徐家汇商业区的一个私立学习中心设计了一个创新的概念空间。该设计以传统中式屋顶的几何形状为设计主题,在当地文化中,采用的屋顶形式象征着财富以及繁荣未来,包含了大量的多种的结构形式,为创新的室内空间体积及设计语言提供了基础概念。
Seeking a different perspective from more typical study environments, YHD developed an innovative concept for a private learning centre located in the commercial area of Xujiahui, in the centre of Shanghai. The design, which adopts as its theme the geometry of traditional Chinese roofs which, in local culture, symbolize wealth and future prosperity, encompasses a large variety of different structural situations, providing the essential grammar for a new interior language of shapes and volumes.
入口处大厅的设计氛围呼应了主要的设计理念。大理石和木制百叶窗的完美组合并沿着墙面展开,使空间变得温暖且富有活力。形状像折纸的接待前台是由不同类型的大理石以及可形成镜面效果的金色金属组成。两侧不规则排列的百叶窗形成了一种动态感,而以织物材料结合嵌入式照明为特点的切面天花形式则具有独特的雕塑感。
The entrance lobby design echoes the atmosphere central to the main concept. Along the wall, the intelligent combination of marble and wooden louvers makes the space warm and vibrant. The reception desk shaped like folding paper is made of a different type of marble and reflective gold which acts like a mirror. The irregular arrangement of the louvers along the two sides creates a dynamic contrast while the faceted ceiling surface featuring stretched fabric material and recessed lighting lends it a unique sculptural quality.
非线性的走廊创造了一个通往不同功能分区的通道,整条走廊空间中,材料和颜色都在不断变化并相辅相成。
A non-linear corridor provides access to the different functional areas, in which materials and colours change and complement each other throughout its entire length.
大理石地面,中立色调的白色天花与墙面的强烈色调相结合,使建筑的主通道有了明确的识别度。
The neutrality of the floor marble and white ceiling combines with the striking effect of the strong tones used on the walls to give a clear identity to the building’s main artery.
以橙色调的座椅元素为特点的灵活公共空间与私密学习间相结合,更深化了主题的雕塑感。建筑设计师在开放区域的立面嵌入了一些绿植装置,在室内空间增加宁静舒适的氛围。
The flexible communal space characterized by the orange tone of the upholstery seating elements combined with the private study booth take the sculptural theme even further. The architect has placed several recessed pots filled with greenery around the open area to create a calm atmosphere within the interior.
私密办公室及商谈房间,与开放区域形成鲜明的对比,采用更加柔和的色彩进行装饰设计,通过使用木材饰面,毛毡饰面以及对照明的精确使用,是空间与众不同。
The private office and sales rooms, in contrast with the open area, are decorated in softer colours, made unique by the refined use of timber surfaces, felt and integrated lighting.
学习室则位于更加隐私的区域,其不规则的形状挑战了人们对传统教室布局的认知,创造了一个具有强烈视觉冲击且密切贴合设计主题的空间。
The study rooms, located in a more private area, with their irregular shapes decisively challenge the perception of the more traditional classroom layout, creating an environment with both a strong visual impact and a close thematic connection.
其豪华又不失温馨舒适的室内装修特点是通过对细节的密切关注,对材料和颜色的独到选择以及对照明的深思熟虑而形成的,旨在创造一个理想中的学习环境。深橙色的皮革墙面下暗藏供教师使用的能柜。同时随着外侧玻璃透明度的改变,可以提供不同程度的隐私感。
Their welcoming, luxury interior is characterized by close attention to detail, discerning choices of materials and colours, and well-thought-out lighting aimed at creating an ideal environment for studying. The dark orange leather walls conceal a functional cabinet for the teachers while the transparency of the exterior glass can be varied in order to provide different degrees of privacy.
外立面的设计融入了几何图案,在所处的街道背景下做出了一个大胆的表现。定制陶土砖的动态线条与颜色的灵感来自于城市中的传统街边房屋,它们是城市主要建筑文化遗产的代表之一。用作框架和设计亮点的透明材料的在街边入口处层叠起来,形成一个棱角分明的内嵌式入口。在夜间,倾斜陶土瓷砖接缝处的照明灯带在外立面上创造出一个散落灵动的场景。
The exterior façade design incorporates geometric motifs, and makes a bold statement within the context of the existing streetscape. The dynamic lines and colour of the customized terracotta tiles are inspired by the city’s traditional street houses, which represent one of the main architectural assets of the city. The translucent material used to frame and highlight the entrance folds in at street level, creating an angular recessed entrance. During the night, lighting integrated into the joints of the inclined tiles creates a scattered pattern across the façade.
该项目旨在于提高学习环境的质量,创造一个灵活的、不受约束的、创新的和鼓舞人心的私密学习空间,并赋予设计以现代和非传统相结合的特点。
The project aims to enhance the quality of the learning environment, creating a space for private study that is flexible and unencumbered, innovative, and inspirational, and which endows the interior with a design which is both modern and unconventional.
项目信息——
项目名称: GOLDEN HOUSE 壮源 高端培优中心
设计公司:YOUNG H DESIGN 上海研趣品牌设计有限公司(YHD)
公司所在地: Shanghai, Xujiahui
项目完成年份: 2021
建筑面积(m2/ ft2): 450 sqm
项目地址: 上海Shanghai
项目类型:教育中心, 办公室, 活动场所
项目总监: 安东尼奥•伯顿 (Antonio Berton)
Photographer摄影师
摄影师: Jeff Zhou
Additional Credits项目参与者
设计团队:Wang Yuan, Li Ke Yan, Xuan Wen Ya, Jing Han
Main Information ——
Project Name: GOLDEN HOUSE OF EDUCATION
Office Name: YOUNG H DESIGN
Firm Location: Shanghai, Xujiahui
Completion Year: 2021
Gross Built Area (m2/ ft2): 450 sqm
Project location: Shanghai
Program: Education center, office, event area
Lead Architects: Antonio Berton
Photographer
Photo Credits: Jeff Zhou
Additional Credits
Design Team: Wang Yuan, Li Ke Yan, Xuan Wen Ya, Jing Han
客服
消息
收藏
下载
最近





















