查看完整案例


收藏

下载
无艺三语国际园着重于1~6岁孩子的寄托教育,更加着重要求孩子们做好批判性和创造性思考的准备,并在多种文化和环境之间进行沟通,不为今天,而是为了将来,发挥孩子的全面教育。
空间与“大自然”作为空间主题概念衍生,创造促进孩子的想象力与好奇心的体验与学习的空间;既让孩子喜欢,亦能让教师在系统里扮演引导和挑战者的角色;连接氛围与环境,强化情感共鸣。
▲概念元素图
敞开式的空间设计,最大程度将景观山水自然引进空间环境,巧妙设计在于,书架、展台、墙面、陈列饰物,以曲线与大自然的视觉展现;在弱化空间界限性的同时,这种与自然有关的色彩处理,让人在不同的区域体验感受色彩的对比。
▲前台
深圳首家无艺三语国际园,位于深圳南山区,是深圳的教育科研中心;拥有浓厚的教育文化气息。弧面的落地玻璃窗,宽敞的室内空间得以展示,使室内与室外的环境氛围得以区分,随性展示发挥创造力。
▲绿地仿生地毯区
娱乐休闲的跑道,由童趣到乐趣,天花吊灯的原型,太阳、云朵、闪电,还有童话里的风车、木屋……是让人有联想又有趣的发现。这些是生活中简单的图案,以返璞归真的方式,还原童话里的乐趣。
▲滑梯&海洋球池
弧形落地玻璃窗里面的滑梯和海洋球池是孩子们的最爱,阔大的空间与环境色,隔出属于孩子的嬉戏打闹的互动区;前方的角色扮演,有意识地玩乐体验,在无意中潜移默化多元的创意视觉。
▲办公空间
办公区与走道是一个相互区隔又联合的整体,大自然蜗牛元素的融入,增加几分流动感;书架置于随手可拿处便于老师与孩子进行阅读交流;保持最大程度的开放,又延伸放大了整个空间的视觉感受。
▲通道走廊
由跑道连接的走廊,贯穿各个空间的不同功能需求,让孩子们可以在空间里尽情探索与嬉戏,以更多的角度去观看各个空间;增强空间体验感。
▲开放式大课堂
造型可爱的桌椅与玩具整齐分布于空间中,富有设计感的装置,孩子的滑滑梯,不规则的柜体;留出合适的活动空间,交际、学习、游玩,延伸放大“教”与“玩”。也合适成人尺度的规划是希望老师与孩子一起无拘无束的活动,以便孩子和老师进行多样性的课程与灵活的教学空间使用;即给孩子提供探索空间,也为老师提供更多的互动教学。
▲空间细节
形状奇特的家具,高低落差的动态曲线,还有互动性的软包楼梯;防撞无尖角的设计更多的考虑了孩子在空间的活动安全,孩子在这里可以充满好奇地探索,与空间互动。
▲空间功能图
将不同功能属性依据需求规划置入空间;例如由图案演化成的天花吊顶与跑道的连接,让孩子们能在穿行于各个空间的过程中可以以更多的角度去观看空间;还有滑梯与海洋球池的弧形空间;即是增加孩子的身体机能同时丰富空间体验,还是保护孩子安全的同时利用弧线的张力诱发想象力。
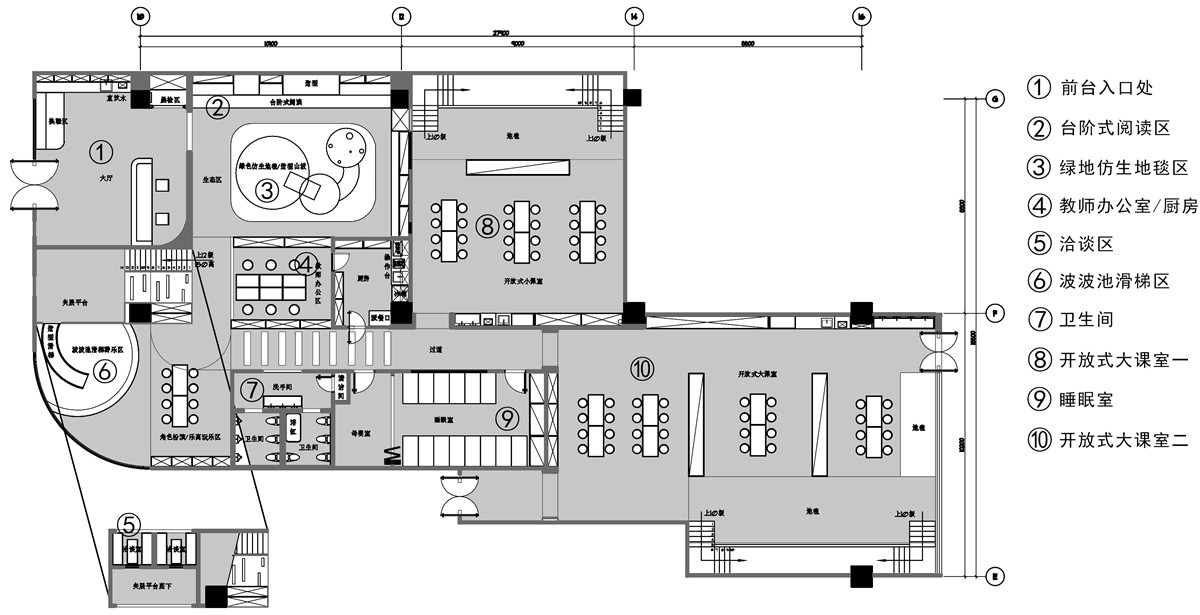
▲平面图
项目信息——
项目名称:无艺三语国际园深圳万豪校区
创意:广州永创设计有限公司
设计师:柯锐滨、罗聪、邓志荣、黄冠州、唐智闯
团队:广州朗德教育至尚国际教育咨询有限公司
地址:深圳万豪广场店
面积:480㎡
建成:2019.11
拍摄:空间摄影&阿永
客服
消息
收藏
下载
最近































