查看完整案例


收藏

下载

翻译
Griyoase house is located in the Kertomenanggal area, Surabaya, to be precise in a residential area near the southern border of the cities of Surabaya and Sidoarjo. Standing on an area of 12 X 18.5 m2, the atmosphere is quite calm, even though it is close to the busy route leading out of the city. The owner of the house is a graphic designer, so he also has a pretty good taste in the design and also knows the principles, so it really helps architects in the process of designing to implementation. At least, the client also understands the proportion, scale, rhythm, etc. that are applied to the house.
© Mansyur Hasan
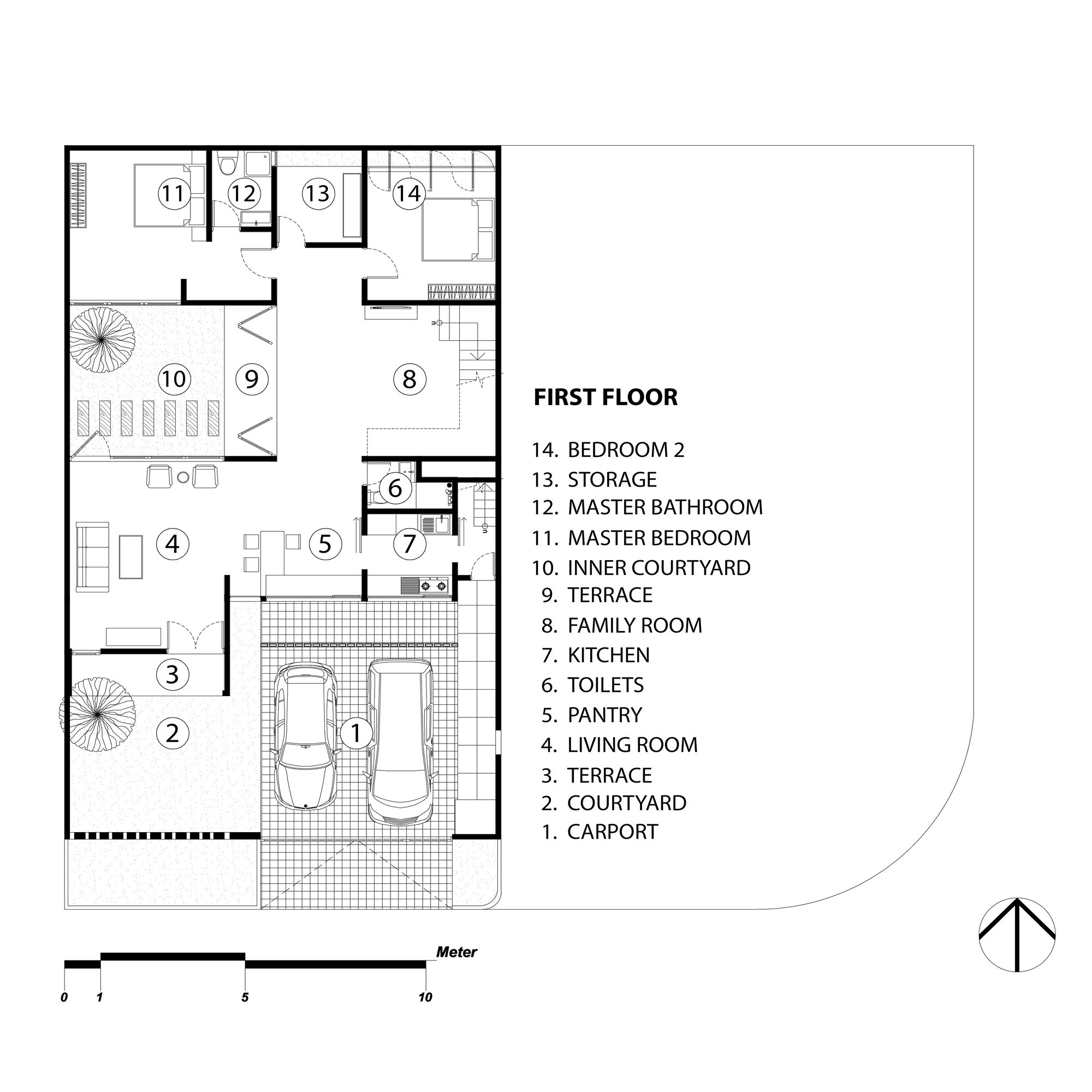
In Surabaya, which tends to be hot, this house needs an “oasis” to cool the air inside. So, in the middle of the house, an inner yard (inner courtyard) is created to be an oasis as well as a binder that unites the other spaces around it. And that’s how it goes… Griyoase, as a combination of the words griya / griyo (house) and oase (spring in the middle of a desert that is overgrown with trees) that cools the surroundings. This house optimizes the openings so that the light can enter as much as possible and the air circulation can run properly. The inneryard in the center of the house is planted with a large Moringa tree.
© Mansyur Hasan
This large inneryard becomes this house orientation. From all angles of the room, you can see the inner courtyard freely. Coupled with the voids of the stairs, the lighting and air circulation in this housework optimally. For rooms that are located at the back of the house, there are small gaps between the back wall of the house to the room are given so that sunlight can still enter, penetrate and provide light from the top to the lower floor of the warehouse and the guest bedroom.
© Mansyur Hasan
The concept of Griyoase is then described in Tree & Tree as a combination of Tree (tree) and Three (three). The concept of a Tree is because the clients and family love trees and plants, so this house is truly transformed into an “oasis”. What is quite interesting about this house is that trees are specially planted to support the existence of the house. This tree-loving client bought trees originally from Africa, namely Baobab and Moringa trees, which in fact really reinforce the natural atmosphere inside and outside the house.
The shape of the Baobab and Moringa trees are quite unique, their “bulgy” trunks, so the natural impression is more attractive and “artistic”. Meanwhile, Three doesn’t only appear as a triangle as seen in the part of the facade of this house which is side by side with the brick arrangement, but also as a basis of several things based on “3” (three) elements which can be described as follows:
© Mansyur Hasan
In the design of this house, the architect uses 3 main colors: white, gray, and black. These 3 (three) colors are combined in such a way as to create a variation that is not too colorful. This 3 colors combination looks very clear. The floor is gray, the walls are white, and the door and window frames plus the stair railing and fence are black. The brick color in the facade of the house is more of an accent that makes this house easy to recognize in its surroundings. The clients also like wood, the doors use ironwood which is known for its strength and firm. This ironwood color can still blend with the terracotta color of the brick.
© Mansyur Hasan
In the process of designing this house until it was built, there was a design collaboration between 3 parties. As mentioned above, that the client is a graphic designer, who has basic design knowledge that is very helpful for architects in processing their house design. Meanwhile, the executor or contractor also comes from an architectural education background, so that they can understand the wishes of the architect and the client more deeply.
In fact, architects do not need to closely supervise the implementation process, because the executor is able to understand the design drawings well and implement them according to the architect’s design. Thus, the three of them can collaborate proportionally to build this house, because all three of them already understand the basic design. So, this house is actually a collaborative oasis “between 3 designers”.
© Mansyur Hasan
Initially, according to the design, only the 1st and 2nd floors of the house were functioned, where the 1st floor was for family activities, while the 2nd floor was for more private activities. However, when the Covid 19 pandemic broke out in early 2020 which required a lot of activities at home, this family thought of using the rooftop floor above for their pot-based gardening hobby. In consultation with the architect, a new staircase was designed and built so that the 3rd floor could be accessed more easily from the 2nd floor.
Finally, the rooftop floor became the 3rd floor specifically for the hobby of maintaining plants. This 3rd floor also provides ecological awareness, that human life cannot be separated from nature and the environment, with the various types of plants and trees that are around us, in a symbiotic relationship, mutualism, which is mutually beneficial. Become an oasis for the environment. Yes, we present it to you… Griyoase!
© Mansyur Hasan
Project Info:
Architects: Andyrahman Architect
Location: Kecamatan Gayungan, Indonesia
Area: 300 m²
Project Year: 2021
Photographs: Mansyur Hasan
© Mansyur Hasan
© Mansyur Hasan
© Mansyur Hasan
© Mansyur Hasan
© Mansyur Hasan
© Mansyur Hasan
© Mansyur Hasan
© Mansyur Hasan
© Mansyur Hasan
© Mansyur Hasan
© Mansyur Hasan
© Mansyur Hasan
© Mansyur Hasan
Ground Floor Plan
First Floor Plan
Second Floor Plan
Section
Front Elevation
Diagam 01
Diagam 02
Diagam 03
Diagam 04
客服
消息
收藏
下载
最近


























