查看完整案例


收藏

下载

翻译
Green Line House
The solitary house blends in with the surroundings, lacking neighbouring buildings, away from roads. Harsh landscape prompted Przemek Olczyk, an architect and the author of the project, to use transparent and legible tectonics, thus embedding the building in the morphology of the plot.
The plot, of which the house takes only a small part, has a natural fold that was the starting point for the design of the building’s body. A 90 cm reinforced concrete slab suspended above the falling terrain forms an extension of the upper elevation. It produces a distinctive yet lean line from which the building takes its name and character. Reinforced concrete slab supported by the system of columns provides a clear zoning of the house; living area on the ground floor and the bedroom area on the upper floor.The horizontal layout of the building is made even more distinctive with a green roof line shifted relative to the ground floor. It gives the impression of a naturally created horizontal fracture, opening towards the lake.
Photography by © Paweł Ulatowski
Skilful adaptation of the architecture to the structure of the plot ensures that the scale of the 500 sqm house does not overwhelm it. Manifest external stairs, characteristic more of public buildings than single-family houses, provides an interesting architectural detail. Due to the strong winds in this part of the Warmian Lake District, the design employs an atrial layout. The screen of glass walls of the building provides a transparent shield while maintaining important viewing axes for the users.
The internal atrium strengthens the sense ofprivacy. Depending on the needs, large curtains can be closed and opened, thus opening or closing the courtyard. The glass-walled corner on the ground floor – with a free plan – overlooks the south-west and guarantees access of natural light to the most usable area for the inhabitants.
Photography by © Paweł Ulatowski
The key assumption of the project, and the tenet of the philosophy of shaping space at Mobius Architects studio is to enable reception of architecture from the inside. This is the main element of work on the project, which, as emphasized by architect Przemek Olczyk, allows the investors to both “have their cake and eat it”. True to the proverb, the architecture of the house remains visible to its users, while adding value to the surroundings.
The layout of the building in the form of the letter “L”, in turn, reproduces the traditional organization of farm space in the Warmian-Masurian Voivodeship. The façades – mostly glass-walled – are supplemented with aluminium plates and ceramics. The whole is complemented by a wooden lamella detail in the gable walls, thus making a clear reference to the gables of the Warmian-Masurian cottages often decorated with boards arranged in various patterns. The simplified form of the roof with a 45 degree slope also refers to traditional rural buildings.
Photography by © Paweł Ulatowski
A detail of the roof part is a vertical skylight, which asymmetrically divides the slope by opening the interior of the private zone to the surroundings. The roof of the building is mostly covered with grass. Onlyfrom the side of open atrium concrete slabs were used. This is an aesthetic device designed toemphasize the modern nature of the building.
Photography by © Paweł Ulatowski
Project Info:
Architects: Przemek Olczyk / Mobius Architekci
Location: Poland
Area: 580 m²
Project Year: 2019
Photographs: Paweł Ulatowski
Manufacturers: Swisspearl
Photography by © Paweł Ulatowski
Photography by © Paweł Ulatowski
Photography by © Paweł Ulatowski
Photography by © Paweł Ulatowski
Photography by © Paweł Ulatowski
Photography by © Paweł Ulatowski
Photography by © Paweł Ulatowski
Photography by © Paweł Ulatowski
Photography by © Paweł Ulatowski
Photography by © Paweł Ulatowski
Photography by © Paweł Ulatowski
Photography by © Paweł Ulatowski
Photography by © Paweł Ulatowski
Photography by © Paweł Ulatowski
Photography by © Paweł Ulatowski
Photography by © Paweł Ulatowski
Photography by © Paweł Ulatowski
Concept
Sections
Roof projection
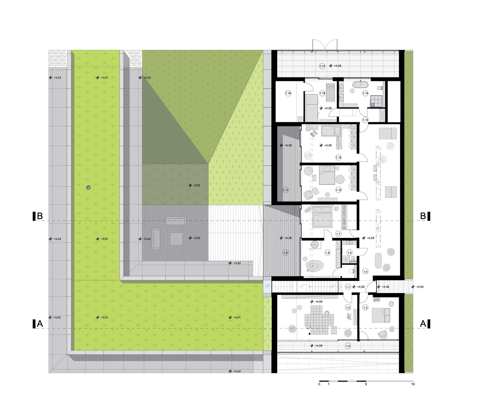
Ground floor plan
1st Floor plan
Diagram 01
Diagram 02
Diagram 03
Diagram 04
Situation plan
Sketch
客服
消息
收藏
下载
最近






























