查看完整案例


收藏

下载

翻译
Flying House
Landing of An Airship that Load Nature
The owner of this house is a young pilot and his family for his future home space, the house landed on the site in the newly developing town near the Incheon airport.
Photography by © Sergio Pirrone
Architectural ‘Flight’
We relate the Korean traditional architectural formative characteristic with the pilot’s daily behavioral characteristic which is flight and try to construct symbolically the cultural identity of the house. The rumaru’s carried surface roof of the flying on top of the courtyard and the dynamic movement of the frozen home metaphorically symbolize the airline’s flight.Also, in order to offset the instability of the flight, we planned a sitting down form of heating stone system which is the Korean traditional architectural structure(the living room is touched with the ground). Like this, we tried to grant the routinized stability into the housing through considering the environmental balance between the sky and the land.
Photography by © Sergio Pirrone
The Architectural ‘Nature’
We transformed the Korean traditional architect’s spatial and landscape elements such as yard, garden, and rumaru pavilion into contemporary housing program which applies the house main outer space and afforests the rooftop so that when you walk from the courtyard to the rooftop, it makes a landscape for the sloped roof garden that allows strolling circulation. This allows the home to coexist with nature and form a landscaped hill.Low Budget Architecture
We had to overcome the small construction cost budget and in order to realize the design’s conceptual result such as the program and spatial term, so we had to establish an economical and simple budget plan.This means that the heat insulation needs to be high and the exterior material needs to be used with cheap drivit and without pollar, pace, and slave, and we need to expose the concrete framework surface and concrete block wall surface so that the structural material becomes a finishing material so that the total construction fee is minimized and creates a simple interior space.
Photography by © Sergio Pirrone
Project Info
Architects: IROJE KHM Architects
Location: Incheon, South Korea
Architect in Charge: HyoMan Kim
Design Team: Jiyeon Kim, Mihwa Oh
Constructor: Moun construction
Client: Sungwon Seo
Manufacturers: LG Electronics, posco
Area: 195.0 m2
Year: 2017
Type: Residential
Photographs: Sergio Pirrone
Photography by © Sergio Pirrone
Photography by © Sergio Pirrone
Photography by © Sergio Pirrone
Photography by © Sergio Pirrone
Photography by © Sergio Pirrone
Photography by © Sergio Pirrone
Photography by © Sergio Pirrone
Photography by © Sergio Pirrone
Photography by © Sergio Pirrone
Photography by © Sergio Pirrone
Photography by © Sergio Pirrone
Photography by © Sergio Pirrone
Photography by © Sergio Pirrone
Photography by © Sergio Pirrone
Photography by © Sergio Pirrone
Photography by © Sergio Pirrone
Photography by © Sergio Pirrone
Photography by © Sergio Pirrone
Photography by © Sergio Pirrone
Photography by © Sergio Pirrone
Photography by © Sergio Pirrone
Photography by © Sergio Pirrone
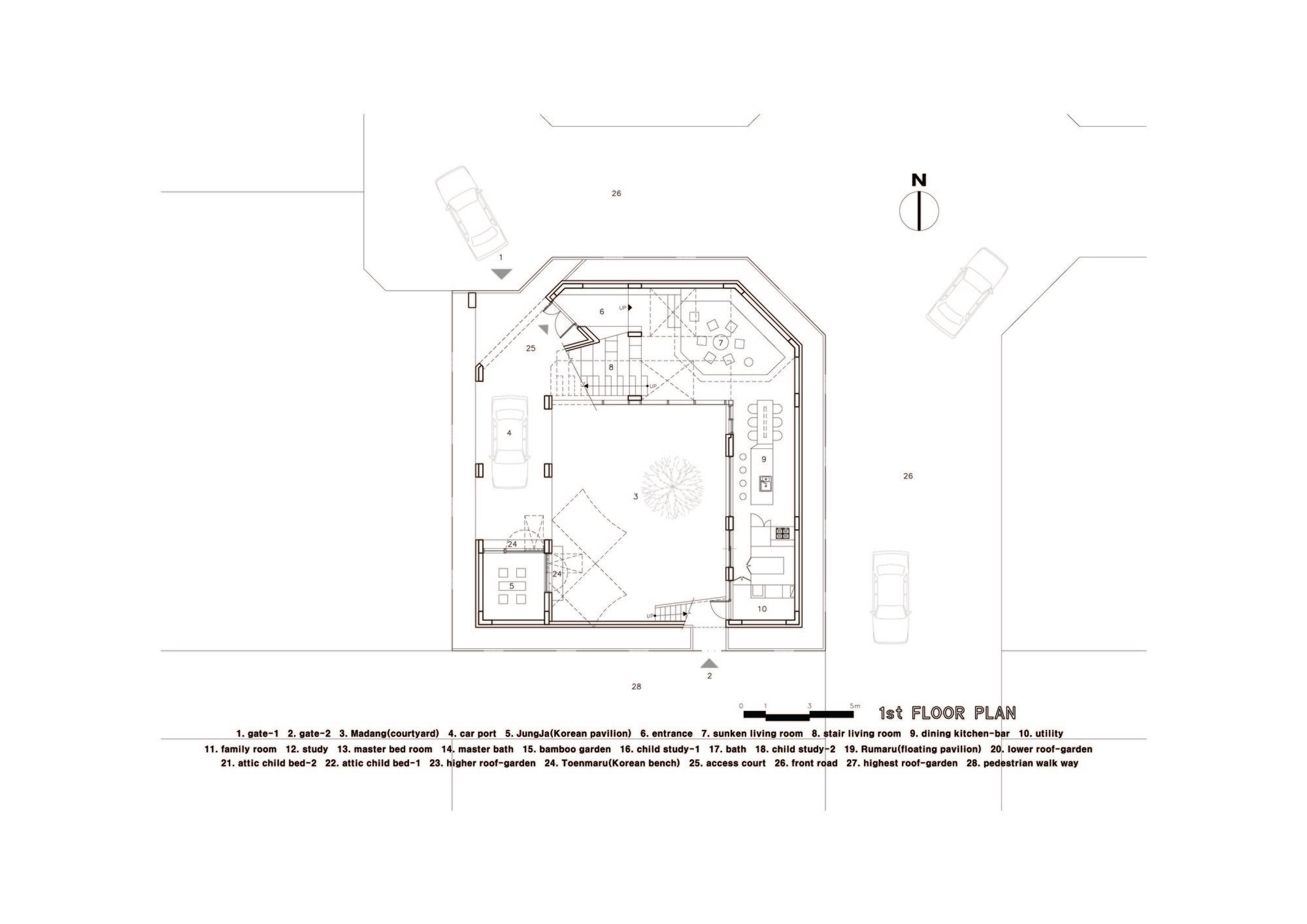
First Floor Plan
Second Floor Plan
PH Floor Plan
Roof Plan
Front Elevation
Right side Elevation
Rear Elevation
Left side Elevation
Section 1
Section 2
Section 3
客服
消息
收藏
下载
最近



































