查看完整案例


收藏

下载

翻译
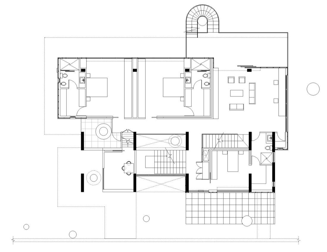
Located on a dense hillside forest in the Santa Rosalía area of Guatemala City, Corallo House integrates the existing forest into the layout of the house. It merges nature into the architectural intervention. The design process began with the aim to preserve the existing trees, in order to have the trees interact with the living space. The floor plan is free of columns and the changes in level adapt to the existing topography. Both façades are mostly glass in order to connect the interior to the exterior. The main structural component is exposed concrete, which shows the rustic texture of the wood formwork, allowing a dialogue between the formal element and the textures of the forest.
photography by © Andrés Asturias
Project Info
Architects: PAZ Arquitectura
Location: Guatemala City, Guatemala
Architect in Charge: Alejandro Paz
Collaborators: Axel Mendoza, Gabriel Rodriguez, Alex Titus, Mario Roberto Paz, Claudia Pezarozzi, Wolfgang Schoenbeck
Landscape Design: Pokorny y Valencia, Arquitectura de Paisaje
Structure Design: Consultores Estructurales
Construction: Conarq / Paz Arquitectura
Area: 747.5 sqm
Year: 2011
Type: Residential
photography by © Andrés Asturias
photography by © Andrés Asturias
photography by © Andrés Asturias
photography by © Andrés Asturias
photography by © Andrés Asturias
photography by © Andrés Asturias
photography by © Andrés Asturias
photography by © Andrés Asturias
photography by © Andrés Asturias
photography by © Andrés Asturias
photography by © Andrés Asturias
photography by © Andrés Asturias
photography by © Andrés Asturias
photography by © Andrés Asturias
photography by © Andrés Asturias
photography by © Andrés Asturias
photography by © Andrés Asturias
photography by © Andrés Asturias
photography by © Andrés Asturias
photography by © Andrés Asturias
photography by © Andrés Asturias
photography by © Andrés Asturias
photography by © Andrés Asturias
photography by © Andrés Asturias
photography by © Andrés Asturias
photography by © Andrés Asturiasphotography by © Andrés Asturias
photography by © Andrés Asturias
photography by © Andrés Asturias
photography by © Andrés Asturias
photography by © Andrés Asturias
photography by © Andrés Asturias
photography by © Andrés Asturias
photography by © Andrés Asturias
photography by © Andrés Asturias
photography by © Andrés Asturias
photography by © Andrés Asturias
photography by © Andrés Asturias
section
section
plan
elevation
elevation
plan
plan
elevation
elevation
客服
消息
收藏
下载
最近
















































