查看完整案例


收藏

下载
“阑珊宿”精品民宿酒店座落在抚仙湖优质旅游度假区抚仙湖-小湾民宿区,地处玉溪市澄江县小湾村。占地面积3亩。
“Lanshansu” boutique hotel is located in Fuxian Lake-Xiaowan B&B area, a high-quality tourist resort area of Fuxian Lake, in Xiaowan Village, Chengjiang County, Yuxi City. Covers an area of 3 acres.
▲入口标识
▲外立面
▲宽大的院子
阑珊宿,有宽大的院子,设计,不仅充分考虑建筑的通风和采光,还要考虑建筑与景观之间的呼应关系。
Lanshansu has a spacious courtyard. The design not only fully considers the ventilation and lighting of the building, but also considers the relationship between the building and the landscape.
▲建筑入口
▲大堂
▲餐厅
如今的民宿行业,发展日新月异。各式各样的形式,如雨后春笋般涌现。形式的多样化,也是由现在的消费市场所催生。然而,我们一直强调,地理性、区位性、文化性、趣味性和差异化,我们希望我们设计的产品能融合这些要素。充分利用现有地势,因地制宜,像是从这个地方长出来一样。
Today’s homestay industry is developing with each passing day. Various forms have sprung up like mushrooms. The diversification of forms is also spawned by the current consumer market. However, we have always emphasized that geography, location, culture, interest and differentiation, we hope that the products we design can integrate these elements. Make full use of the existing terrain and adapt to local conditions, as if it grew out of this place.
▲客房
这是一个农民房改造的项目,整个房屋结构为砖混结构,改造受到很大的局限,但是我们还是尽可能的让每个房间都具有最好的观景效果,让美丽的抚仙湖,成为房间的一部分,达到室内与室外的有机连接。让美丽的风景,一览无余。
This is a farmer’s house renovation project. The entire house structure is a brick-concrete structure, and the renovation is subject to great limitations, but we still try our best to make every room have the best viewing effect, so that the beautiful Fuxian Lake, Become a part of the room to achieve an organic connection between indoor and outdoor. Let the beautiful scenery be unobstructed.
▲楼顶天台
这里,没有古老的传统,也没有完全的现代,设计语言,采用传统的材料结合现代的表现手法。去图腾化,对图腾和符号进行高度提炼。行走其中,感觉一切理所当然!没有雍荣华贵,没有俗事缠身,剩下的只有,阳光、空气、美景、你和你的同伴!
Here, there is no ancient tradition, nor completely modern. The design language uses traditional materials combined with modern expression methods. Detotemization, highly refined totems and symbols. Walking among them, I feel everything is taken for granted!There is no glory and nobility, no mundane things, all that is left is sunshine, air, beautiful scenery, you and your companions!
当建筑师回归工匠本身When the architect returns to the craftsman
当建筑师回归工匠角色,脱离电子技术依靠积年的经验对建筑进行实体精准把控,作品便真正能够匠心独具。雕塑与建筑的界限再次模糊,艺术与生活的距离逐渐拉近,建筑师对于细节的追求才是真正的工匠品质。
When an architect returns to the role of a craftsman, and departs from electronic technology to rely on years of experience to physically and accurately control the building, the work can truly be unique. The boundary between sculpture and architecture is blurred again, and the distance between art and life is gradually getting closer. The architect’s pursuit of details is the true craftsman quality.
▲“蚁穴”主题房
“阑珊宿”精品民宿酒店坐落在抚仙湖-小湾民宿区。设计充分考虑建筑与地形环境的呼应。小体量建筑单体“蚁穴”作为酒店标志物,在功能上扮演着VIP套房的角色,同时在整个场地环境中,发挥着打破传统构建元素,重构了老旧地形的作用。
“Lan Shan Su” Boutique B&B Hotel is located in Fuxian Lake-Xiaowan B&B area. The design fully considers the interaction between the building and the terrain environment. As a hotel landmark, the single “ant colony” of a small building plays the role of a VIP suite in function. At the same time, it breaks the traditional construction elements and reconstructs the old terrain in the entire site environment.
▲“蚁穴”外观
设计者希望通过空间的塑造打破人们对于功能房间的固有印象,在前卫空间体验和民宿日常居住的交织中感受来自于自然和光线的力量。
The designer hopes to break people’s inherent impression of functional rooms through the shaping of space, and to feel the power of nature and light in the interweaving of avant-garde space experience and daily living in a hotel.
▲灵感图
在一幅蚁穴主题的童画中可以看见儿童对于蚁穴空间功能和交通的想象,通过三维设计构造,使得常人眼中的童趣、设计师看法里的光影交织空间过渡融合一体,从而让不同的使用群体都能在其中感受空间组织变化带来的冲击。
In a children’s painting with the theme of an ant nest, you can see the children’s imagination about the space function and transportation of the ant nest. Through the three-dimensional design and construction, the children’s interest in the eyes of ordinary people and the interweaving space of light and shadow in the designer’s view are merged into one, so that different The user group can feel the impact of spatial organization changes.
▲入口
▲玄关
自然对于构筑空间的潜力是变化无穷的。吸取自然元素是对人自然野性的呼唤。来自自然的力量是最为原始、直接、能够触动人的。场地原为废弃民居水窖,位于转折坡角落,地势低矮下陷入,但同时位于酒店入口。“蚁穴“的大胆插入打破了寻常绿化覆盖的做法,为场地的消极空间注入活力,成为了酒店的标志物和“迎宾牌”。
Nature’s potential for space construction is endless. Absorbing natural elements is a call to human nature and wildness. The power from nature is the most primitive, direct, and capable of touching people. The site was originally an abandoned residential water cellar, located at the corner of the turning slope, sinking into the low terrain, but at the same time located at the entrance of the hotel. The bold insertion of “ant nest” breaks the usual practice of green coverage, injects vitality into the negative space of the site, and becomes the hotel’s landmark and “welcome card”.
▲会客厅
曲面能够模糊明暗的交界,柔和地引导光线。同时,为曲线墙面覆上褶皱和肌理,自然的引导人在空间中穿梭。
The curved surface can blur the junction of light and dark and guide light softly. At the same time, the curved wall is covered with folds and texture, which naturally guides people through the space.
▲卧室
当曲面构造的空间体量被赋予朴实的功能,超现实主义的空间便能柔和的刺激人的感官。肌理、光线、空间相互交织,能给人柔和的触动。
When the spatial volume of curved surface structure is given simple functions, the surrealistic space can softly stimulate the human senses. The texture, light, and space are intertwined with each other, which can give people a soft touch.
▲通道
▲卫生间
蚁穴的设计过程完全脱离了电脑建模,全依赖于建筑师多年积累的经验和实地的把控。建筑师回归了工匠的身份,才能真正透过实体感受空间,把握细节的雕琢。
The design process of ant’s nest is completely separated from computer modeling and depends on the architect’s years of accumulated experience and on-site control. Only when architects have returned to the status of craftsmen can they truly feel the space through the entity and grasp the details of the carving.
▲施工过程
前期没有画标准的图纸,建筑师在实地现场“作画”。
No standard drawings were drawn in the early stage, and the architect “painted” on the spot.
▲手工编钢筋“脊骨”Hand braided steel “spine”
▲包裹金属网Wrapped metal mesh
▲喷涂表层水泥Spray surface cement
▲整体浇灌Whole watering
▲采光井和通风井Light shaft and ventilation shaft
▲完成形体建设后实地测试、定点装设光源。After the completion of the body construction, field testing and fixed-point installation of light sources.
▲配套自制工艺品Supporting homemade crafts
▲配套定制窗帘Matching custom curtains
▲澜珊宿规划平面图
▲阑珊宿酒店一层平面
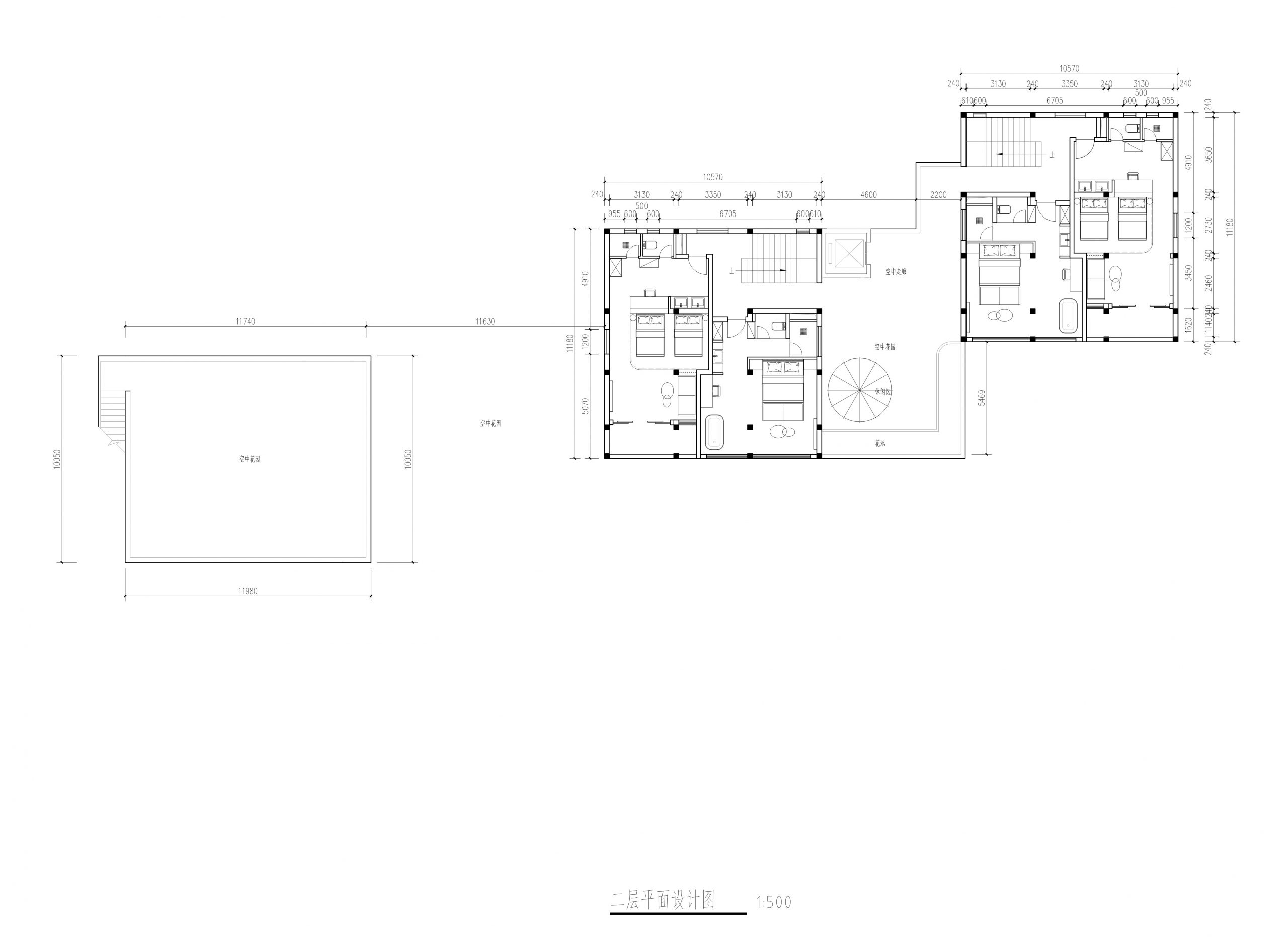
▲阑珊宿酒店二层平面
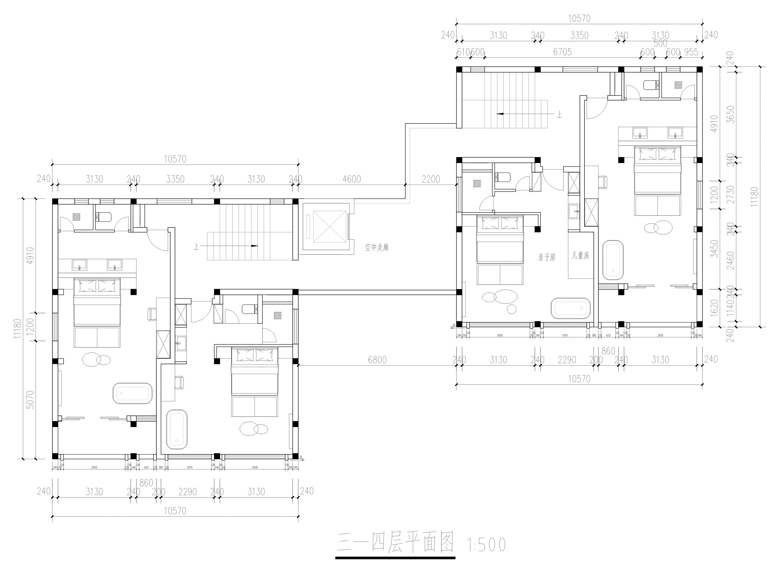
▲阑珊宿酒店三层平面
▲蚂蚁窝平面图
项目信息——
项目名称:阑珊宿海景民宿
项目地址:玉溪市澄江县小湾村
建筑面积:2800平方米
设计理念:慵懒的午后时光
项目业主:玉溪阑珊宿酒店管理有限公司
设计机构:长空创作
设计主创:张宝华
设计团队:刘思唐、靖旭初、蒋应强、王春艺、李泉江、周林华
项目摄影:靖旭初
项目主材:原木、瓷砖、麻绳、藤条、钢材、玻璃
软装陈设:定制家俱、渔船、枯枝、布艺、木绣
设计时间:2017年
竣工时间:2020年5月
Project information——
Project Name: Lanshansu Seaview B&B
Project address: Xiaowan Village, Chengjiang County, Yuxi City
Building area: 2800 square meters
Design Concept: Lazy afternoon
Project owner: Yuxi Lanshansu Hotel Management Co., Ltd.
Design agency: Changkong Creation
Designer: Zhang Baohua
Design team: Liu Sitang, Jing Xuchu, Jiang Yingqiang, Wang Chunyi, Li Quanjiang, Zhou Linhua
Project Photography: Jing Xuchu
Main materials of the project: logs, tiles, hemp rope, rattan, steel, glass
Soft furnishings: custom furniture, fishing boats, dead branches, cloth art, wood embroidery
Design time: 2017
Completion time: May 2020
客服
消息
收藏
下载
最近
































































































