知末
知末
创作上传
VIP
收藏下载
登录 | 注册有礼

单色魅力 · 58㎡简约公寓设计丨Studio Lina Knyazeva

2023/02/22 10:00:00
查看完整案例
微信扫一扫
收藏
下载
单色魅力 · 58㎡简约公寓设计丨Studio Lina Knyazeva-0
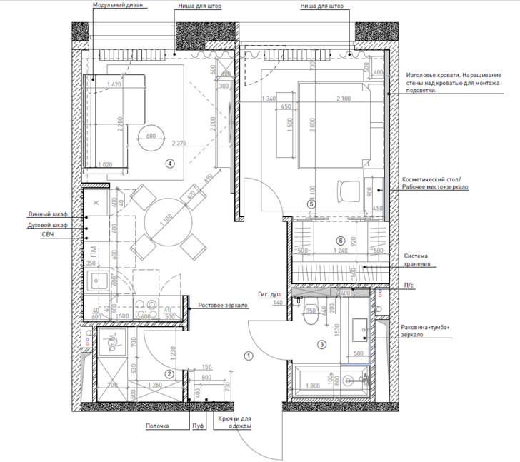
空间布局
单色魅力 · 58㎡简约公寓设计丨Studio Lina Knyazeva-3
Studio Lina Knyazeva尽一切可能在小公寓中营造舒适的环境,公寓分为六个功能区: 入口大厅、厨房-客厅、卧室、更衣室、浴室和洗衣房。所有房间都使用相同的饰面材料,并且在设计师照明的帮助下引入了多样性。
单色魅力 · 58㎡简约公寓设计丨Studio Lina Knyazeva-5
单色魅力 · 58㎡简约公寓设计丨Studio Lina Knyazeva-6
单色魅力 · 58㎡简约公寓设计丨Studio Lina Knyazeva-7
单色魅力 · 58㎡简约公寓设计丨Studio Lina Knyazeva-8
单色魅力 · 58㎡简约公寓设计丨Studio Lina Knyazeva-9
单色魅力 · 58㎡简约公寓设计丨Studio Lina Knyazeva-10
单色魅力 · 58㎡简约公寓设计丨Studio Lina Knyazeva-11
单色魅力 · 58㎡简约公寓设计丨Studio Lina Knyazeva-12
单色魅力 · 58㎡简约公寓设计丨Studio Lina Knyazeva-13
设计师
Lina Knyazeva
单色魅力 · 58㎡简约公寓设计丨Studio Lina Knyazeva-16
南京喵熊网络科技有限公司 苏ICP备18050492号-4知末 © 2018—2020 . All photos and trademark graphics are copyrighted by their owners.增值电信业务经营许可证(ICP)苏B2-20201444苏公网安备 32011302321234号
客服
消息
收藏
下载
最近