查看完整案例


收藏

下载
©金伟琦
城市文脉
航星园位于北京二环路的北侧,其南侧和西侧是北京重要的历史文化建筑:雍和宫、北护城河,以及地坛,北侧和东侧是始建于 1950 年代末期的,接受苏联规划思想下的邻里式社区——和平里街坊。航星园处于首都现代风貌控制区与古都风貌保护区的边界位置。在这里,城市的现代与传统风貌交相辉映。
航星园是北京市东城区重要的城市更新项目,随着《北京中轴线文化遗产保护条例》的颁布实施,北护城河以及邻近开放空间的城市更新变得尤为重要。
航星园所在区域是新中国成立后建设的重要航天科工企业,目前其大部分区域已转型为现代企业园区。航星园秉持“科技文化融合、创新驱动发展”战略,致力于建设“开放型、创新型、智慧型、能力型、成长型”生态园区。
© 金伟琦
© 金伟琦
© 金伟琦
© 金伟琦
场地状况
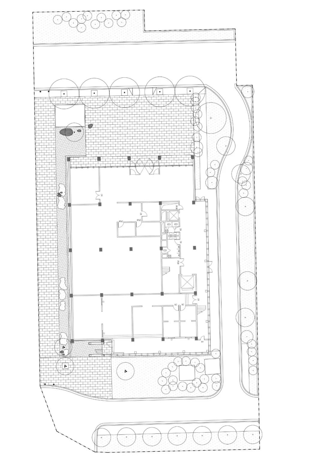
旧厂房位于航星园中心绿地的东侧,作为一栋建于 1980 年代的工业厂房,其南侧与东侧是承载了园区的历史记忆的老建筑,西侧与北侧则是近年来新建的办公楼。整个园区近似于九宫格的形式,而旧厂房地块则位于这个九宫格的中心偏右的位置,它与中心开放空间共同构成了园区的中心地标与景观。旧厂房地块占地约为 3625 平方米,此次改造的内容包括:场地道路与景观设计、建筑立面与内部更新改造、建筑结构抗震加固,室内改造与装修设计,全楼的给排水、电、暖、通设计。改造后的总建筑面积约为 5000 平方米,建筑主体北侧 4 层,南侧部分区域 6 层。
改造前 © 超城建筑
改造思路:
作为园区中心位置的地标性建筑,旧厂房的出入口位于东侧,原有设计为了强调入口,自二层起做了局部的外挑与玻璃幕墙,东侧与南侧的外墙的材料使用了瓷砖,而旧厂房的西侧与北侧外墙表面为涂料。因此,从东侧与南侧看,这栋建筑看起来像是办公建筑,而从西侧与北侧看则是一个工业厂房建筑。
© 金伟琦
© 金伟琦
由于园区交通的主入口在西侧,因此原本位于主入口背面的西立面成为了进入航星园区内部的首要立面,而该建筑的主入口也依据园区总体更新规划调整到北侧。
因此旧厂房立面的改造设计尊重了此前的设计意图,对原有西立面与北立面的建筑形式做了尽量的保留,并在外墙材料上选择了朴实的水泥板与灰色涂料,保持了原有的建筑历史记忆,并为西立面前的中心开放空间提供了最佳的历史注释与身份定义,与航星园的艰苦奋斗、朴素严谨的精神相吻合。
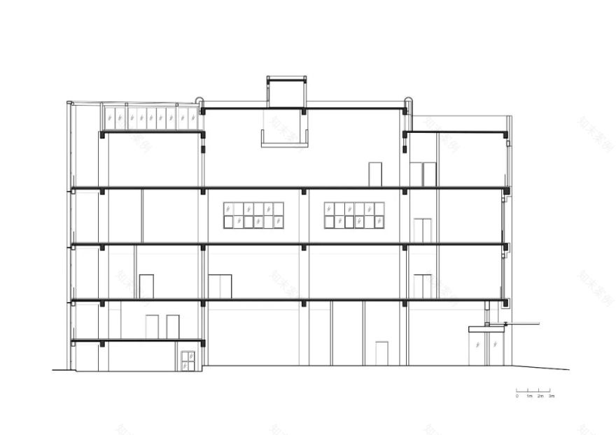
而南立面与东立面则采用现代玻璃幕墙,以体现航星园现代科技园区的办公性质。原有东立面外挑的部分被小心地切除掉,使得南侧与东侧形成了一个干净完整的玻璃立面。
© 金伟琦
© 金伟琦
© 金伟琦
© 金伟琦
而位于建筑西南角的外挂楼梯,由于不符合现在的消防规范,被拆除并重建。这里成为东南玻璃盒子与西北水泥盒子交汇的开口空间,这里不仅是两个盒子的过渡区域,也是一个重要的设计机遇,因此我们选择这里表现了水泥盒子的进深的同时,也将这栋建筑最多的开口空间设置于此,使得封闭的实体与虚空的玻璃盒子之间有了一个戏剧性的转角。而这个转角刚好位于园区面对北二环路与北护城河的道路之上,并形成园区内的地标。
改造设计示意图
建筑周围环境景观依据主入口方向的调整以及园区整体交通的更新规划。结合建筑的北侧新主入口设计了小广场。原有北侧机动车道路和东侧道路单行道被连接起来并进行更新。为了东侧保留原有的大树,东侧道路的位置经过仔细的规划,同时沿着道路的狭长绿地里适当补栽新的乔木与地被植物和草类,使得这里同时具有线性花园的特征,并与南侧的绿地相连接。在西侧将消防车道的地面铺装设计为与北广场相同的材质,使得这里不仅与北广场连城一片,同时提前与位于建筑西侧的未来的航星园中心开放空间无缝连接。
© 金伟琦
© 金伟琦
结构加固
老厂房主体结构为钢筋混凝土框架结构,局部夹层为砌体结构与主体脱开。经检测,老厂房原结构框架柱混凝土强度等级为 C25,按此强度计算,结构框架柱的轴压比较大。现状柱截面尺寸为 500x700 毫米。建筑结构高度接近 24 米,且首层局部设置半地下室,首层顶板标高 6 米,柱截面尺寸偏小。按现状截面进行抗震计算,结构位移较大,层间位移比超过规范规定 1/550 的限值,首层与二层柱计算配筋值均超过规范规定限值,各层柱截面配筋不足,不满足抗震要求。鉴于上述情况,改造方案采用加大柱截面的加固方式,柱加大至 700x700~800x800,柱主筋植入基础及各层梁板内。部分框架梁依据调整后的结构刚度内力分配采用粘碳纤维布或粘钢法进行强度加固。
柱子加固施工
© 金伟琦
© 金伟琦
© 金伟琦
室内空间
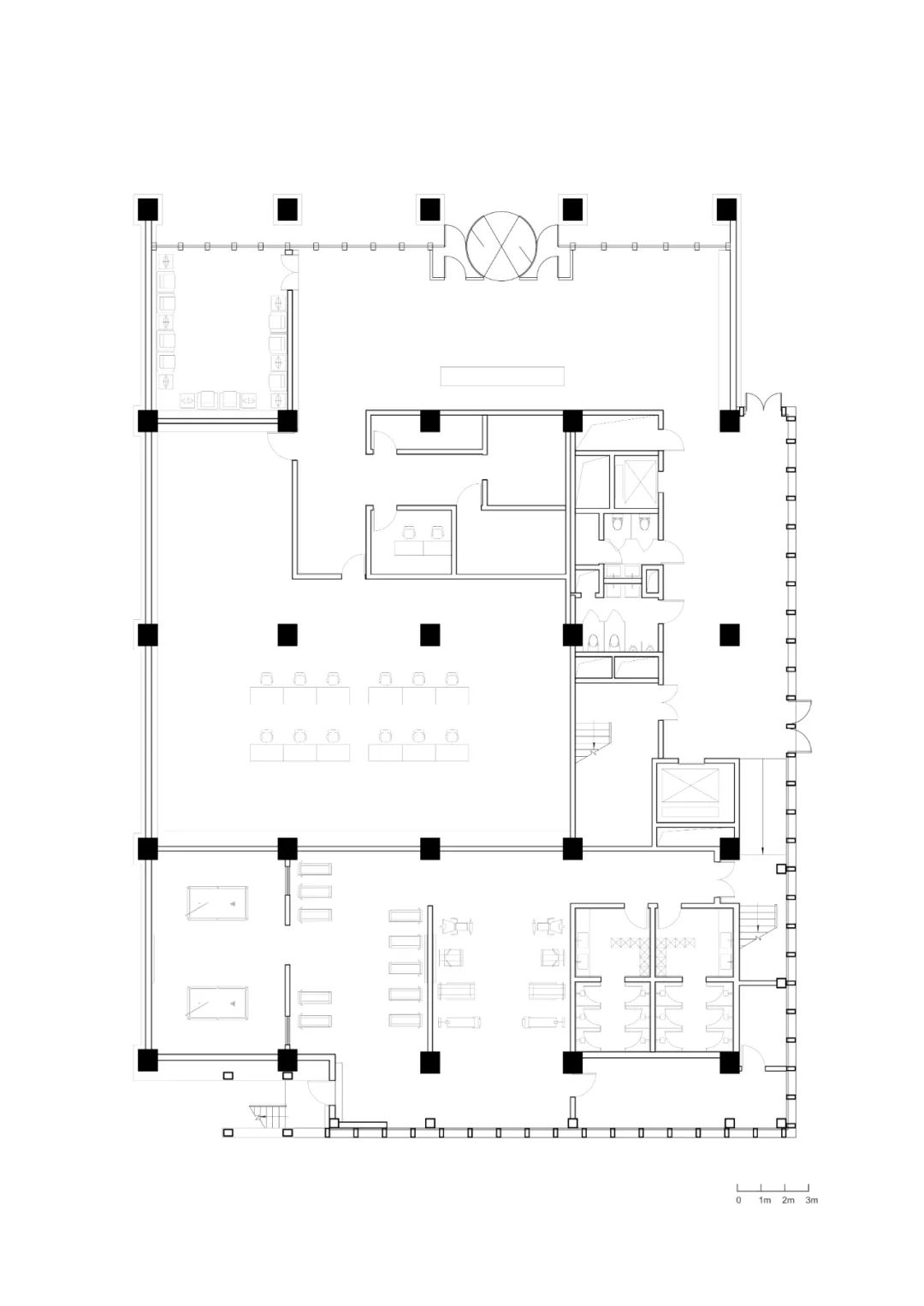
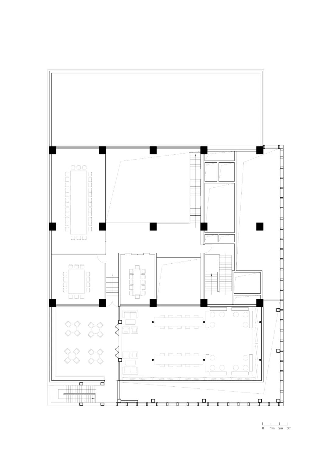
在新的方案中,老厂房由原先的生产为主的功能转变为办公为主的功能,因此新方案是在尽力保护老厂房原有空间特性的同时,根据新的功能需求,重新规划空间平面。在确定了主入口由东侧改为北侧后,内部的流线需要仔细梳理。由于原来仅有一部货运电梯,因此需要增加一部客运电梯,此外原建筑的卫生间的位置与面积均不能满足新的需求。改造方案的空间概念是西北方向的水泥盒子与东南方向的玻璃盒子的套嵌结构,而两个盒子套嵌的部分被改造为竖向的交通核,包括更新后的货梯、新增加的电梯、封闭楼梯间,卫生间及管井、设备间等。首层的功能主要是入口与展厅,南侧半地下的空间为健身与浴室。原有南侧的夹层被保留作为二层,用于办公。三层与四层是开放办公与小型会议室为主,五层则是小型办公室、大会议室与共享大厅,局部的夹层则作为六层,用于会议室。
© 金伟琦
© 金伟琦
© 金伟琦
© 金伟琦
由于原建筑的层高较高,首层约有六米,顶层中间部分超过七米,其他楼层约为五米,因此保有高空间的品质成为室内改造的原则,所有新增加的消防喷淋,空调新风、排烟、各种桥架等,都在综合天花中被仔细设计以获得最少的吊顶面积以及最高的室内净高度。
© 金伟琦
© 金伟琦
© 金伟琦
空间与材料
这座旧厂房虽不是重要工业遗产建筑,但对航星园却有特殊历史记忆,因此改造方案不仅在立面设计上考虑了历史记忆,其内部空间也将部分老墙面作为历史记忆载体,经加固后保留下来。在五层东侧与南侧新增玻璃幕墙后,原有非结构墙体被拆除,旧有结构与新结构并置,部分高处老墙面被小心保留,历史记忆将新与旧缝合,在这里,航星园与旧厂房老房新生。
© 金伟琦
© 金伟琦
© 金伟琦
室内材料的选择上,基于建筑更新的概念方案,玻璃盒子的部分,延续了幕墙的特征,使用金属、玻璃为主要材料。而水泥盒子的部分则同样延续了外墙的特征,材料以灰白色为主。而两个盒子套嵌的交通核位置,则采用木纹铝板为主要墙面材料,部分多功能空间选用同样材质的穿孔吸音板用以降噪。这个交通核在材料构造上同样遵从套嵌的逻辑,将玻璃盒子与水泥盒子的不同材料套嵌在一起,构成了建筑空间更新概念在其内部的表达。
© 金伟琦
© 金伟琦
© 金伟琦
© 金伟琦
城市环境
总平面图
一层平面图
二层平面图 三层平面图
四层平面图
五层平面图
六层平面图
屋顶平面图
剖面图
剖面图
南立面图
西立面图
北立面图
东立面图
局部剖面图
项目信息
建筑室内景观设计:北京超城建筑设计有限公司
项目地点:和平里东街 11 号,北京,中国
基地面积:3625 平方米
建筑面积:5000 平方米
设计时间:2020 年
竣工时间:2022 年
主创建筑师:车飞、章雪峰
设计团队:穆高杰、揭以彤、张耀文(建筑)、陈海凤、余辉明(室内)、霍金龙、隋莹、李扬(电气)、石远方、李晶晶(暖通)、李平、孙庆(结构)、张乔红(给排水)、黄骁洋(景观)
施工图设计合作:中科瑞城设计有限公司
项目业主:北京航星机器制造有限公司
摄影师:金伟琦
客服
消息
收藏
下载
最近

















































