查看完整案例


收藏

下载
南昌·璞心岛
PUISLAND
水光潋滟,山色空蒙
岛居文韵,凡璞自然
『 缘起 』
Genesis
海力璞心岛地处江赣之地,文化名城的南昌市。南昌又名洪都,城内江湖密布、水网交织。古往今来,建筑人居与水的关系均是以简约自然的面貌呼应山水,白璧为墙,山水为绘。
▲ 古今水岸建筑关系 Relationship between ancient and modern
『 规划 』
Site Selection
璞心岛择址象湖城芯象湖二路与抚河故道交汇处,南昌天赋稀贵三面环水之地,将象湖纯熟配套精华尽藏,敬呈下一代水岸人居范本。
▲ 基地分析 / Traffic Analysis
为了创造更好的观水视角,充分利用场地三面环水的稀缺特性,分别对不同高度进行了视线分析。私藏于内的“水岸高层、滨水洋房、岛岸叠墅”呈北高南低阶梯组合排布,极大程度地拓宽了景观视野,栋栋皆为景观楼座。
▲ 总体鸟瞰图 /Overall Aerial View
▲ 基地视线分析 / Visual Analysis
『 岛岸生活示范区 』
Island life
本案坐拥 270°环水地理优势,东南西三面环水,水岸线天赋优势赋予璞心岛多元化度假生活场景。通过见框景手法将滨河景观最大化,使形态与功能关系自然融合,同时释放更多的场所空间。设计吸收江赣水乡人文氛围,希望能够兼顾建筑美感与人文活力,促进人们的互动体验,打造水天一色、自然岛居的水岸美学示范区。
▲ 航拍 / Aerial Photography
▲ 示范区总图 / Site-Plan of Demonstration Area
▲示范区动线图/Dynamic Line of Demonstration Area
▲ 航拍 / Aerial Photography
空间的布局基于功能所带来的体验互动与情绪变化而展开设计:从前场景观浸入第一进院落空间,我们围绕城市展厅的公共性,由外及内过渡城市与建筑的环境氛围。而建筑柱廊空间则是进入接待大厅前的礼仪多重奏。
丨设计推演丨
示范区前期作为售楼处,后期为幼儿园,设计旨在平衡幼儿园和售楼处两种建筑类型的气质矛盾,力图呈现“所见即所得”的真实建筑场景。
考虑到幼儿园作为一种公共建筑所拥有的内涵与气质,我们选择了温暖的木色作为点缀配色,除少量水景景观之外,建筑部分真实体现未来使用情况。
▲ 幼儿园形体生成 / Shape Generation
▲ 幼儿园功能布局 /Functional Layout of Kindergarten
『 空间 』
Space
前期作为示范区使用的璞心岛水岸美学馆,基于环境本底的优势,针对邻里中心,我们提出了“假日漫游”的设计理念。以人体尺度去控制空间的生成,透过横向延展的一层高廊架及镜面元素,将视线控制在近人的尺度内,简约精致的建筑形体则优雅地隐匿在多维立体的展开空间中,通过艺术营造的手法,实现建筑与自然高度拟合,赋予空间以无限延伸与探索性。
▲ 航拍 / Aerial Photography
▲ 滨水庭院界面 / Waterfront Courtyard Interface
▲ 沿湖摄影 / Lakeside
酒店式入口的落客中心作为前奏增添示范区的品质感,而建筑柱廊空间则是进入接待大厅前的礼仪多重奏。
▲ 滨河空间/Riverside Space
▲ 艺术馆入口/ Gallery Entrance
在渗透城市界面杉林的引导下进入空间,首先看到的是树木在廊架中穿梭生长的野趣之姿,向上蔓延的空间打破固有界限,在天然属性肌理与人工肌理的共同表现下,精致格调与自然相融相生。酒店式入口的落客中心作为前奏增添示范区的品质,为使用者带来星级酒店般的归属感。
▲ 入口局部空间 / Entrance Local Space
▲ 水院空间 / Water Yard Space
▲ 景观长廊 / Landscape Corridor
景观长廊空间则是进入接待大厅前的礼仪多重奏,与建筑形成的楔形空间搭配镜面水池与水上步道形成极强的仪式感,长廊尽端形成框景,朦胧地将河景引入。
▲ 生态院落 / Ecological Courtyard
建筑设计师始终坚持建筑是为空间和功能服务的,与室内达成了一致,延伸的城市度假的景观概念,植入了大量自然元素,两层通高的中庭顶部设置天窗,为室内空间引入日光,倾泻在下方的中庭前岛之上。在整体格调统一的前提下,使形体塑造更具魅力。
▲ 门廊空间 / Colonnade Space
▲ 入口局部空间 / Entrance Local Space
▲ 入口夜景效果 / Entrance Night View Effect
立面设计结合窗套、檐口、栏杆等细部的雕琢,建筑墙面用材为铝板,并结合铝合金门窗,使之既显精致而又不落俗套。
▲ 样板间步道 / Prototype Room Walkway
『 构造 』
Structure
幕墙构造窗系统,既满足了窗规范,又有幕墙的外立面效果,统一、精致。
简单成了一种修行,而极简更是一种态度,它意味着更高要求的细节和工艺,在整体的简洁之中包含着诸多细节的体验和品味。
▲ 窗墙体系下类幕墙效果 / Similar Curtain Wall Effect In Window Wall System
▲ 剖轴测分析图 / Perforated Aluminum Plate Effect
『 技术图纸 』
Technical Drawings
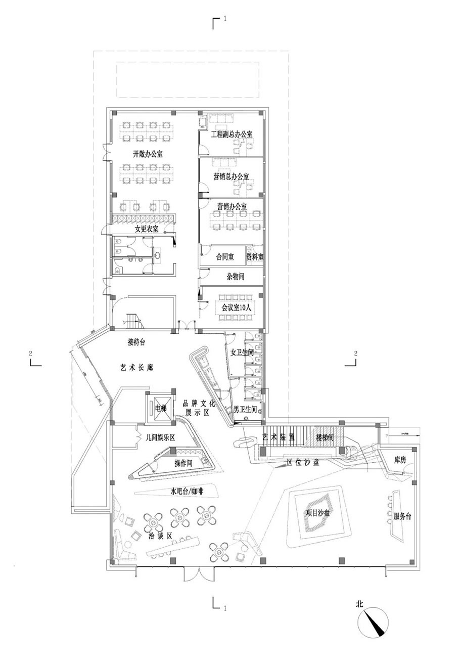
丨前期美学馆平面图丨
▲ 一层平面 /The First Floor
▲ 二层平面 /The Second Floor
▲ 三层平面 /The Third Floor
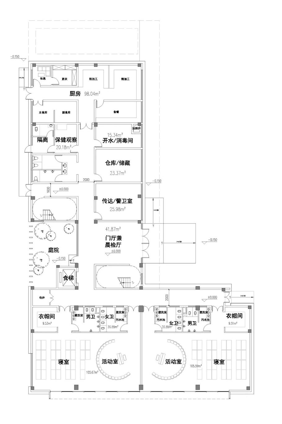
丨后期幼儿园平面图丨
▲ 一层平面 /The First Floor
▲ 二层平面 /The Second Floor
▲ 三层平面 /The Third Floor
南昌璞心岛,在繁华中取静,透露静谧的声音。期待每一位城市隐领者,能够悉心走进此境,直抵生活的真意。
项目档案
开发企业:壹海集团、南昌县城投、煌盛地产
建筑设计:PTA 上海柏涛
设计团队:设计五部
设计主创:曾汉辉,师占奎
团队成员:
示范区团队 - 刘大蔚,王艳清,姜铎
大区团队 - 姜铎,董锴,王圆圆,邓文钦,李胜毅,杨光宇,刘涵,陈宇昂,林声尊,高上
景观设计:东亚景观
室内设计:海力控股集团有限公司
室内顾问:一然设计
项目地点:中国·江西·南昌
用地面积:19954㎡
建筑面积:2000㎡
设计时间:2022 年 3 月
开放时间:2022 年 12 月
建筑摄影:山兮建筑空间摄影 陈远祥
客服
消息
收藏
下载
最近









































