查看完整案例


收藏

下载
©Farrells
英国内政部位于伦敦城市中心区马舍姆街,毗邻威斯敏斯特宫与泰晤士河,原址是三栋建于 1960 年代的环境部高楼。临近千禧年时,伦敦市民普遍意识到这组被戏称为“丑陋三姐妹”的塔楼,作为世界文化遗址威斯敏斯特宫的城市背景是极不协调的。Farrells 将这项占地 8 公顷的内政部建设计划视为市中心稀有的城市可持续发展机会,将宏观的城市规划思维应用于此。此项目不仅是新建一处政府办公总部,更实现了在伦敦城市中心区恢复本地的城区特征、修复天际线,以及为社区注入新活力的城市更新愿景。
The Home Office sits in Marsham Street in central London, near to the Palace of Westminster and River Thames. On the original site stood the ‘three ugly sisters’ built in 1960s, housing the Department of the Environment. By the end of the millennium the towers were widely considered an inappropriate backdrop to the Palace of Westminster, a World Heritage Site. Farrells took the opportunity to address issues of sustainability on one of the few inner-city sites large enough to permit it and to develop big-picture urban masterplan thinking. The project is not only to build a government office headquarters, but also an urban regeneration vision in central London to restore the character of the area and community, to heal the skyline and to bring vibrancy to the neighbourhoods.
改建前 – 场地中耸立的环境部塔楼,被戏称为“丑陋三姐妹”©Farrells
Before – on the original site stood the ‘three ugly sisters’, housing the Department of the Environment.
改建后 – 新建的内政部大楼通过缜密的设计提供了同等的空间容量©Farrells
After – the new Home Office building delivered the equivalent space through thoughtful design.
该场地应被视为一个城区,享有各种多元的功能、混合的建筑样貌和不同大小的建筑规模,这些特点恰是伦敦市中心区最精彩的特质。—— 特里·法雷尔爵士对该项目城市改进的总结
The site should be treated as an urban quarter, with all the diversity of uses, mixture of architectural treatment and range of building sizes that characterize the best parts of Central London.
—— Sir Terry Farrell sums up the improvements
在相同面积容量下,降低建筑高度,并实现步行友好、渗透的内外街道©Farrells
拆除的环境部(左上图):
- 破坏威斯敏斯特宫天际线(世界文化遗产);
- 互不连通、面积很小的楼面;
- 不透气的整体裙房:不友好的人行道;
- 单一使用者的单体建筑:糟糕的邻里环境
新建的内政部(右下图):
- 多种高度的低层建筑,与原建筑面积相同;
- 分隔灵活与多样、面积较大的楼面;
- 可达的,渗透的,景观化的公共空间;
- 混合功能的优质邻里环境:办公、商店和居住
©Farrells
维持原有建筑面积的同时,内政部的新方案将三栋高楼转变为三座互相连通的低层办公楼,办公场所的功能与效率远超之前的建筑群。三个居住街区完善了综合功能,带来 140 个市场化价格的与经济型的居住单元,以及商店、餐馆和市集摊位。通过将一个大街区打散并创造新的步行街道,场地与周围社区的联系得以加强,置入的商业空间则有助于培养起富于活力的街景。
While keeping the total floor area equal to that of the previous structure, the new scheme houses the Home Office in three blocks with a far more functional and efficient plan than the previous complex.Three residential blocks round out the scheme, supplying 140 market rate and affordable flats as well as shops, restaurants, and kiosks.Breaking down the superblock and creating new pedestrian through-routes helped knit together surrounding communities, while the commercial space helped foster vibrant streetscapes.
为城市考虑的解决方案,
从“丑陋三姐妹“到“温和的巨人”
Urban Design Based Solution,
From ‘Three Ugly Sisters’ to ‘The Gentle Giant’
原环境部是在 1960 年代按照白厅建筑的规模建造的。接替它的是一项城市规划实践,将一位谦逊的“温和的巨人”总部大楼插入到附近混合功能的邻里中。©Farrells
The Department of Environment was built in the 1960s at the scale of the Whitehall buildings. Its successor is an urban planning exercise that inserts a non-pompous ‘gentle giant’ headquarters building into the mixed-use neighbourhood.
原环境部塔楼破坏了议会大厦(威斯敏斯特宫)的标志性建筑剪影©Farrells
Towers obscure the silhouette of Parliament
历史上此处是小街道与广场密布的城市格局。19 世纪的煤碳厂将这里逐渐吞噬为一块巨大且功能单一的场地。1971 年环境部总部在此落成,三座突兀的高楼将马舍姆街和蒙克街之间的联系切断,孤僻的战后建筑风格和死气沉沉的公共空间,优雅起伏的天际线变成了巨大的混凝土体量。环境部大楼被市民戏称为“丑陋三姐妹”,市民普遍认为这组塔楼与世界文化遗址威斯敏斯特宫极不协调。
Historically, there had been a pattern of small streets and squares in the district. After occupied by the Gas Light & Coke Company in the 19th century, the slow swelling of the gas works created a single, unified site. The original building of Department of the Environment, which had been nicknamed “The Three Ugly Sisters”, became a concrete monolith obliterating the skyline, closing off the links between Marsham Street and Monck Street. The consensus was that they were inappropriate as a backdrop to a World Heritage site adjacent to the Palace of Westminster.
Farrells 曾长期参与改进环境部场地的城市规划研究。特里·法雷尔爵士于 1991 年开始制定马舍姆街总体规划纲要,并于 1994 年继续为环境部制定了更为详细的方案。在整个 90 年代中,Farrells 的总体规划主张恢复该地区的历史城市格局,通过低层、独立的建筑组群取代尺度过大、厚重封闭的塔楼和裙房,重建失去的街道立面、公共空间以恢复街区活力。
Farrells have had a long involvement with the masterplan study to improve the former Department of the Environment site. Sir Terry Farrell’s involvement in the Marsham Street site began with preparing outline masterplans in 1991 and continued with the development of a more detailed plan in 1994 for the Department of the Environment. Throughout the 1990s Farrells produced masterplans advocating reinstating the area’s historic pattern and replacing the overscaled, impregnable podium and towers by erecting separate buildings and re-making lost street frontages/public spaces.
城市设计总图:渗透的街道、新的广场和混合用途的功能,和谐融入临近建筑和街道的肌理。©Farrells
Urban design site plan. Permeable streets, new squares and mixed-use accommodation harmoniously sit within the adjacent listed buildings and street patterns.
城市设计工作旨在将“温和的巨人”般的总部大楼低调地置入社区。©Farrells
The urban design exercise was to insert a non-pompous ‘gentle giant’ headquarters building into the neighbourhood.
2000 年,Farrells 在内政部举办的 PFI 竞标中胜出,交付方案提供与先前建筑同等的总建筑面积,并证明低层多功能混合的方案是可行的:既满足办公、住宅与商业的空间需求,也调和了威斯敏斯特的天际线。
In 2000, Farrells’ contribution to the winning PFI bid launched by the Home Office. The delivered scheme provides a similar overall gross floor area to the previous structure, demonstrated the feasibility of a low-rise mixed-use scheme, with the capacity for office, residential and retail accommodation with non-intrusion of the superb skyline views.
最初更大范围的总体规划愿景,通过该场地的混合功能得以落实;随着时间推进,对规划方案的改进以及内政部项目的落成,都体现着最初的规划愿景。
我们认识到原有建筑阻碍了公共流线,新方案强调创造一处具有包容性的市民社区和更宜人的公共空间,再加上高质量的建筑设计,实现可持续的城市更新。
Farrells fulfilled the aspirations of the original masterplan by their alternative use of the site, and further enhancements to the masterplan and built project were incorporated throughout the programme. The scheme recognised that the existing development restricted public circulation. The desirability of creating an inclusive, civic community and enhancing the public realm, coupled with high-quality architectural design, was emphasised and this vision has been realised.
“室内的城市设计”
3500 人的综合用途工作社区
“Interior urban design”
a mixed-use and working community of 3,500 people
The urban design of the exterior is followed into the building’s interior planning. An internal street with subsidiary side streets and main squares form community spaces, accommodating up to 5,000.
从最开始这个项目就受到各方的不同要求。
对于内政部,推动新办公总部建造的原因是需确保其业务模式能够满足 21 世纪英国的新要求:对外具有开放的沟通渠道,内部多部门间互动良好。因此,需对新办公室进行重构,以改善内部和外部的交流方式,成为最有助于新业务模式的工作场所。
对于当地社区,居民虽然迫切希望移除现有塔楼,但不能不计代价。威斯敏斯特区的日常生活需照常进行,尽可能减少噪音、灰尘和不便。同时,威斯敏斯特市政厅要求该项目提供住房、零售商业和社区空间。
From its very inception, the project was subject to a number of demands from a variety of different sources. For the Home Office, the need to ensure that its business practice was able to meet the demands of 21st century Britain drove its requirement for a new home, with open lines of communication and inter-connected departments. Therefore, the new office required a restructure in order to improve internal and external communication and promote best practice in the workplace.
For the local community, people were desperate to see the existing towers removed, but not at any cost. There was a need for Westminster life to continue normally and with the least amount of noise, dirt and inconvenience possible.
Meanwhile, Westminster City Council required the development to provide housing – as well as retail and community space.
纵剖面图©Farrells
Long section through the site.
交付方案提供了与先前结构近似的总建筑面积,三栋相互连接的低层建筑提供足以容纳 3500 名内政部员工的办公空间,其余是含有 140 套私人型和经济型公寓的三个住宅区、9 家商店与 3 个市集摊位。
The delivered scheme provides a similar overall gross floor area to the previous structure, with the office space sufficient for 3,500 Home Office staff in three inter-connected low-rise buildings, and the remainder in three residential blocks, providing 140 private and affordable apartments, 9 shops and 3 kiosks.
总体布局的原则是在这栋大型政府办公中实现多重公共空间,这些公共空间面向周围街道开放并彼此相连,以获得最佳的可达性,而非内向、昏暗的内庭。
The principle objective of the masterplan was to integrate a large government office building with public spaces orientated towards the street in order to maximise accessibility, rather than being designed as inward-looking, overshadowed courts.
室内规划设计:内街照片。每层楼有独特的视觉特征将各部门加以串联,也鼓励内政部员工与其他分支团体间的广泛交流。©Farrells
Internal urban design: interior photos of the ‘street’, a linear feature on each floor physically joining departments and improving dialogue between the many sub-groups and employees employed at the Home Office.
三个“口袋公园”为办公人员创造了额外的室外空间与视野。
一条自然采光的内部“街道”贯穿三栋建筑,并提供共享的资源与活动——图书馆、静修室、咖啡区、打印店,以及连接口袋公园和接待处。
这条中轴线组织起多种不同功能,成为办公人员通用的集会场所,有助于形成好的业务交流模式。
Three areas of ‘pocket parks’ create additional external space and views for office workers. A naturally lit internal ‘street’ runs the length of the three buildings and has shared resource activities – library, quiet rooms, café, print shop, access to pocket parks and reception. This organising central axis provides a general meeting place for office workers, aiding good working practices.
“街道”成为一处通用的集会场所©Farrells
The ‘Street’ provides a general meeting place. 明亮颜色与超尺度图形的使用,构建并加强了室内的色彩系统。每栋建筑享有一项独特的主题以方便人们确定方位,并强化这条室内"街道"作为整个办公空间的骨架。次级街道、中庭、玻璃连廊与主街道间的视觉互动,使外部和内部最大限度获得连接。
A framework of interior colours were developed and augmented by the use of super scale graphics. Each building has a distinct theme to promote wayfinding and accentuate the ‘street’ as the backbone of the working environment. Secondary streets, atriums, glazed link bridges and visual connections to and from the main street make for maximum connectivity between outside and inside.
与街道相连的内庭院空间,色彩缤纷的内庭院提供了公寓住户们彼此交流的空间©Farrells
The atrium space interacts with the ‘Street’ – a colourful arrangement of ‘communal’ functions across all flow to improve inter-departmental communications.
彩虹之街
艺术家合作的建筑外观
The rainbow street
Artists collaborate in architectural expression
内政部新貌,自信而热情的新入口©Farrells
A confident and welcoming new entrance to the Home Office.
由于内政部的安保要求,建筑结构与外观肌理需经特别增强,以抵御恐怖袭击。
从最初的概念构思开始,我们就引入外立面的亮点并巧妙整合于设计中,避免建筑变成铜墙铁壁般的外观。
在业主和开发商的共同促成下,我们发起并实施了一项非常创新的公共艺术策略,将艺术作品融入建筑外观肌理中。
The design of the building structure and fabric was inclusive of security enhancements to resist terrorist attack. The additional features were skillfully integrated into the design from the initial concept to avoid the building taking on the appearance of a fortress. With the client and developer’s co-operation, we initiated and implemented a very innovative public arts strategy which integrated the works of art into the fabric of the building.
彩虹之街 ©Farrells
The rainbow street
设计的一大特征是通透的建筑在临街一侧呈现为欢迎公众光临的形象。Farrells 和艺术家 Liam Gillick 合作,为轻质玻璃雨棚引入缤纷的色彩,为沿街立面赋予丰富的视觉趣味,也使得当地人将这条街道昵称为“彩虹之街”。彩色玻璃橱窗同样活跃了室内办公空间,并保护了室内区域和人员的隐私。虽然这项 PFI(私人主动融资模式)项目有严格的预算和周期限制,Farrells 仍然设法实现了一座美观和可持续的建筑作品。
Main features of the scheme are a glazed, street-fronting building with a welcoming public face. A collaboration between Farrells and artist Liam Gillick introduced a generous use of colour on the lightweight glass canopy, giving the complex exterior visual interest along the elevations and led to local people dubbing the street ‘Rainbow Street’. Coloured glass vitrines enliven the office space, creating a positive impact for the area and privacy for personnel. Although this was a PFI project with strict budgetary and programme constraints, we still managed to achieve an aesthetically pleasing and sustainable building.
©Farrells
政府项目 PFI 模式的成功案例
与英国绿色建筑优异认证
A Successful PFI Project and BREEAM Excellence
内政部项目背后是一份长达 29 年的私营主动融资(PFI)合同。PFI 模式自 1992 年由英国政府发起,即由私营公司建造和运营公共基础设施。其核心理念是将政府项目的风险分配给最有能力处理这些风险的人。PFI 项目严格的预算和工期限制,使私营承建商必须谨慎平衡合同的风险和回报,使设计过程富于挑战。Farrells 的设计实践证明了在 PFI 过程的压力和严格的盈利限制下,仍有可能实现卓越的与可持续的政府公用建筑。
The Home Office was constructed under a 29-year Private Finance Initiative (PFI) contract. The PFI concept, where private companies create and operate public infrastructure was introduced in 1992. Central to the philosophy of PFI contracts is the notion that they allocate the project risks to the people best equipped to deal with them. With strict budgetary and programme constraints of a PFI project, the private contractor must balance the risk and rewards on the contract carefully. Farrells’ design proved that it is possible to achieve architectural excellence and sustainability under the pressures and strict profitability constraints of the PFI process.
政府行政总部采取私营主动融资模式的成功案例©Farrells
A successful PFI project for administrative office headquarters
鉴于英国政府在可持续设计方面的积极态度,从设计伊始,此项目就作为标杆式项目备受期待,并于建成后获得英国 BREEAM 绿色建筑认证中的“优异”评级,环境评级 9/10。该评分基于能源性能、可持续性、建筑施工方法和管理以及建成环境对居民的吸引力。基于更广泛的社会环境,团队致力于实现比环境友好的单栋建筑更为宏观的可持续开发:最小化环境影响的同时满足经济预期,为住户、邻里和更大的地区带来广泛的社会效益。
Given the UK government’s proactive stance with respect to sustainable design, we recognised from the very beginning that this was a flagship project. The completed building achieved the BREEAM Certificate of Excellence with an environmental rating of 9/10. This scoring is based on energy performance, sustainability, building construction methods and management and the desirability of the resulting environment for the occupants. Within the wider social context, the team considered the sustainable design more than to deliver an eco-friendly building that met the highest environmental standards. The sustainable development is about minimising environmental impact whilst meeting economic expectations and bringing wider social benefits both to the occupiers, neighbours and the greater local areas.
可持续发展的要点©Farrells
Key sustainability features
城市设计优先的政府办公总部
Urban Design Based Administrative Office Headquarter
内政部项目按时按预算完成,为政府递交了一栋灵活、高效的行政办公总部,并培育出一个新的社区——与原有建筑完全不同。在这里,我们不仅关注建筑单体,而是整个区域的城市环境,着手恢复本地社区的特征,创造一个景观、建筑、人和活动和谐共存的整体。新的内政部融入了周边街区,将城市设计的棘手问题与建筑解决方案一同编织到伦敦的核心地区,呈现出强烈的场所感,最终形成特里•法雷尔爵士称之为“城区”的作品。
The Home Office development was completed on time and on budget. A flexible, cost-effective headquarters building was delivered, which fosters a new community – the antithesis of its predecessor. It not always architecture first.
The healing of this damaged cityscape was brought about by good urban design, which looked to restore the character of the area and community, creating an environment where landscape, buildings, people and activity integrated as a harmonious whole.
The new building blends into the district, weaving urban design issues and architectural solutions into this strategically important area and injecting a strong sense of place. The result is something which Sir Terry Farrell likes to call “an urban quarter”.
内政部被公认为一项模范项目,并荣获一系列奖项与可持续认证:
The Home Office has been recognised as an exemplar project. It has won a number of awards and sustainability certification:
英国 BREEAM 绿色建筑认证- 优异
BREEAM - Excellence
MIPIM 大奖 最佳国际房地产项目的商务中心 2006
MIPIM Awards Best International Real Estate Projects For Business Centres
伦敦区测量师协会 大型商业项目 2006 - 高度推荐
London District Surveyors Association (Large Commercial Project) - Highly Commended
英国皇家建筑师协会(RIBA)奖 2005
Royal Institute of British Architects (RIBA) Awards
混凝土学会 优异建筑项目证书 2005
Concrete Society Certificate of Excellence (Building Category)
工业代理商协会/办公室代理协会 (物业周刊赞助) 最佳伦敦中部发展项目 2005
Industrial Agents Society / Office Agents Society (Sponsored by “Property Week”) Best Central London Development
领先欧洲建筑师论坛 最佳公共建筑奖 2005
Leading European Architects’ Forum Best Public Building Award
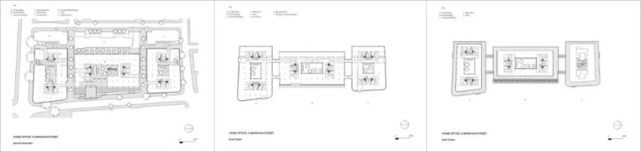
平面图 Plans©Farrells
项目信息
名称:英国内政部
地点:英国,伦敦
业主:AGP & Bouygues
设计单位:Farrells 法雷尔(前称 TFP, Terry Farrell and Partners)
项目类型:规划;建筑设计
委托年份:1998
竣工年份:2005
规模:74,322m²
Project Information
Name: Home Office
Location: London,UK
Clients: AGP & Bouygues
Designed by:Farrells, (formerly known as TFP, Terry Farrell and Partners)
Scope of Work: Masterplan; architecture
Commission Date: 1998
Completion Date: 2005
Area: 74,322m²
客服
消息
收藏
下载
最近



























