查看完整案例


收藏

下载

翻译
Liyuan Middle School
The site is located in the center of the city of Wuxi, China. It is divided into two parts, one on the south and one on the north side of the river. The campus has an innovative space organization, subdivided between six buildings with different functions.
photography by © Su Shengliang
The main connection between the south and north zone is a ribbon-shaped corridor, at the second-floor level. This corridor links visually the two distinct areas and shapes the school‘s outline. In several portions of the project, space changes accordingly to the dynamic of the corridor. This corridor produces a complex spatiality as a result of the relationship between the fixity of the buildings and the movement of it.
photography by © Su Shengliang
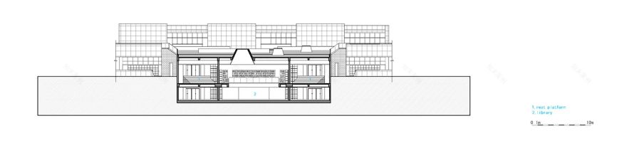
The facade pattern has been designed to resemble the waves of the water. Its smoothness and dynamicity create a relaxing atmosphere. The central courtyard, shaped by the corridor’s route, breaks the traditional school outline, creating a variegated scenery as a result of the interaction between the buildings and the site.A hypogeum library and lecture hall are located on both sides of the main courtyard. Thus, the edge line between buildings and the court is blurred, enlarging the area of the courtyard and also making both spaces, lecture hall, and courtyard, more interesting. The reading area of the library and the lecture hall are irradiated by sunlight coming through several roof windows; the result is a relaxed and poetic indoor environment.
photography by © Su Shengliang
The circular plaza, which connects the library with the central courtyard, is an innovative type of public space for the traditional Chinese campus architecture. We hope that this innovation will help the student to socialize and interact.
Project Info.
Architects : Minax Architects
Project Team : Lu Zhigang, Huang Yanbing, Cai Shumin, Fu Fei, Tang Zheren
Location : Wuxi, China
Year : 2015
Project Type : Educational / School
Photographs : Su Shengliang
photography by © Su Shengliang
photography by © Su Shengliang
photography by © Su Shengliang
photography by © Su Shengliang
photography by © Su Shengliang
photography by © Su Shengliang
photography by © Su Shengliang
photography by © Su Shengliang
photography by © Su Shengliang
photography by © Su Shengliang
photography by © Su Shengliang
photography by © Su Shengliang
photography by © Su Shengliang
Administration Building Section 3
Administration Building Section 2
Administration Building 4F
Administration Building RF
Administration Building Section 1
Administration Building Section 2
Administration Building Section 3
Administration Building Section 4
Diagram
Indoor Playground -1F
Indoor Playground Elevation 1
Indoor Playground Elevation 3
Indoor Playground Elevation 4
Indoor Playground Section 1
Lecture Hall Section 2
Lecture Hall 1F
Lecture Hall -1F
Indoor Playground Section 2
Lecture Hall Elevation 2
Lecture Hall Section 1
Lecture Hall Elevation 1
Lecture Hall Section 3
Library 2F
Model
Site Plan
Teaching Building A 1F
Teaching Building A RF
Teaching Building A Sections
Teaching Building B Elevation 1
Teaching Building B Elevation 2
Teaching Building B GF
Teaching Building B RF
Teaching Building B Sections
客服
消息
收藏
下载
最近

















































