查看完整案例


收藏

下载

翻译
Pergolenviertel 描述了汉堡市北部和 Barmbek 之间城市环境中的“绿色街区”。 静态街区以圆拱形式的通道向自然开放,坐落在最初用作分配定居点的绿地中,流经并塑造了新的街区。
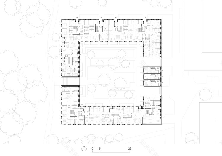
市区情况。 Pergolenviertel 描述了汉堡市北部和 Barmbek 之间城市环境中的“绿色街区”。 Pergolenviertel 的西边是汉堡城市公园。 这些建筑物位于约的北部和南部地区。 80000平方米的大型物业,由开放空间相连。 开放空间由同名凉棚定义,设计为圆形拱门,引导居民和游客穿过该地区。 住宅区相互之间的定位和旋转在邻里的南部区域创造了具有不断变化的几何形状的广场式街道空间。 结构中断和通道将街道空间与周围的绿地和路径连接起来。
建筑学。 设计以清晰的网格为基础,体现在建筑的外立面设计和内部结构上。 城市规划原则在这里成为一个跨尺度的设计主题,甚至在室内空间效果中找到它的视觉实现。 建筑物的几何形状定义明确。 边长相同,而东、南、西三面的建筑部分限制在 3 个,北侧限制在 6 个完整的楼层,形成一个结论。
进入公寓几乎只能通过公共使用的内部庭院。 以前作为分配花园定居点的用途在这里反映在基于设计网格的拼凑中。 区域的差异化设计体现了多种功能。 大多数住宅单元形成穿插的生活空间。 住户一方面有机会面对外面的绿意,另一方面也有机会参与院落的生活。
正面。 微妙的颜色渐变延伸到整个凉棚区。 在北部,邻近的 City-Nord 似乎变色了,而在该区的南部,邻近住宅区 Barmbek 的红色也变暗了。 总的来说,外立面是半结合的红棕色熟料砖。 在地板的高度,熟料砖形成了一种浮雕:每一排砖块在这个区域向后跳,创造了高度的可塑性。
客服
消息
收藏
下载
最近











